目標100%達成の御礼とNEXT GOALについて
皆様のおかげで、当初掲げていた目標金額を達成することができました。本当に、本当にありがとうございます。この一カ月半を振り返ると、ネガティブな言葉はあえて使いませんが――逆説的に言えば、毎日が“ワクワク”の連続でした。不安も、葛藤も、プレッシャーも、すべて含めて。挑戦している実感に満ちた、濃い時間でした。

ここで『北の国から』の好きな名シーンを紹介させてください。
田中邦衛さん演じる黒板五郎が、息子の純に向かってこう言います。
「人に喜んでもらえるってことは、金じゃあ買えん……金じゃあ買えん。」
その言葉に対し、吉岡秀隆さん演じる黒板純は、ごみ収集の仕事に就いており、こう語ります。
「本当にその通りだと、僕は最近、父さんの行動が少しわかるようになってきた。」
「ごみ収集の仕事をして三年。何度も嫌になり、疑問を抱き、もう辞めようかと投げ出しそうになり。それでもこの仕事を続けてこられたのは、ごみを出しに来る町の人たちから、お礼の言葉を投げかけられるからだ。」
「くじけそうになる僕の気持ちを、かろうじて支えてくれたのは、人に喜ばれているという、そういう意識であり……」
人に応援されているという意識、田原市を良くしたいという想いに共感してくれたことが、原動力に変わりました。OPENを早期実現させ、田原市民、東三河市民、観光客、サーファー、皆様に喜んでもらえる施設でありたいです。
2/12時点でご支援いただいた皆様には、一斉メール機能を通じて、ご登録のメールアドレス宛にYouTube限定公開のお礼動画をお送りさせていただきました。
クラウドファンディング終了後も、Instagramを通じて随時進捗を発信してまいります。引き続き、温かく見守っていただけましたら幸いです。
NEXT GOALについて
残り16日、NEXT GOAL 150%を設定させていただきました。
その理由は、伊良湖温泉の導入設備費が想定以上に高額であるためです。より良い施設を実現するために、どうしても必要な目標設定だと判断しました。
この「田原市」、そして「TAHARA♨SAUNA」に、私は人生の勝負をかけています。とはいえ、これは私自身が勝手に取り組んでいる志です。この挑戦に、もし共感していただけるなら、どうか力を貸していただけないでしょうか。最後まで全力で走り抜けます。引き続き、応援をよろしくお願いいたします。
自己紹介・経歴

はじめまして!愛知県田原市出身
TAHARA♨SAUNA / 田中です。
現在は名古屋のサウナ施設で修行しながら
“伊良湖温泉の魅力を広げ、田原市に本気のサウナを創る” という想いで準備を進めています。
体育大学卒業後、 IT企業へ。
「田原市を変える力をつけたい」
その一心で、違う世界に飛び込みました。
田原市にない価値を創り
“心と身体”を温める憩いの場所を創りたい一心で
クラウドファンディングに挑戦しています。
起業の決心がついた瞬間
「あなたの声を聞かせて」

2024年:田原市図書館の一角
「あなたの声を聞かせてください!」
私は見た瞬間に
「この声に応える大人でありたい」
これが「TAHARA♨SAUNA」の原点です。
💭どんなサウナ施設にしたいか?💭
いま田原市を生きる子どもたちにとって、青春の一つになるお店にしたい!

田原市民に愛され
観光客・サーファーにも愛される場所に。
そして地元を離れた若者が数年ぶりに帰省したとき「部活終わりによくTAHARA♨SAUNA行ったよな〜」とビール片手に語り合える。
そんな“青春の一つになるお店”を創りたいです!
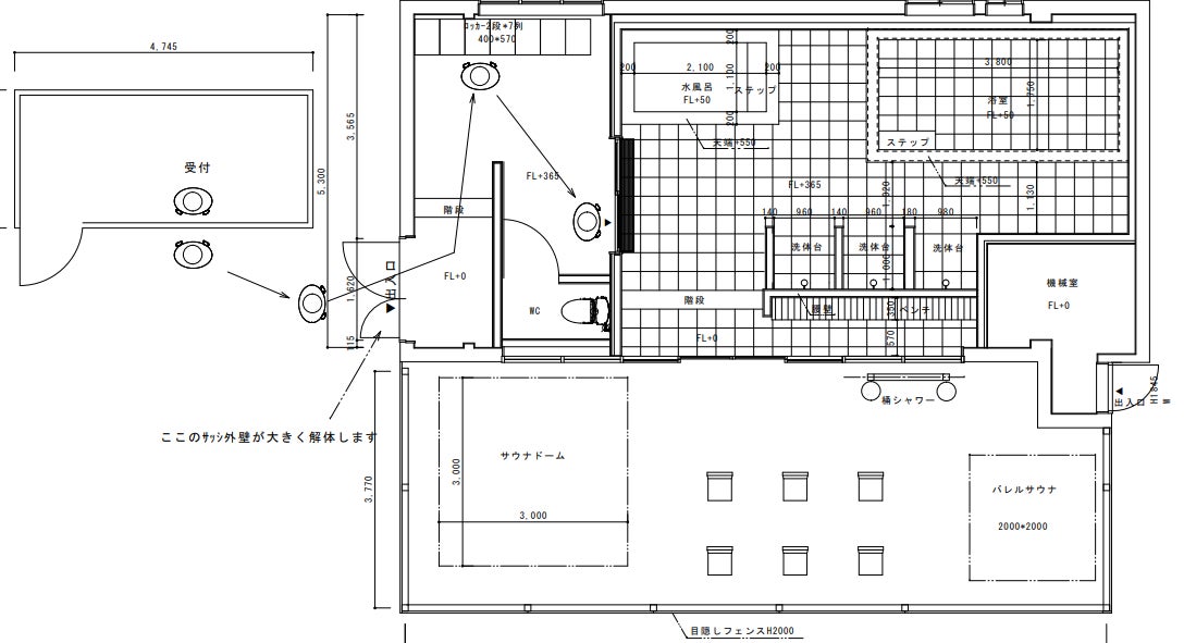
✏️平面図✏️
※本図面は現時点での計画案です。

■アピールポイント
本施設では、伊良湖温泉の恵みを最大限に活かしながら、ドーム型サウナやバレルサウナの導入を計画しています。
また、完成がゴールではなく、お客様の声に耳を傾けながら段階的に進化していくサウナを目指しています。将来的には脱衣所を改修し、室内にフィンランドサウナの追加投資を視野に入れています。
これにより、平面図左側からサウナ → 水風呂 → 内気浴・外気浴(ととのい)までの動線を完成させ、「また来たくなる」「育っていく」サウナとして、ロケット式に成長する施設を皆様と一緒に築いていきたいです。
🎈導入予定設備🎈
① テントサウナ「Sotoburo DOME12」
画期的なドーム形状により、ロウリュの蒸気が一気に天井へ広がり全身がやさしく包み込まれるような、これまでにないサウナ体験を実現します。
私自身はじめてこの「Sotoburo DOME12」に入った瞬間に「今までのサウナとまったく違う…!!」と衝撃を受けました。
熱さだけではなく
✔ 蒸気のまわり方 ✔ 呼吸のしやすさ ✔ 心地よさの持続感
「この感動を、田原市・豊橋市・豊川市の皆さんに“身近な日常”として届けたい!」そう強く思ったことが、本商品の導入を決めた理由です。

収容人数:12人

※本ページに掲載している製品画像は、メーカー様の許可を得て掲載しています
②サウナストーブ「HARVIA」
そして、このテントサウナを支える心臓部には、世界シェアNo.1を誇るサウナブランドHARVIA のサウナストーブを導入予定です。
圧倒的な存在感。容赦ない熱量。そして、機能美を極めた洗練されたデザイン。
HARVIAストーブ × Sotoburo DOME12の掛け合わせによって、“ととのい”の、その先へ導けると確信しています。
これまで田原市にはなかった「本格的なガチサウナ体験」をこのクラウドファンディングを通して、皆さまと一緒に創り上げていきたいと考えています。

※本ページに掲載している製品画像は、メーカー様の許可を得て掲載しています
③バレルサウナ
ここから先は、クラウドファンディングでのご支援額次第で実現を目指す構想となります。
TAHARA♨SAUNAのミッションは、「田原市を代表するサウナ施設を創ること。」
東京をはじめとする都市部には、富裕層向けのラグジュアリーなプライベートサウナが数多く存在します。
そんな施設にも真向から勝負できる田原市のサウナを、私と、東三河の皆様、全国の熱烈なサウナーの皆様の力を借りて創りたい野望があります。
このミッションを掲げるからには、ただサウナを創るだけではなく、“選べて、比べて、3セット整える” サウナを創りたいと考えています。

※バレルサウナとは、その名の通り「樽(バレル)」のような円筒形が特徴のサウナ。フィンランド発祥とされ、木材を円形に組み上げて作られており、熱がやさしく回り、長く入っていられる心地よさが魅力です。
<具体的な成長戦略:3つの異なるサウナを創る>
① sotoburo テントサウナ × HARVIA ストーブ(上記で触れた通り)
― 蒸気が一気に回る、没入感の高い最新テントサウナ。
② バレルサウナ × HUUM ストーブ
― 木の温もりに包まれ、やさしく深い熱を楽しめる屋外サウナ。
③ 王道の室内フィンランドサウナ × METOS ストーブ
― 日本のサウナ文化を支えてきた、安心感と安定感のある室内王道フィンランドサウナ。
■アピールポイント
一般的なサウナ施設では、ストーブメーカーを1社に統一するケースがほとんどです。
しかし「TAHARA♨SAUNA」では、あえて異なるメーカー・異なる個性のストーブを導入することで、熱の質、ロウリュの表情、体感の違いを、一つの施設で体験して、多店舗と差別化戦略をとります。
この挑戦は、皆さまの応援があってこそ実現できる未来です。どうかこの想いに共感していただき、応援・ご支援をよろしくお願いいたします。
③伊良湖温泉&水風呂
伊良湖温泉は、渥美半島の最南端・愛知県田原市で2020年に湧出した比較的新しい温泉です。
身体を芯から温めてくれるのが特長で、肌の古い角質をやさしく落とすことから「美肌の湯」とも呼ばれています。
✔ シニア層の皆様には、ゆっくりと長湯を楽しめる憩いの場として。
✔ 東三河の綺麗な女性には、レディースデイで美肌と心もリフレッシュできる場として。

サウナでしっかりと汗を流したあと、水風呂、そして締めの伊良湖温泉へ
──田原市ならではの、やさしく整う導線を実現します。
📍立地について📍
現在、物件については不動産業者様と最終調整中のため、正確な所在地の公開は控えさせていただいております。
そのうえで
■私が大切にした、3つの条件
① 田原市の中心街であること。
成章高校生、渥美農業高校生が学校終わりに通いやすいこと。

② 12時と17時のチャイムが聞こえる立地であること。
田原市民には聞き馴染みのある、昼と夕方のチャイム。あえてその音を、観光で訪れた方にも聴いてほしいと考えました。このチャイムは2カ月ごとに楽曲が変わり、四季を感じられるのが特徴です。その音楽に包まれながら外気浴でととのう──そんな田原市でしか味わえない体験を届けたい、という強いこだわりがあります。

③ 外気浴から蔵王山が見える立地であること。
外気浴スペースにはマジックミラー(通行人から見えない特殊なガラス)の導入を計画しており、田原市の象徴・蔵王山の景色を楽しめる設計を目指しています。

サウナでととのいながら、耳ではチャイムを、目では蔵王山を感じる──
それが、私の思い描く「TAHARA♨SAUNA」の絶対立地条件です。
🌟外装デザインについて🌟
TAHARA♨SAUNAの外装には、私の実家に使われていた「梁(はり)」を再利用する予定です。

この梁は、明治39年(1906年)に先祖が建てた実家で使われていたもので、119年にわたり、家族の暮らしを支えてきました。
私は田中家の8代目にあたり、初代は文化6年(1809年)に亡くなったと伝えられています。文化・文政・天保を経て、明治・大正・昭和・平成、そして令和へ──時代を越えて受け継がれてきた梁です。

2025年12月、実家はやむを得ず解体しましたが、そこで役目を終えるはずだったこの梁に、新たな命を吹き込みたいと考えました。

田原市の偉人である 渡辺崋山 が生きた時代にも存在していた梁を使い、それは形を変え、TAHARA♨SAUNAの外観として生まれ変わります。
このクラウドファンディングで実現することは
田原市中心部に「TAHARA♨SAUNA」オープン!
2026年上半期、田原市中心部に「TAHARA♨SAUNA」をオープンします。
起業に伴うリスクはすべて、代表である私が負う覚悟です。
【返礼品】として開店後の入館料1回分からご用意しているので、応援していただけたら、本当に励みになります。
“最後の一押し”を、どうか皆さまのお力で支えていただけたら嬉しいです。
🎁プロジェクト応援者への返礼一覧🎁
【TAHARA♨SAUNA|東三河サウナサークル】 ¥500
東三河在住のサウナ好き・サウナ初心者が集まる、 ゆるくて、でも人との繋がりもあるサウナサークル。 東三河のサウナ好きが横につながる場をつくりたい。
「サウナに興味はあるけど、入り方が分からない」
「一人で行くのはちょっと不安」
「TAHARA SAUNA 代表がどんな人物か知りたい」
そんな方も大歓迎です! 僕がサウナの楽しさや、基本の入り方をお伝えします!

【TAHARA♨SAUNA応援プラン】 ¥800
愛知県田原市を応援したい方へ
TAHARA♨SAUNAには行けない方へ

【入浴券 1回分 + OPEN記念ステッカー】¥1,500
※女性限定バージョンもあり!
まずは気軽に応援したい方へ
また支援への感謝の気持ちとして、支援手数料相当分の OPEN記念ステッカーをお付けします。

【単品1~2本|田原愛MOKUタオル】¥2,000~3,700
田原愛を「“ぎゅっ”。」と詰め込んだ MOKUタオル×先行体験セット
1.太平洋ロングビーチ(アクアブルー)
2.日の出石門(レッド)
3.菜の花(レモン)
4. イチゴ狩り(マンダリン)
5.蔵王山(ライムグリーン)

【パブリック|プレオープン限定】男女利用OKペア先行体験 × MOKU or キンタマモル2点セレクト
¥10,000
“プレオープン男女OKの特別体験ペアセット”です。 グランドオープンに先駆けて、支援者様限定で施設をご体験いただける先行利用権(2名様分)。 さらに、TAHARA SAUNAオリジナルアイテム2点をお選びいただける特別仕様です。 カップル、ご夫婦、親子で―― ぜひサウナ体験とあわせて、魅力あふれる愛知県田原市のまち歩きもお楽しみください。

【MOKUタオル×プレオープン先行体験】¥5,000
※女性限定バージョンもあり!
田原愛を「“ぎゅっ”。」と詰め込んだ MOKUタオル×先行体験セット

【ロゴ入りキンタマモル×プレオープン先行体験】 ¥6,000
全国のサウナ店の中で「TAHARA♨SAUNA」が「キンタマモル」との初コラボ!キンタマモル×TAHARA♨SAUNAロゴ刺繍入りの先行体験セットです!

【入浴券5回分|通う人向け・コスパ重視】¥6,500(通常7,500円)
グッズは不要だけど、TAHARA SAUNA を「何度か通ってじっくり楽しみたい」方向けの、先行応援返礼品です!仕事終わりのリフレッシュや、休日に利用にいただけます。ご自身用はもちろん、ご家族・ご友人とシェアして使いたい方。

【入浴券10回分|通う人向け・コスパ重視】¥13,000(通常15,000円)
グッズは不要だけど、TAHARA SAUNA を「何度も通ってじっくり楽しみたい」方向けの、先行応援返礼品です!仕事終わりのリフレッシュや、休日に利用にいただけます。ご自身用はもちろん、ご家族・ご友人とシェアして使いたい方。

【支援者ネーミング刺繍付き今治サウナハット×先行体験】¥8,000
※女性限定バージョンもあり!
世界に一つだけの支援者のネーミング刺繍が入ったサウナハットを作れるクラファン限定返礼品です!

【先行体験×MOKU×支援者ネーミング刺繍付き今治サウナハット】¥12,000
※女性限定バージョンもあり!
世界に一つだけの支援者のネーミング刺繍が入ったサウナハット+MOKUタオル+先行体験つきの全部セットです!

豪華3点セット【先行体験×ロゴ入りキンタマモル×支援者ネーミング刺繍サウナハット】¥13,000
※女性限定バージョンもあり!
TAHARA♨SAUNAの“特別な支援者セット”
男湯専用タオル「キンタマモル」をTAHARA♨SAUNAロゴ刺繍した特別仕様に加え、サウナハットには支援者様のお名前(またはニックネーム)を刺繍で刻印。さらにグランドオープン前の先行体験が付く【豪華3点セット】です!

超豪華4点セット【先行体験 × ロゴ入りキンタマモル × 支援者ネーミング刺繍サウナハット × MOKUタオル】¥15,000
TAHARA♨SAUNAの“超豪華特別支援者セット”
男湯専用タオル「キンタマモル」をTAHARA♨SAUNAロゴ刺繍した特別仕様に加え、サウナハットには支援者様のお名前(またはニックネーム)を刺繍で刻印。田原愛を「ぎゅっ」と詰め込んだMOKUタオル。さらにグランドオープン前の先行体験が付く【豪華4点セット】です!

【入浴回数券5枚×MOKU×支援者ネーミング刺繍付き今治サウナハット】 ¥18,000
※女性限定バージョンもあり!
世界に一つだけの支援者のネーミング刺繍が入ったサウナハット+MOKUタオル+回数券5枚つきの最上位グッズセットです!

【中サイズ|スポンサー特典3点セット】 ¥15,000
【特典内容】
①企業ロゴ or QRコード+支援者名を掲載
②入浴回数券 1回分
③のれん掲示
中サイズは、法人・個人問わず参加できる応援型スポンサー枠です。支援者の名前(会社名)を施設内に掲示し、継続的に感謝を伝える内容になっています!

【大サイズ|スポンサー特典4点セット】¥30,000
【特典内容】
①企業ロゴ or QRコード+支援者名を掲載
②入浴回数券 1回分
③のれん掲示
④浴室または脱衣所または洗体台部分へチラシ広告を掲出
大サイズは、サウナ施設を応援しながら自社やサービスのPRを行いたい方向けの企業特化型スポンサー枠です。施設の導線上にロゴ・QR・のれん・チラシを掲出でき、「来店者に継続的に認知される仕組み」をご用意しました!

【プレオープン貸切サウナ体験|10組限定|1組最大20名】 ¥36,000
男女一緒にご利用いただけるため、 家族利用・グループ利用に最適なプランです。
※最大20名で貸切プランご利用いただいた場合、 お一人あたり割勘1,800円と大変お得に楽しめます。
※グランドオープン後も同条件で利用可能

【法人・団体・福利厚生プラン|貸切利用付き+入浴券10人分+ロッカー企業名掲載】¥100,000
【特典内容】
①貸切利用
②入浴券10人分(従業員数分必要な場合は、別返礼品「入浴券10回分」をご支援ください)
③ロッカーに企業名・企業理念・自社商品掲載
本返礼品は、「地元と自社従業員」へ福利厚生としてもご活用いただける、法人様・団体様向けプランです。 社内貸切イベントや仕事終わりの福利厚生として利用可能で、社員の健康、生産性向上を目的とします。 また、ロッカーへの企業名掲載は、 脱衣の際に必ず利用者の目に触れる“生きるスポンサー枠”。 企業ロゴや企業理念を掲示し、自然なかたちで発信できます。

【創業応援・サウナ半年&年間パス|最上位応援枠|2名限定】¥150,000~300,000
TAHARA SAUNA の開業に向けた想い・覚悟に共感し、サウナ設備、伊良湖温泉設備などはじめりの立ち上げそのものを支えてくださる方のための、最上級クラスの感謝の返礼品セットです。単なる入浴券ではなく、TAHARA SAUNA のスタートを“一緒につくる”特別なサウナパスのため、支援者と打合せの上特別な場所にネームを掲示させていただきます。
【特典内容】
①毎日サウナ半年or一年パス(1日何度でも利用可)
②ドリンクバー飲み放題提供券(利用期間中)
③同伴者割引特典
└ ご本人同伴時、2名様目以降の利用料金が半額
③創業支援者として館内に特別枠でネーム掲載
④1回or2回の貸切利用権
⑤OPEN記念ステッカー

【法人向け|メインサウナ命名権(1社限定)】 ¥400,000
TAHARA♨SAUNA の象徴となる メインサウナの命名権を提供します
ブランド価値向上、地域への貢献PRとしてご活用いただけます
(命名例) 「◯◯◯ドーム SAUNA」











①企業ロゴ or QRコード+支援者名を掲載
②入浴回数券 1回分
③のれん掲示

①企業ロゴ or QRコード+支援者名を掲載
②入浴回数券 1回分
③のれん掲示
④浴室または脱衣所または洗体台部分へチラシ広告を掲出





✏️現在の準備状況✏️
・設計士、不動産業者と最終調整中
・地元豊橋の 8hiko hair オーナー様より経営アドバイスを受けながら準備を進行中
📉設備資金 及び 皆さまとの資金調達計画の詳細共有📉
本プロジェクトでは、資金の使い道や経営戦略を包み隠さず共有し、支援者の皆さまと“ワンチーム(社中・仲間)”として施設を創り上げたいと考えています。少し長くなりますが、最後までお読みいただけましたら幸いです。
■【第一弾】クラウドファンディング
・実施期間:12/28 ~ 2/28
・目標金額:100万円
・使用用途:伊良湖温泉設備・サウナ設備など
♠ 100%(100万円)を達成できたときNext GOAL について
皆様のお力をお借りし仮に第一弾 100万円を達成した場合、Next GOAL:150万円を設定します。
♠さらに、リアルな話をします。
私が 2025年12月4日にInstagramへ投稿した「MY PROFILE」でも触れましたが、この施設のコンセプトは
「マクドナルドのように、1,000円前後でそこそこ満足できる施設。」
現在、多くのサウナ施設では3,000〜5,000円/2〜3時間 の価格帯が主流になりつつあります。それはサウナ業界にとって、とても素晴らしい流れだと思っています。それでも私が1000円前後の利用料金にこだわる理由は、田原市図書館で見た、田原市の子どもたちが原点です。
商売においては「甘い」ですが、私は原点を忘れず、田原市民にとって日常的に利用しやすい施設であり続けます。将来、もし利用料金が 2,000円を超える日が来たら、「選挙のときだけ綺麗事を言う政治屋・ペテン師」というレッテルを貼っていただいて構いません。
【第二弾】クラウドファンディング(春開催予定)
・目標金額:150万円
⇒ 使用用途は居抜き物件の改装費 に充当します。
■ 覚悟を示します
「本当に1,000円前後の料金を守るのか?」
「口だけではないのか?」
そうした疑念を持たれるのは、当然だと思っています。このタイミングで、新卒2年目に購入したマツダ CX-5 を売却します。(査定額:約180万円)
自己資金を拡充すると同時に、私自身もリスクを取り、支援者の皆さまへ“覚悟”を示します。この愛車の売却で得た自己資金は、浴槽工事に充てます。
📅全体スケジュール📅
2025年12月 第一弾クラウドファンディング
2026年3月 物件契約締結
2026年4月 第二弾クラウドファンディング
2026年5月 店舗工事開始
2026年秋 「TAHARA♨SAUNA」プレオープン
2026年秋 グランドオープン
※進行状況により変更となる場合があります。
最後に私の経営理念は
「田原市にないものを創る。」
小学生の卒業文集には「田原市にバッティングセンターをつくりたい」と書きました。
あれから十数年。
“地元に無いものを生み出したい”“若者のニーズに応えたい”その気持ちは一度も揺らいでいません。
これは、私の理念であり、事業を続けるうえでの“志”です。
私の残り約60年の人生の費やし方は
今を生きる田原市民に、今はまだ存在しない
“新しい余暇の選択肢” を提供し続ける人生でありたい。
サイバーエージェントの藤田晋社長が24歳で「21世紀を代表する会社を創る」と掲げたように、私も「田原市を代表するサウナ施設を創る。」ことを宣言します。
この「TAHARA♨SAUNA」は
田舎で何もないと思われている田原市の未来を変える第一歩。
どうか、この挑戦を一緒に前へ進める力を貸してください!
最後までお読みいただき、心より感謝申し上げます。
田原社中 / 代表 田中
最新の活動報告
もっと見る
【Blog #33|2026/4/25】車売却と自転車購入~ここからが本当のクラウドファンディング~
2026/04/27 20:494/23車売却開業費用に充てるために車を売却しました。さっそく予想していた通り、車のありがたみを痛感しました。有難う。最近は雨の日が多く、天に覚悟を試されているような気がします。開業までの辛抱だと思い、スタート地点(=開業)に辿り付けるよう頑張ります。田原市街を歩くことで、色々発見がありました。カエルの鳴き声や雨音、小学生の頃に水遊びをした道路のくぼみにできた水たまり。道路を歩く、テントウムシ。そんな風景を感じながら歩く時間も、これはこれで悪くないと感じました。最近はこうした日々の積み重ねが、揺るがない断固たる覚悟をさらにさらに形成している実感です。ここの水たまりで遊んだ「断固たる決意。」4/27(月)自転車を購入先ほど徒歩45分かかっていたところが、チャリで10分で帰宅することが出来ました。今日は、職場の先輩方、地元の経営者から励ましを貰い、モチベーションが上がりました。 もっと見る
【Blog #32|2026/4/21】4月やったこと報告~ここからが本当のクラウドファンディング~
2026/04/21 03:034月やったこと報告・空き部分は、基本バイトか資料作り■今月の活動報告・4/2(木)アイシン勤務の同級生へインタビュー調査を実施 金融機関向け資料に反映中(本ページ下部に添付)・4/3(金) デザイナーと初回打合せGWにTシャツ販売予定目的①:自己資金の拡充 目的②:グッズ部門の実績証明(対金融機関) △成果が出なかった場合、評価低下のリスクあり・4/6(月) 豊橋商工信用組合へ口座開設に訪問(印鑑忘れで手続き未完了)・4/7(火) HP制作打合せ 檜風呂打合せ サウナハット打合せ・4/8(水) 車売却について職場の先輩へ相談 GW販売用「MOKUタオル」発注(納期GW商戦に間に合うと良いな)・4/9(木)眼科医の先生とランチ・4/10(金) 田原市在住の日体大OB・OGと「椿」にてカフェ毎週金曜:12:00〜20:30 田原バイト 21:30〜 スタバ柱店にてデザイナーと打合せ・4/11(土) 毎週土曜:12:00〜20:30 田原バイト・4/12(日) 毎週日曜:7:00〜11:00 カフェ勤務 12:00 理容室 16:00 kokotsu kitchen様とお会い20:00 麺吉・4/13(月)トヨタの知人にインタビュー調査ホームサウナという名の実家:ウェルビー栄でサウナ元同僚と会食・4/14(火) 東京での就職活動時代に出会った経営者と経営相談cafe2910にて重要打合せ・4/15(水)22:00〜 デザイナーと打合せ・4/16(木) 自家用車の売却査定 夜:地元経営者と会食・4/17(金)重要な方と面会 結果:継続協議(次回再交渉)・4/19(日) サウナメディア関係者へ挨拶・4/20(月)7:00〜11:00カフェ勤務 深夜2:00〜 豊橋ガストにて資料作成 深夜3:00~本報告作成■進捗・所感・資料作成は直近1週間は停滞し苦戦したが、たたき台を作成し突破・4/21~ブラッシュアップフェーズに移行・4/21~オフのため、集中して作業予定■今後の重要イベント・4/23(木) 自家用車売却受け渡し日・夜:TAHARASAUNAの将来に関わる重要打合せ■余談今月は資料作成に加え、「GW商戦に向けたチラシ制作」にも取り組んでいました。ただ、デザイン面については正直なところ、自分一人で対応するには限界を感じています。前職の上司からは、「起業初期は、経理・営業・雑務まで、すべて自分で担うものだ」と教わりました。その方は、設計系の会社を立ち上げた経験を持つ方です。当時の私は社会への理解も浅く、起業とはどういうものかもわかっていませんでしたので、自分の所属部署の業務しか見えていませんでした。しかし今、同じように起業の道を進む中で、その言葉の意味を実感しています。実際にやってみて、個人的に最も早く外部の力を借りたいと感じたのが「デザイナー」でした。チラシ制作に想定以上の時間がかかり、本来注力すべき業務に十分な時間を割けていません。クラウドファンディングの際も、SNSデザインに多くの工数を要しました。 もっと見る
【Blog #31|2026/4/15】順調じゃないとき楽しくないから、10km走りに行く。~ここからが本当のクラウドファンディング~
2026/04/16 00:40順調じゃないとき楽しくないから、10km走りに行く。今日は、ちょっぴり曇り気味のブログです。仕事って、順調にサクサク進むときは楽しいですよね!逆に、思い通りに進まないときは、まったく楽しくない!やることが色々追われて、何から手をつけていいのか分からなくなり、楽しくない。<4/14(火)23:30>寝ようとしても、頭の片隅には「やるべきこと」がいくつも残っている。けど起き上がって取り組む気力も、集中力はない。<そんなときは――Anytime Fitnessに行く!>普段あまりやらないランニングマシンに軽い気持ちで乗り「よし、10km走ろう!」と決めてスタート。でも、4kmあたりで限界がくる。「きつい…」「やめたい…」「膝が痛い…」それでも、ここでやめたらダメだ。自分で決めたことを、やり抜く。なんとか10km完走。自分に勝つって、気持ちいい。よっしゃー!帰宅して、今やるべきことを紙に「整理」しました。さあ、ここから。一つずつタスクを処理していきます。「イマ目の前のことを一生懸命やること。」室伏選手のポスターは、小学生の頃、豊川高校の体育の先生が指導室に貼っていて、のちに僕もその高校に通うことになるのですが、卒業時そのポスターを貰いました。大学時代から社会人の間で、3回引っ越しをしていますが、一人暮らしの冷蔵庫に、ずっと貼り続けています。 もっと見る





リターン品の見本品見たいので田原図書館に、置いてますか?
温度43°くらいに加温された伊良湖温泉の浴槽も設置予定ですか?水風呂に伊良湖温泉を使われますか?ボイラーは設置されますか?公衆浴場法の許可を取得しますか?