ー25周年の新宿シアターブラッツを、次の100年へつなぎたいー
新宿シアターブラッツは、多くの名作と才能を生み出してきた劇場です。
しかし正直に申し上げると...
長時間の観劇で「お尻が痛い」と感じる座席環境により、
この劇場での観劇を避けているお客様がいらっしゃるのも事実です。
また、ホワイエは開演前や終演後に動線が混み合い、
十分に快適とは言えない状況があります。
私たちは、このままではいけないと思いました。
座席を改善、ホワイエと動線を見直し、
「またブラッツで観たい」と心から思っていただける劇場へ。
次の25年、そして100年先まで愛され続ける場所へ。
しかし、その実現には多大なリニューアル資金が必要です。
この劇場を未来へ残すために、どうか皆さまの力を貸していただけないでしょうか。


「新宿シアターブラッツ」は、2000年7月のオープン以来、四半世紀にわたり「小劇場」というカルチャーを新宿の地に根付かせてきました。
演劇を愛する表現者たち(=BRATS/悪ガキ)の遊び場として、数多の劇団・役者に愛され続けてきた歴史ある劇場です。
25周年という節目のタイミングで、運営会社が「有限会社馬力屋」から弊社「株式会社クーチ」へとバトンタッチいたします。
「この場所を愛する人々のために名前を残したい」という両社の強い想いが一致し、劇場名は変わらず「新宿シアターブラッツ」として継続されます。
弊社は、本劇場が築き上げてきた歴史という襷(たすき)をしっかりと受け継ぎ、次の25年、そして100年先も新宿の地で愛され続ける劇場を目指し、運営に邁進する所存です。
小劇場ならではの熱気と感動を、これまで以上にお客様へお届けできるよう努めてまいります。
劇場に足を踏み入れた瞬間から出る瞬間までワクワクしていただける空間を目指し、劇場リニューアルを鋭意準備中です。

株式会社クーチは、「映画・演劇・小説・漫画・音楽をないまぜに縦横無尽に作品を作る」という志のもと発足しました。
特定のジャンルにとらわれず、演劇、映像、音楽、イベントなど多様な表現手法を融合させ、常にその時代に一番適した舞台エンターテイメントの可能性を追求し、観客に革新的な体験を提供することを目的としています。
◆2026年ラインナップ
過去公演作品
https://www.cooch.jp/works/
新体制でのスタートに合わせ、伝統ある劇場の魅力はそのままに、お客様にとってより快適な空間となるよう設備のアップデートを行います。
より作品へ没入できる環境をつくることが、本プロジェクトの目標です。
1. 観劇体験の向上
従来の客席を見直し、観劇しやすい「固定椅子」へと刷新。
小劇場では珍しい奥ゆきあるステージは変わらず、客席は完全リニューアルし映画館と同様の固定椅子に。日本の小劇場随一の観劇環境を提供いたします。

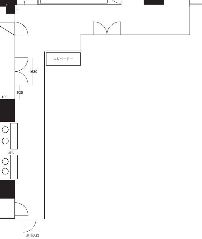
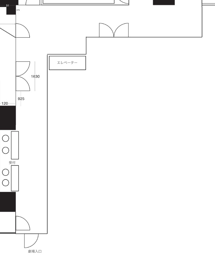
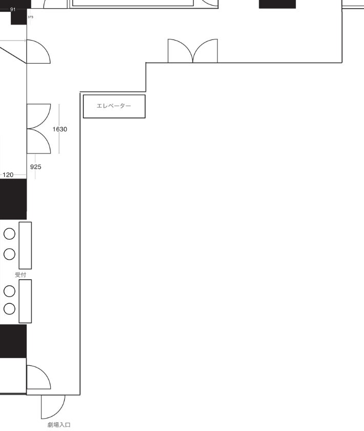
2. ホワイエ・動線の改善
劇場入口から始まる没入感、進む1歩が楽しくなるホワイエに。
劇場入口・廊下は完全リニューアルされます。観劇するお客様にとって、より綺麗でより居心地のよい空間を。制作スタッフにとっても働きやすい環境を提供します。
※その他楽屋リフォームなども行います。
◆リフォーム後イメージ

【1:お礼メール】
お礼メールをお送りします。
【2:感謝クレジット】
シアターブラッツHPにご支援いただいた方のお名前を掲載します。
・掲載期間:2026年5月9日から事業が存続する限り掲載
・掲載方法:文字(お名前)のみ
【3:ステッカー】
オリジナルステッカー(3cm×9cm)をお送りします。
シアターブラッツの新ロゴデザインに英文「Your story plays here.」(意味:あなたの物語がここで(上演されている)を重ねて配置。
【4:劇場オリジナルTシャツ】
シアターブラッツのオリジナルTシャツをお送りします。
フロントデザインには、英文「Your story plays here.」(意味:あなたの物語がここで(上演されている)を配置。バックデザインには、シアターブラッツの新ロゴデザインをあしらい、前後で異なる表情を楽しめる一枚に仕上げました。
※備考欄にご希望のサイズ(S/M/L/XL)のいずれかをご記入ください。
【5:劇場リニューアル記念楯にお名前掲載】
シアターブラッツリニューアルオープン記念楯へ、ご支援いただいた方のお名前を掲載し劇場内に設置いたします。
・掲載期間:2026年5月9日から事業が存続する限り掲載
・掲載方法:文字(お名前)のみ
【6:株式会社クーチ主催シアターブラッツ公演券】
シアターブラッツにて行われる株式会社クーチ主催の公演をご観劇いただける特別券です。
※ご支援金額により枚数が異なります。
※お席はお選びいただけません。
(有効期限:2027年4月末)
【7:シアターブラッツ公演券 5回分】
シアターブラッツにて行われる公演を5回ご観劇いただける特別券です。
※お席はお選びいただけません。
(有効期限:2027年4月末)
【8:株式会社クーチ主催シアターブラッツ&シアターサンモール公演 年間見放題パス】
シアターブラッツ&シアターサンモールにて行われる株式会社クーチ主催の公演を年間見放題!
※お席はお選びいただけません。
(有効期限:2027年4月末)
【9:劇場ツアーご招待】
▶︎ 開催日:2026年5月9日(土) 15:00~16:30
リニューアルした劇場内を自由に見学できるだけでなく、普段は入れない楽屋やオペレーションルームまで特別公開!
さらに、お好きなスポットで一眼レフ撮影を実施!撮影したお写真はその場でプリントし提供します☆
【10:劇場リニューアルイベントご招待】
▶︎ 開催日:2026年5月9日(土)17:00~18:30
リニューアルを記念したこの日限りの特別なイベントへご招待!
※座席は先着順で割り振られます。
☆リターン品追加☆
プレミアム席、特典付き指定席も選択可能なクーチ主催公演年間パスを追加しました!
※シアターサンモール公演については、60,000円リターン⇒S席指定席選択可能、120,000円リターン⇒SS席・S席指定席選択可能
【11:\特典付き指定席・プレミアム席・S席・SS席選択可能/株式会社クーチ主催シアターブラッツ&シアターサンモール公演 年間見放題パス】
シアターブラッツ&シアターサンモールにて行われる株式会社クーチ主催の公演を年間見放題!
・シアターブラッツ公演:特典付き指定席、プレミアム席もお選びいただけます。
・シアターサンモール公演:60,000円リターン⇒S席指定席選択可能、120,000円リターン⇒SS席、S席指定席選択可能となっております。
※ご予約は一般発売と同じ方法でご予約となります。(当日精算でご予約いただき、備考に年間パス利用の旨をご記載ください。)
(有効期限:2027年4月末)
●1,000円
・お礼メール
●3,000円
・お礼メール
※このリターンは1000円のリターンと同じ内容になります。
●5,000円【オリジナルステッカー】
・お礼メール
・シアターブラッツHPにお名前掲載
・オリジナルステッカー
●10,000円【オリジナルグッズ+クーチ主催シアターブラッツ公演券 1回分】
・お礼メール
・シアターブラッツHPにお名前掲載
・オリジナルステッカー
・劇場オリジナルTシャツ
・株式会社クーチ主催シアターブラッツ公演券 1回分(有効期限:2027年4月末まで ※お席はお選びいただけません。)
●20,000円【オリジナルグッズ+クーチ主催シアターブラッツ公演券 2回分】
・シアターブラッツHPにお名前掲載
・劇場リニューアル記念楯にお名前掲載
・オリジナルステッカー
・劇場オリジナルTシャツ
・株式会社クーチ主催シアターブラッツ公演券 2回分(有効期限:2027年4月末まで ※お席はお選びいただけません。)
●30,000円【劇場ツアーご招待+シアターブラッツ公演券 5回分】
・シアターブラッツHPにお名前掲載
・劇場リニューアル記念楯にお名前掲載
・劇場ツアーご招待
・オリジナルステッカー
・劇場オリジナルTシャツ
・シアターブラッツ公演券 5回分(有効期限:2027年4月末まで ※お席はお選びいただけません。)
●50,000円【劇場ツアー&リニューアルイベントご招待+クーチ主催シアターブラッツ&シアターサンモール公演 年間見放題パス】
・シアターブラッツHPにお名前掲載
・劇場リニューアル記念楯にお名前掲載
・劇場ツアーご招待
・劇場リニューアルイベントご招待
・オリジナルステッカー
・劇場オリジナルTシャツ
・株式会社クーチ主催シアターブラッツ&シアターサンモール公演 年間見放題パス(有効期限:2027年4月末まで ※お席はお選びいただけません。)
☆追加リターン品☆
●60,000円【\特典付き指定席・プレミアム席・S席選択可能/ 株式会社クーチ主催シアターブラッツ&シアターサンモール公演 年間見放題パス+劇場ツアー&リニューアルイベントご招待】
・シアターブラッツHPにお名前掲載
・劇場リニューアル記念楯にお名前掲載
・劇場ツアーご招待
・劇場リニューアルイベントご招待
・オリジナルステッカー
・劇場オリジナルTシャツ
・株式会社クーチ主催シアターブラッツ(特典付き指定席・プレミアム席選択可能)&シアターサンモール公演(S席指定席選択可能)年間見放題パス(有効期限:2027年4月末まで)
※チケットのご予約は一般発売と同じ方法でご予約となります。(当日精算でご予約いただき、備考に年間パス利用の旨をご記載ください。)
●120,000円【\特典付き指定席・プレミアム席・S席・SS席選択可能/ 株式会社クーチ主催シアターブラッツ&シアターサンモール公演 年間見放題パス+劇場ツアー&リニューアルイベントご招待】
・シアターブラッツHPにお名前掲載
・劇場リニューアル記念楯にお名前掲載
・劇場ツアーご招待
・劇場リニューアルイベントご招待
・オリジナルステッカー
・劇場オリジナルTシャツ
・株式会社クーチ主催シアターブラッツ(特典付き指定席・プレミアム席選択可能)&シアターサンモール公演(S席・SS席指定席選択可能)年間見放題パス(有効期限:2027年4月末まで)
※チケットのご予約は一般発売と同じ方法でご予約となります。(当日精算でご予約いただき、備考に年間パス利用の旨をご記載ください。)
〇受付、入口、劇場廊下の完全リフォーム費
〇固定椅子導入費(客席ひな壇新規製作費を含む)
〇劇場内新塗装費
〇リターン仕入れ費、発送費
〇クラウドファンディング手数料
クラウドファンディング開始:2月15日
クラウドファンディング終了:3月31日
リニューアル工事開始:4月
リニューアルオープン:5月
最後までお読みいただきありがとうございます。シアターブラッツは、長年にわたり多様な創作と出会いを支えてきました。
劇場とは「誰かの作品のための場所」であると同時に、「観る人・創る人・支える人が共に文化を育てる場所」だと考えています。
今回のリニューアルは、その環境を整え、未来へ繋ぐための取り組みです。
ぜひ皆さまのお力をお貸しください。
応援のほど、どうぞよろしくお願いいたします。
・シアターブラッツ公式サイト:https://theaterbrats.com/
・株式会社クーチ公式サイト:https://www.cooch.jp/
・株式会社クーチ X:【Boot】https://x.com/Boot_2022【POCCOPUBRE】https://x.com/poccopubre
・株式会社クーチ Instagram:https://www.instagram.com/poccopubre.boot/
最新の活動報告
もっと見る
クラウドファンディングご支援のお礼
2026/04/08 11:553月31日にてクラウドファンディングが終了いたしました。みなさま、この度は当プロジェクトにご支援・応援をお寄せいただき、本当にありがとうございました!目標支援額達成とはなりませんでしたが、62%達成、110名の方にご支援いただきました...!本当に心から感謝の気持ちでいっぱいです。いよいよ4月より、劇場のリニューアル工事がスタートしました!スタッフ一同、どのような姿に生まれ変わるのかワクワクしております☆改めまして、この度のご支援に、重ねて深く御礼申し上げます。本当にありがとうございました。新しく生まれ変わった劇場で、皆さまとお会いできる日を心から楽しみにしております! もっと見る
ご支援金 100万円 到達!
2026/03/04 11:47皆様の温かいご支援のおかげで、ご支援金が【100万円】に到達しました!一つひとつのご支援、そして応援のお言葉に、心より感謝申し上げます。本当にありがとうございます。この100万円は、劇場の未来をより良くするための大きな一歩です。皆さまの想いが確かに形になり始めています。私たちの挑戦はまだ続きます!クラウドファンディング終了まで残り27日。引き続きのご支援、そして情報のシェア・拡散のご協力よろしくお願いいたします!▼クラウドファンディングは3/31(火)23:59まで!https://camp-fire.jp/projects/914691/view もっと見る
開始2日目で50万円達成!
2026/02/18 12:28開始2日目で50万円達成いたしました!皆さまたくさんのご支援、本当にありがとうございます!応援メッセージのひとつひとつに背中を押されています。皆さまからお預かりした大切な想いをしっかりと受け止め、より良い環境でお客様をお迎えできる劇場づくりに励んでまいります。目標達成まで、まだまだ挑戦は続きます!引き続き応援いただけましたら幸いです。クラウドファンディングは3/31(火)23:59まで!引き続きどうぞよろしくお願いいたします。 もっと見る







応援してます(^^)