2026/04/24 20:42

こんにちは!たまきです!
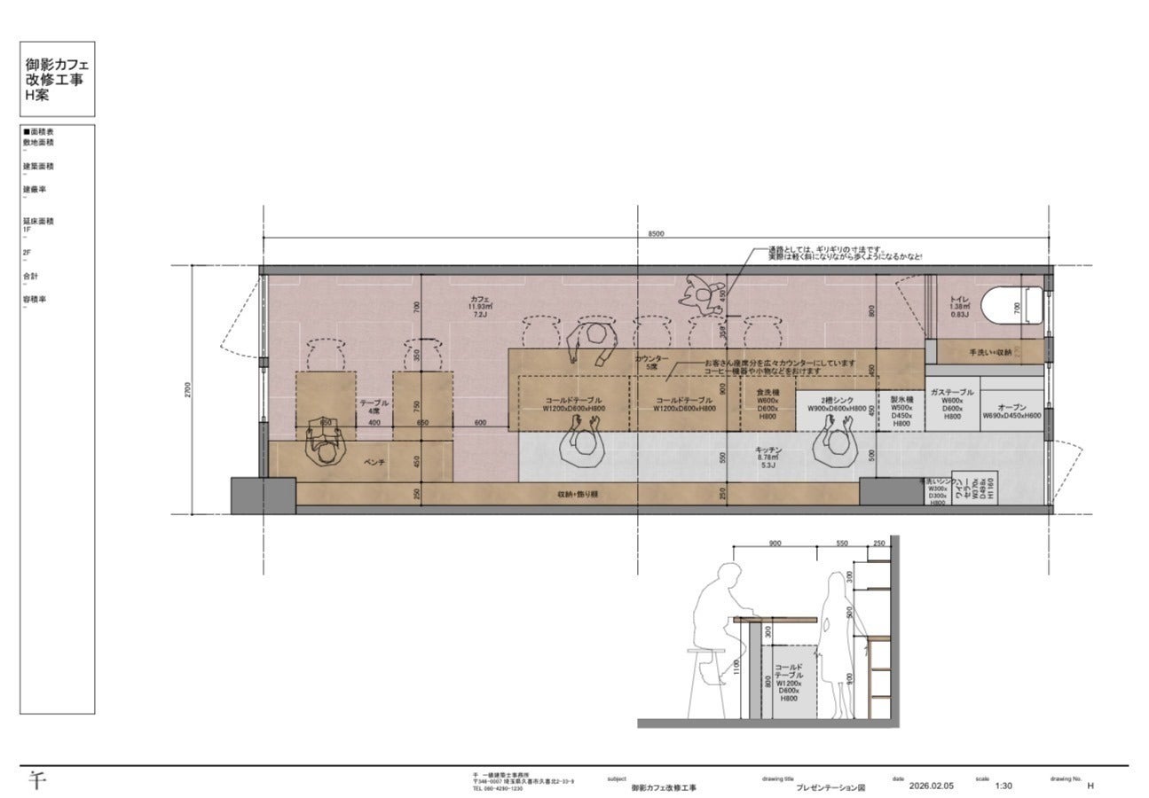
先週日曜に東京から神戸にお引っ越しが完了し、すぐに内装工事が始まりました!

3日間でたばこ屋さんの面影はなくなり、完全なスケルトン状態に戻りました…!

これからいよいよ店作りが始まるんだなと実感が湧いてきてワクワクしています。
着工はGW明けからになりますので、また進捗があればご報告させていただきます!
おやすみなさい〜!





現在の支援総額
1,638,000円
目標金額は1,500,000円
支援者数
155人
募集終了まで残り
終了
このプロジェクトは、2026/03/02に募集を開始し、 155人の支援により 1,638,000円の資金を集め、 2026/03/31に募集を終了しました





現在の支援総額
1,638,000円
109%達成
目標金額1,500,000円
支援者数155人
このプロジェクトは、2026/03/02に募集を開始し、 155人の支援により 1,638,000円の資金を集め、 2026/03/31に募集を終了しました

こんにちは!たまきです!
先週日曜に東京から神戸にお引っ越しが完了し、すぐに内装工事が始まりました!

3日間でたばこ屋さんの面影はなくなり、完全なスケルトン状態に戻りました…!

これからいよいよ店作りが始まるんだなと実感が湧いてきてワクワクしています。
着工はGW明けからになりますので、また進捗があればご報告させていただきます!
おやすみなさい〜!