▼はじめにご挨拶
初めましての人も、そうでない人も。
こんにちは!”沼田基”こと”ぬまっち”です!!(写真中央)
高校卒業後、神奈川県横浜市の電気工事会社に就職し約10年間電気の現場監督していました。2014年8月から3年9ヶ月、46カ国を巡る世界一周へ。
2018年4月23日に完全帰国。
帰国からちょうど一年後の2019年4月23日にゲストハウス『トライアングル』のオープンを目指して日々奮闘しております!!
▼このプロジェクトで実現したいこと
僕の夢は、好きな時に好きな場所で好きな人とお酒を飲む事。
好きな人に僕のゲストハウスに集まってもらえたら、朝まで一緒に飲めるじゃないか!!
と、革新的な事に気づいちゃいました。
皆さん、僕の作る宿で一緒に飲みましょう!!
宿の場所はこちら!
住所:新潟県燕市宮町3−6
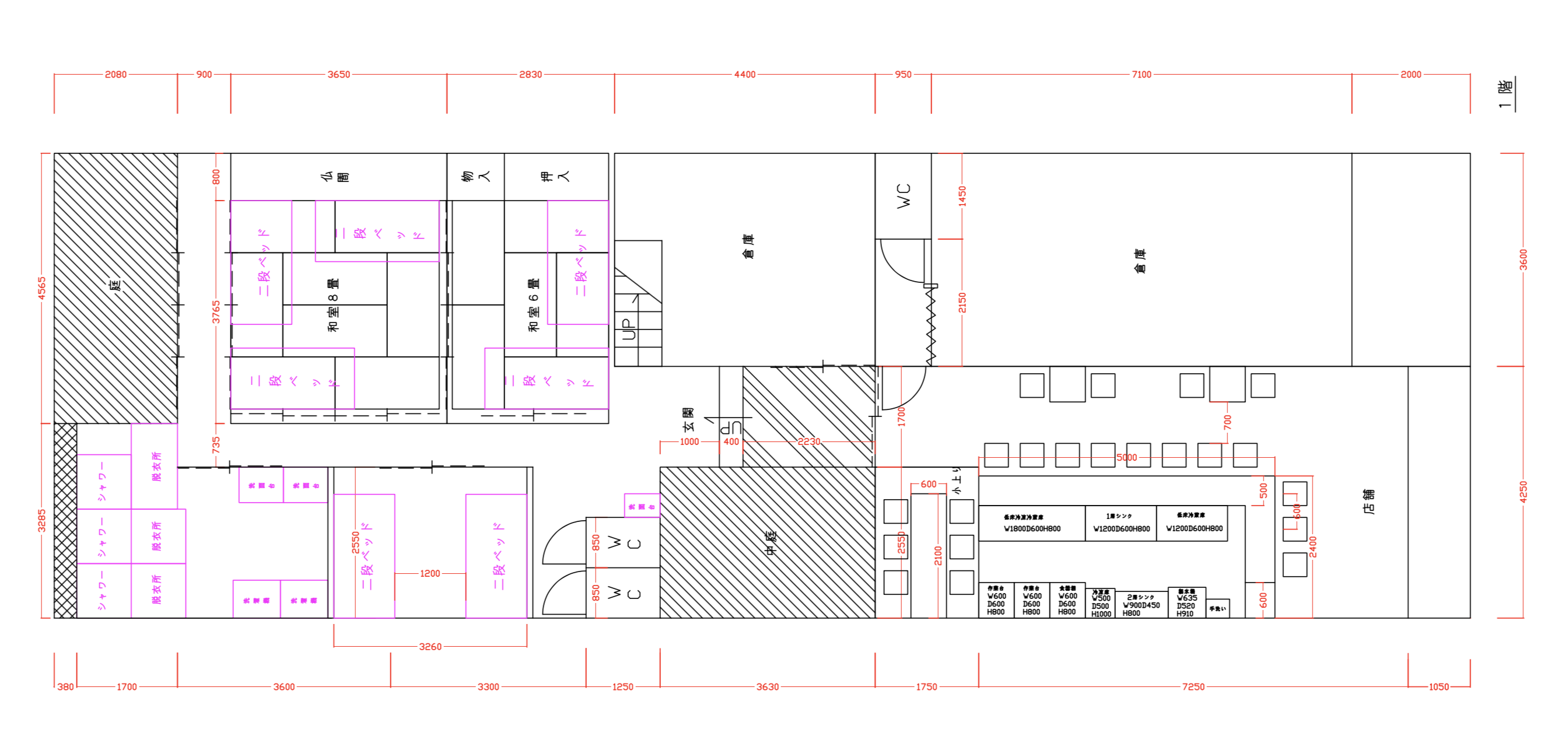
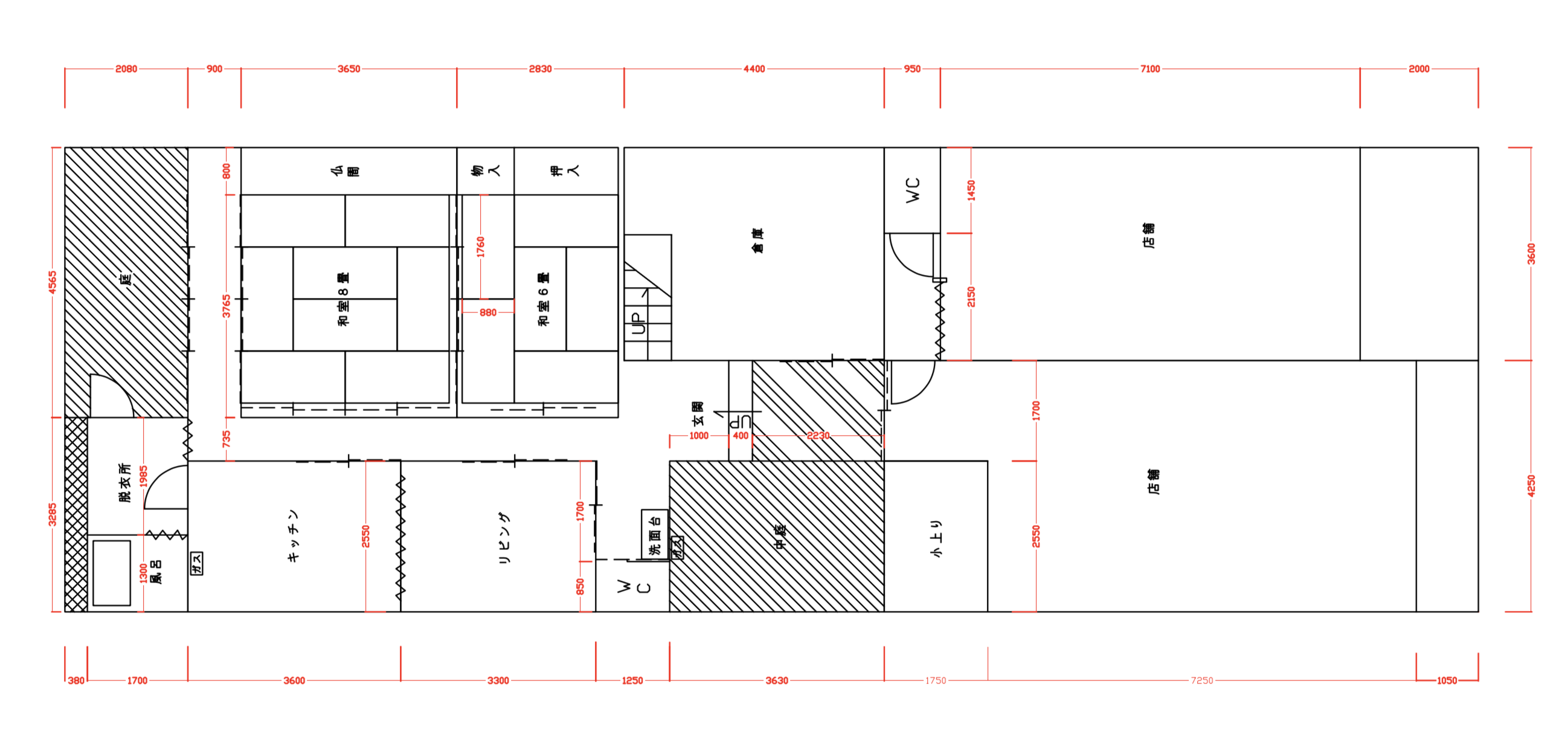
宿は一階がお客様のスペースで、カウンターバーを併設します。
二階はスタッフ専用スペースになります。
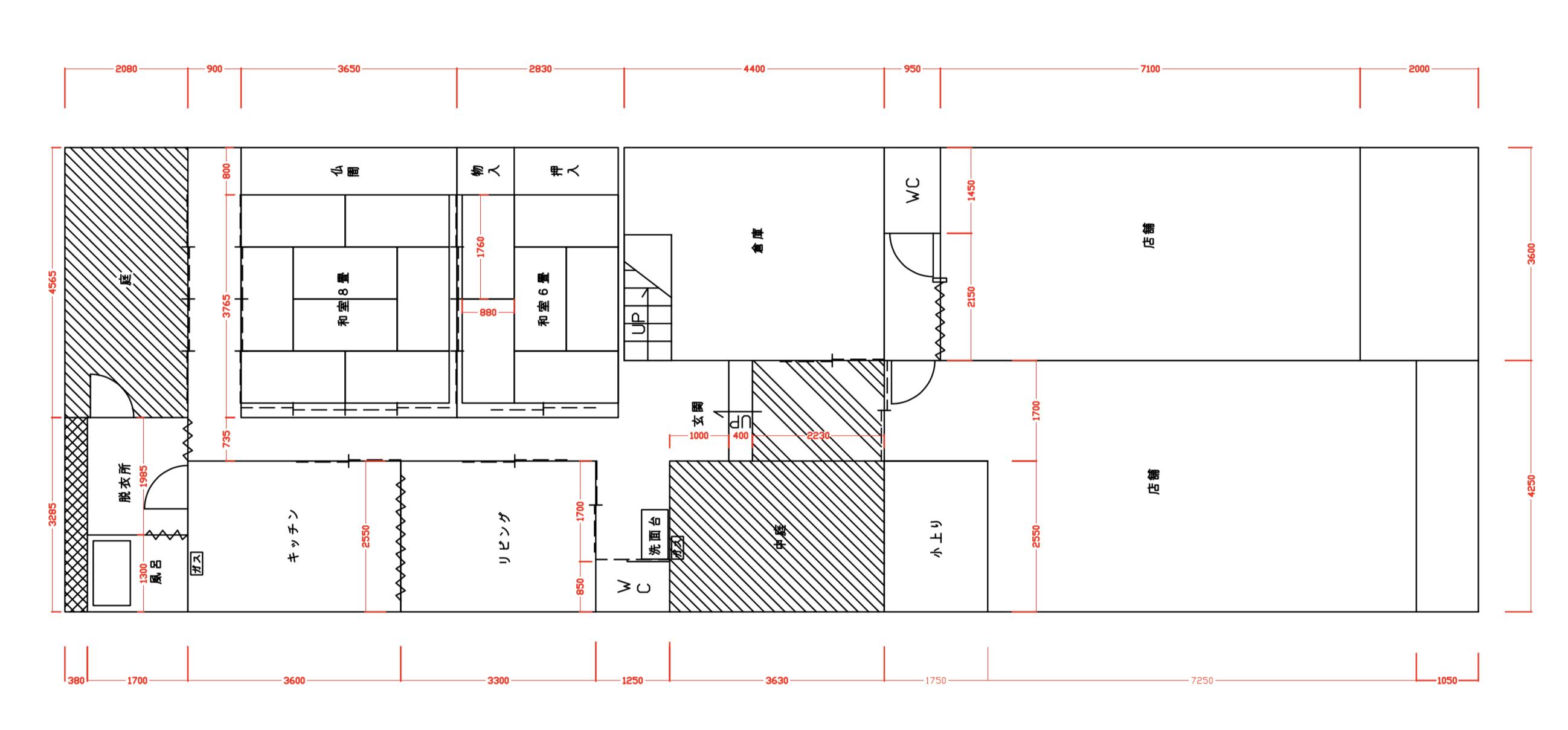
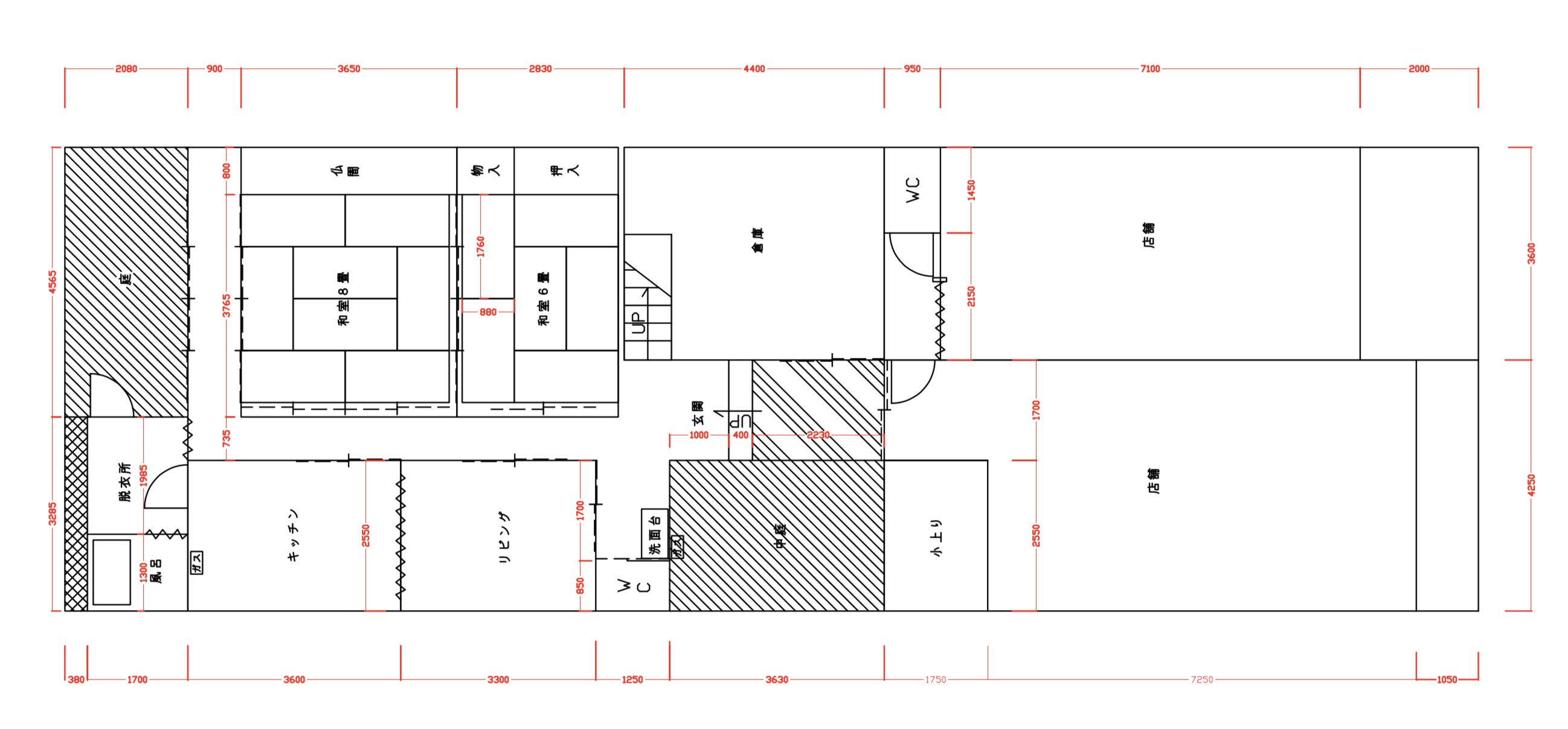
一階改修工事前の図面。

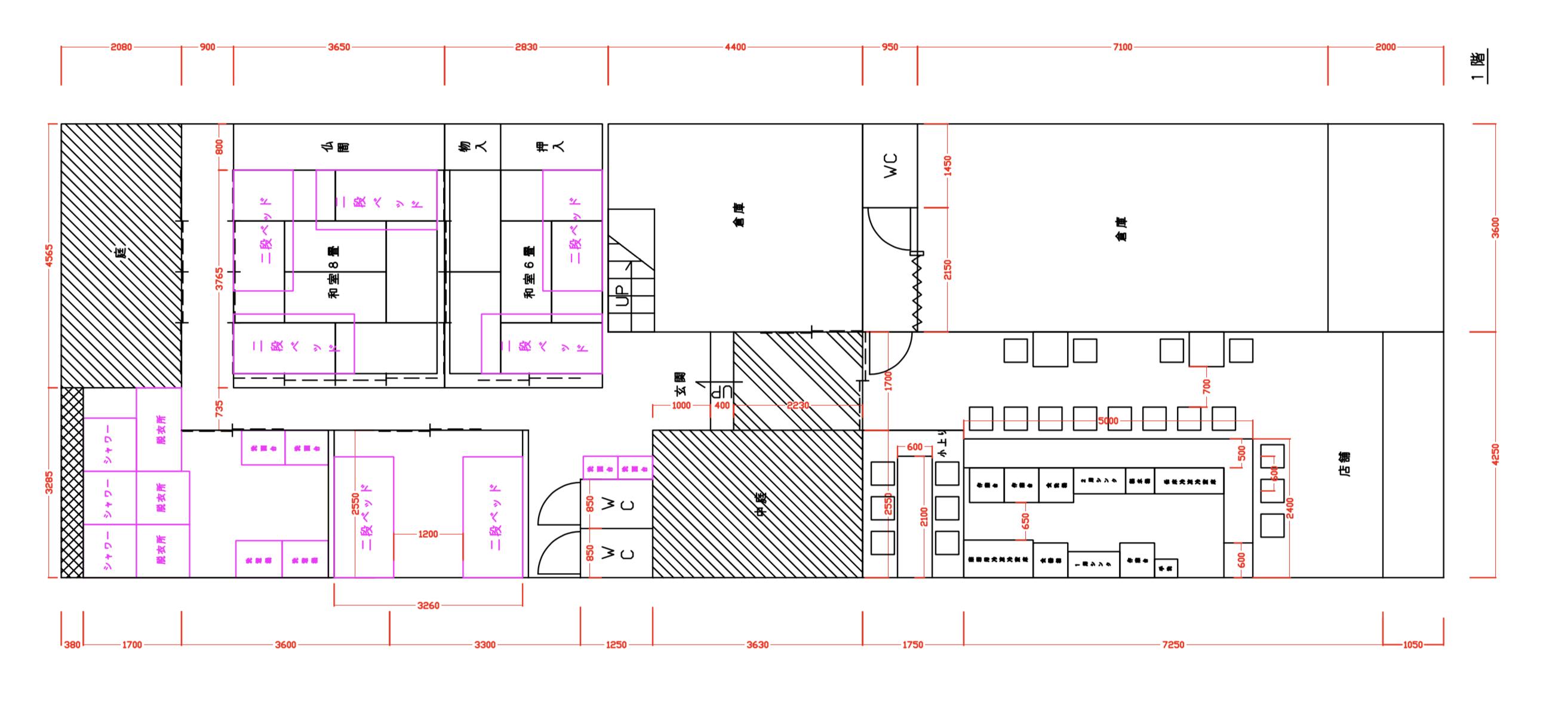
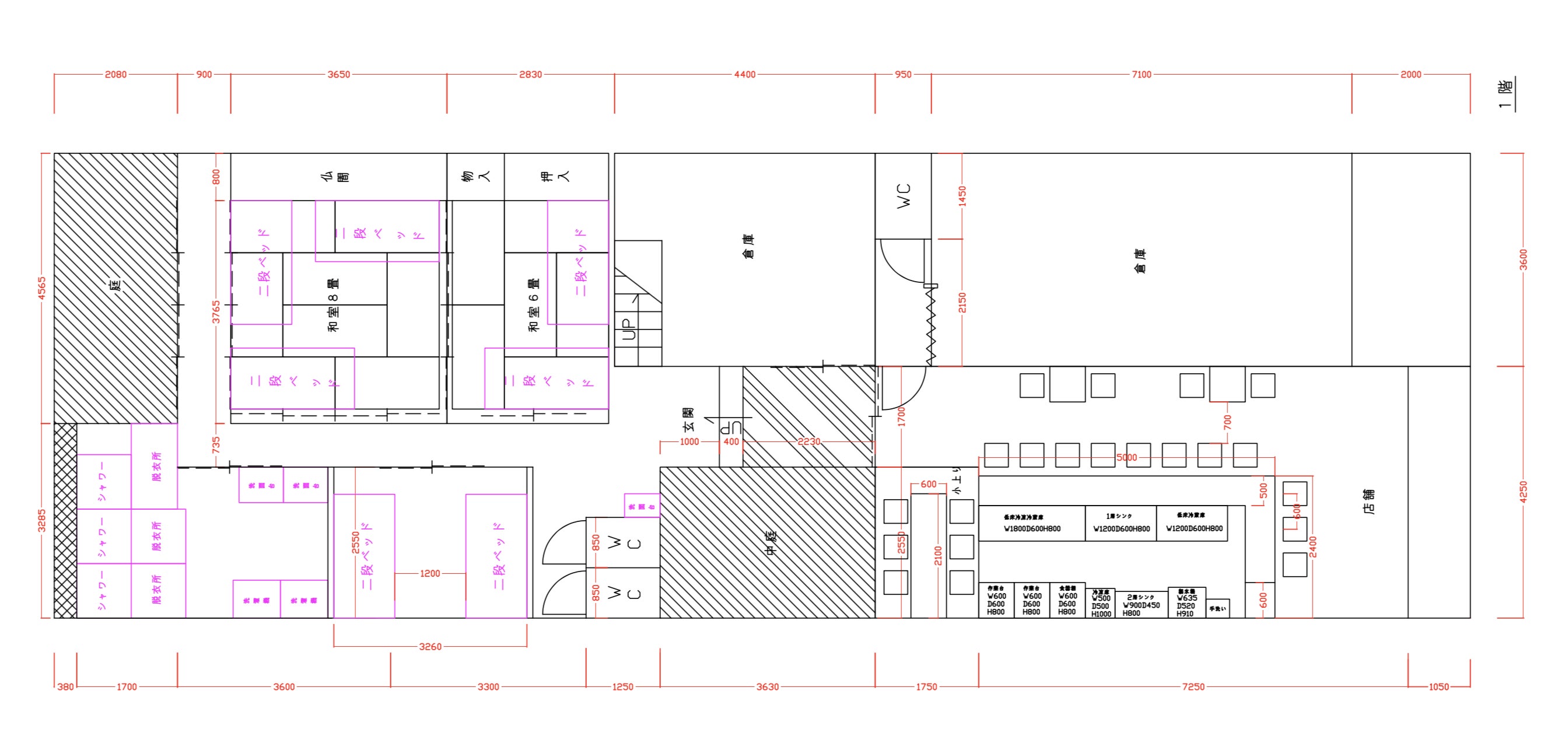
一階完成予定図。

カウンターバーは21席の予定です。

ちなみにこの図面、自分で書きました!!
▼プロジェクトをやろうと思った理由
ただお酒が飲みたいだけではダメなんです。
キチンと計画して、継続的に宿が残る事を考えなくては・・・。
そしてみんなが集まってくれるような強いインパクトがなくては・・・。
国内で色々と物件を探しているときに、世界一周中に出会った仲間が僕をこの”燕三条”地域に呼んでくれました。
僕もここに来るまで知らなかったのですが、燕三条地域、めちゃくちゃ凄いんです!!
鎚起銅器、彫金技術、世界中に販路がある包丁やキャンプ用品、人間国宝、国内生産シェア90%以上を占める洋食器・・・。
もう挙げたらキリがないんです!!
そんな街で最近話題になっているオープンファクトリー。
日常的に工場見学が出来る会社が何社もあるんです。
そして新潟県は酒蔵の数が日本一!!
米、酒、日本海の海鮮。背脂ラーメンやカレーラーメン。地元の名物野菜、洋梨の”ル・レクチェ”などなど。
食も観光も、もう本当に凄いんです!!
僕、この街が大好きになっちゃったんです!!
この街を、皆さんに紹介させて頂いて一緒に飲みたい!!
▼これまでの活動
6月末に初めて燕三条地域にやって来ました!
9月末に物件を決定!
(燕駅から徒歩3分のところにある物件を購入しました)
10月頭、工場の祭典(こうばのさいてん)にボランティアで参加させて頂きました!
(2018年で6回目となる工場のお祭り。109の工場、耕場、購場が参加しました)
10月末、信金さんから借り入れをしました!
11月から物件の改修工事を開始しました!
現在、4月23日オープンを目指して絶賛工事中です!!
カケルさんが壁塗りしてるところ!
ぬまっちが設備配管の為にコンクリートをハツってルところ!
一階トイレ解体前!
一階トイレ解体後!
一階店舗部分の天井ペンキ塗り!
黒ペンキが上から降ってきまくって、作業服が水玉模様になりました。泣
正面の外壁を直しました!
雨漏りしてたとこが塞がってやっと中で快適に生活できるように!!
▼資金の使い道
自己資金、信金さんからの借入、助成金を合わせてもまだ工事費・設備費が足りません。クラウドファンディングに挑戦させて頂いて集まった資金はそれらに使用させて頂きます!!
▼リターンについて
・ゲストハウストライアングル宿泊券
一泊、二泊、三泊券があります。
友達やご家族にプレゼントしていただいても大丈夫です!
・開店祝いのお花を贈る権利
オーナーのぬまっちと中米のキューバで出会い、スタッフとして働く事になったフラワーデザイナーのいすずちゃんが開店祝いのお花を名前入りで制作。店頭や店内に開店してから一週間程度飾らせて頂きます。
※写真はいすずちゃんが作った花束のサンプルです。金額によってサイズや使う花の種類、大きさが変わります。一番金額が高いのは、頑張ってすっごく豪華にします!!

・いすずのリース
オーナーのぬまっちと中米のキューバで出会い、スタッフとして働く事になったフラワーデザイナーのいすずちゃんが制作したリースをお届けいたします。
※写真はいすずちゃんが作ったサンプルです。仕入れによって花の種類が変わります。

・いすずのビール購入券
オーナーのぬまっちと中米のキューバで出会い、スタッフとして働く事になったフラワーデザイナーのいすずちゃんが新潟県見附市のビール工房でクラフトビールを作ります。
ゲストハウス併設のバーに来ていただいて、提供させて頂きます。また、直接来店できない場合は友人や知人にビールをご馳走する事も可能です。
※写真はサンプルです。発送はビールの状態が変質してしまう可能性があるので出来ません。ビールの賞味期限があるのでチケットの有効期間はオープンから3ヶ月程度です。
もちろんスタッフにご馳走していただけるのは大歓迎です!!
・カケルが写真撮影してくれる券
オーナーのぬまっちと中米のキューバ、南米のボリビア、フランスのパリで出会った後、約二ヶ月間に渡りアフリカ縦断を一緒にし帰国。スタッフとして働く事になったプロカメラマンの大岡翔(オオオカカケル)による写真撮影です。家族写真やカップル写真、店舗撮影や結婚式の前撮りなどなんでも頼んで下さい!半日と一日があります。

・ゲストハウストライアングルが出来るまでの動画
オーナーのぬまっちと中米のキューバ、南米のボリビア、フランスのパリで出会った後、約二ヶ月間に渡りアフリカ縦断を一緒にし帰国。スタッフとして働く事になったプロカメラマンの大岡翔(オオオカカケル)が撮影、編集した動画のデーターが入ったSDカードと感謝の手紙を送付いたします。
動画データーは開店後しばらく店内で放映予定です。
・カケルのスタンプ
オーナーのぬまっちと中米のキューバ、南米のボリビア、フランスのパリで出会った後、約二ヶ月間に渡りアフリカ縦断を一緒にし帰国。スタッフとして働く事になったプロカメラマンの大岡翔(オオオカカケル)があなたの写真を編集してスタンプ風の画像を作成致します。
ちなみにこれは最近ぬまっちが多用しているスタンプ風写真です。
※写真データーを送っていただいて入れて欲しい文字を教えて頂き、完成後にデーターで送信させていただく形になります。

・ぬまっちの燕三条観光案内の券
オーナーのぬまっちが支援して下さったあなたを、心を込めて燕三条をご案内させて頂きます。工場見学、ローカルの人しか知らない美味しいお店、ディープな酒場に一緒に行きましょう!!友達やご家族にプレゼントして頂いても結構です!半日と1日コースがあります。有効期限は1年です。

・ただただ支援
オーナー、スタッフ共々支援して頂いたあなたの方向に向かって3回本気でお辞儀します!
声に出して『ありがとうございます!!』と言います!!そしてお礼のメールを送らせていただきます!!
本当にありがとうございます!!!!!!!

▼最後に
世界一周から完全帰国した2018年4月23日からちょうど1年。
新たなるステージへの第一歩がこのゲストハウス開業です。
自分の夢、街の期待、仲間や家族の応援。その全てをこのプロジェクトに注ぎ込みます。
このプロジェクトが成功するようにどうか皆さんの力をお貸しください!!
よろしくお願いいたします!!
尚、このプロジェクトはAll-in方式で実施します。目標金額に満たない場合も、計画を実行し、リターンをお届けします。






コメント
もっと見る