
前回は、改装前の物件の様子をご紹介させていただきました。
あの物件がどうなるか本当にワクワクです。
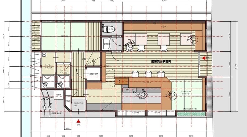
今回は、1階、2階の平面図をご紹介します!どういった形になるのか?少しでもお伝えできればと思います。

1階の平面図です。入口が2箇所あります。右側の入口は交流スペースに入るところ。下にあるは宿泊者用の入口になります。
交流スペースはカウンターもあり、夜はお酒なども楽しめる場所です。外国人だけでなく、近所の方々など気軽に出入りができるスペースにします。
また、宿泊者には左側に見えるシャワーも2箇所設置。奥には受付の場所を設けています。

2階へあがると、左の部屋が和室ドミトリーです。右側は2部屋でそれぞれ女性専用の2段ベッドのドミトリー、ミックスの2段ベッドのドミトリーを設けています。真ん中には長期宿泊者が簡単な料理ができるスペースもあります。
また、4/1、2には佐賀出身のアーティストであるミヤザキケンスケさんにお越しいただき壁画ワークショップを行います。1階の交流のスペースにどーん!と大きな壁画を参加してくれるメンバーと一緒に描いていきます。

(左側の絵の場所にミヤザキケンスケさんと一緒に壁画をつくります。今の左側の絵は変更になります)
テーマは屋号のとおり「葉隠」!佐賀の葉隠を絵に具現化してみんなで造りこんでいきます。
1回目のラフプランはメイン画像の方をご覧下さい。
最初のプランでは、葉隠の言葉の意味である「葉に隠れる」、蔭の奉公を大義とするという意味から絵としては葉で画面を覆いながら、そこにいろんなキャラクターが隠れて見えるというような感じにしているとのこと。
隠れているキャラクターには江戸、明治時代の人たちや、場合によっては海外の人たちをちりばめたり、反射炉や蒸気船などを入れることにもなるかもです。葉っぱを200枚書き、その一枚一枚にご協力いただいた方々の名前を書いてもらうことも模索中。名前も葉っぱに隠すような、慎み深い感じです。
いや~、本当に楽しみです!間違いなくインパクトがあり、1階で存在感を出してくれるはずです。
是非、ご期待下さい!




