今回のプロジェクトで実現したいこと!

Before
After
◆本物件は築50年の空き家でした。元所有者の方が空き家になったこの建物をどうしたらよいのか困っていました。
そこで、まずは自分で空き家再生のモデルを創りたいと思い、本物件を譲って頂きリノベーションすることにしました。
始めはあまりの老朽化に驚き、たくさん悩みましたが、周りの協力者とも意見やアイデアを出し合いながらようやく形にすることが出来ました。
しかし、ただ建物をキレイにしただけでは再生とは言えません。
人に住んでもらって、使ってもらって、初めて空き家再生を実現したということになります。
最初は漠然と、同じ目的を持った人と人とが支えあうような家にしたいと考えていました。
この自分の考えを色んな人に聴いてもらい、アドバイスや意見を頂きながらプランや構想を練っていく過程でひとつのビジョンがみえてきました。
私は独立して間もない人間ですが、周りにもそういった方や、自分も起業したいという方はたくさんいました。
そしてこうした方たちはみんな他にはない考え方や能力を持った人たちですが、始めはどうしても実績が少ない為不安な気持ちを抱えています。
私も今回のプロジェクトを始めるときには不安もありました。
だからこそ色んな人に話を聴いてもらって不安を自信に変えていきました。
このように人に話を聴いてもらえたり、意見交換をしたり、情報交換をしたり、ということが常にできる場所にできたらいいなと考えました。
この場所は住みながら働ける環境であり、スタートアップの方に利用して頂きたいという想いがあります。
仕事や課題を共有し、住んでいる方の業種が違えば固定観念に捕らわれない意見が出ることも期待でき、より良い解決方法をみつけることも出来ると思います。
今後ここで共有された課題や解決に至るまでの軌跡を共有できる物件専用のサイトを作成していきます。この場所で成長し出ていく方がいても、このサイトを通して情報共有と意見交換をすることが出来るようにしていきたいです。また、この場所には既に起業して軌道にのっている方や、相乗効果が見込めそうな業種の方に協力して頂き、セミナーや勉強会、プレゼン大会などのイベントを定期的に行っていきます。みんなで成長し、みんなで様々な課題解決に取り組むような個の集合体を広げていきたいです。
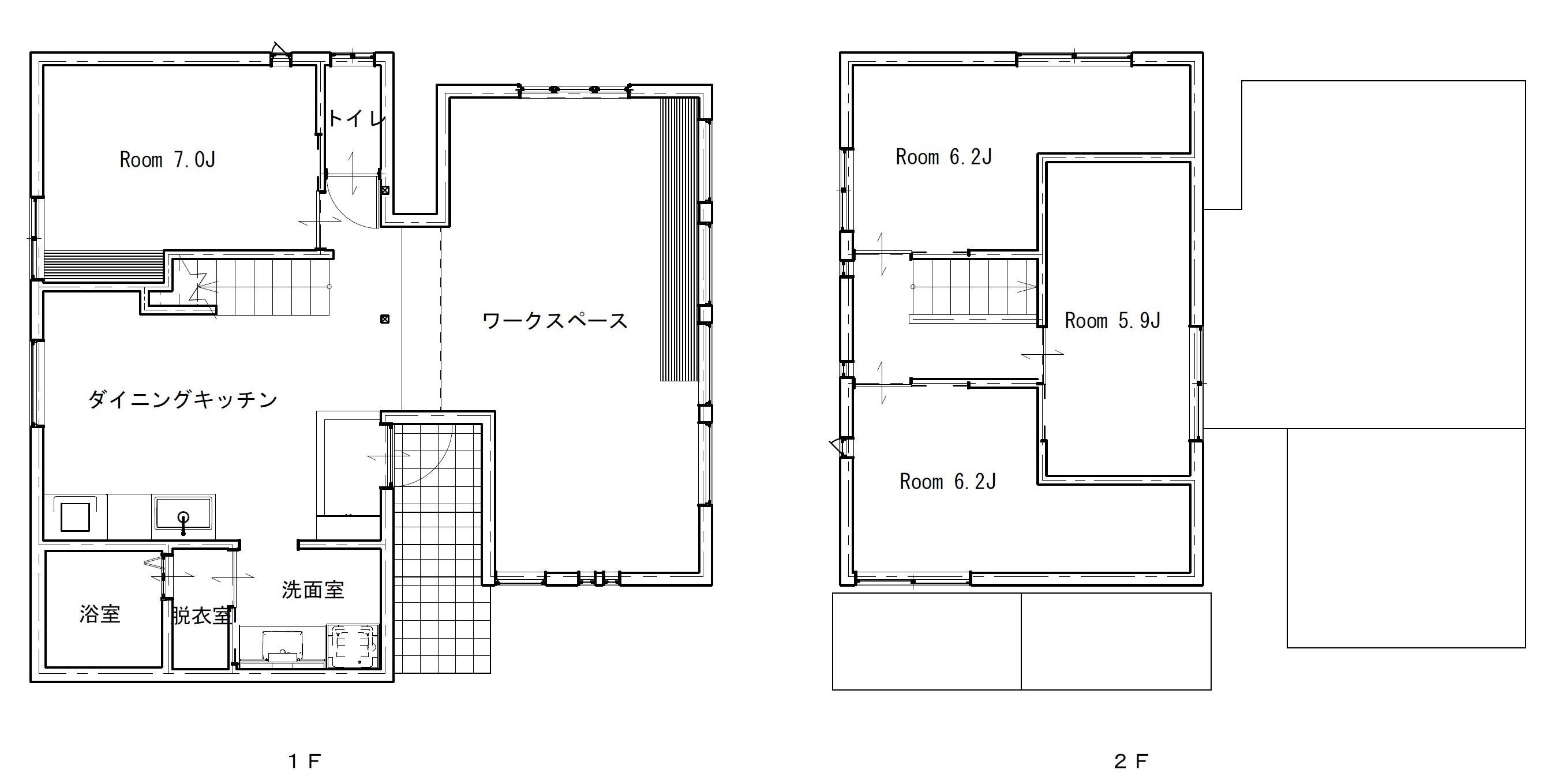
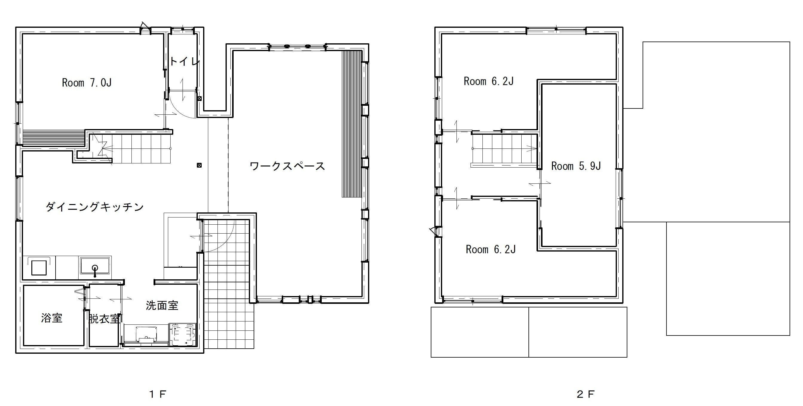
シェアハウスの紹介
◆2020年12月開業予定で準備中!
木造2階建ての住宅をワークスペース付きのシェアハウスにリノベーションしました。
居室は全部で4つで、1階には共用の水廻りとワークスペースを設けています。
共同生活する上でプライバシーを確保する為に各居室には鍵を設けています。
一番意識したのはやはりワークスペースです。この限られた建物の中で如何に気持ち良く仕事ができ、新しい発想が生まれるかは空間のつくり方次第で変わるということはこれまでの経験で学んできました。
設備としては、生活に必要な家具や家電を始め、仕事をする為に必要なインターネット設備、複合プリンター、書庫などを準備していきます。
入居者も募集中です!
郵便番号:3320031 住所:埼玉県川口市青木3-23-21
シェアハウス事業を立ち上げた背景

◆私自身が独立したばかりで、今回のプロジェクトのようなシェアハウスがあれば利用したいと思ったからです。
個人で独立したとしても周りと助け合うことは必ず必要です。私には家族がいるので住むことはできませんが、当然積極的にこの場所で仕事や情報の共有をしたり、様々なイベントを開催していきます。
空き家を同じように個人住宅として再生することは簡単でしたが、それだけではなく、この建物と社会が繋がるような仕組みをつくりたいと考えていました。
再生した建物を通してまた新たな社会的課題を解決していくことを理想としています。また、今回のプロジェクトが事業として成立することで、全国の空き家問題の解決案として示すことができると考えました。
今後もこの事業モデルで空き家再生を行いながら全国に展開していき、最強の個の集合体をつくっていく構想です。
◆初めまして!内野巧也ともうします!

◆長崎県長崎市で生まれ育ち、幼いころから色々なモノをつくることが大好きでした。
実家は伯父が設計した家で、小学生の頃は絵本をみるより、実家の設計図をみることの方が好きな少年でした。
そんな私の小学校卒業の時点には既に将来の夢が設計家でした。気づいた時には大学では建築の勉強をしようと考えていました。
一切他の業界には興味を持たず、自分の中で勝手に使命感みたいなものが芽生えていたんだと思います。高校の頃には、友人と他県受験をするもの同士で「大人になったらいつか長崎で一緒に町おこしをしたい」などという夢も語っていました。
この頃から建築という手段で社会に影響を与えるようなことをしたいと考えていました。また、それが必ず出来ると信じているので、自分が人や町の為に何を出来るのかを常に考えながら日々精進しています。
今後の課題解決に向けての思い!
◆令和2年4月から個人として独立した後、令和2年11月6日に法人として起業しました。業務内容としては、不動産コンサルティング業や不動産管理に係る業務などを行っています。
これまでの経歴としては、大学(建築学科)を卒業後して始めは設計事務所で設計補助として様々な雑務を行ってきました。
ここでは建築に対する向き合いかたを再認識するキッカケをもらえました。次に建設会社に転職し、現場監督として個人住宅や別荘、店舗、病院、集合住宅、商業ビルなど様々な現場を経験しました。元々ものづくりが好きなので、日々の現場の中で貪欲に技術を吸収してきました。
その後は土地活用を提案する会社に転職し、営業としてお客様とゼロから創造することを経験しました。ここでは昔から思い描いていた建築で人の為になることを創ることができたと実感できました。
自分の目指すところとリンクしていたこともあり仕事としては常に売上で好成績を残し、最終的には売上でトップ成績を達成しました。
その後独立してからは、これまで設計、建設、不動産の管理や運用に携わってきた経験や知識を生かしてコンサルティングを行っており、お客様にとって一番身近なアドバイザーとなれるように努めています。
さらには、この業界の社会的課題として挙げられる空き家問題に重点をおいて取り組んでいます。
これらも建築を通して社会を良い方向に変えていけるような働きを行っていきます。
資金の使い道
シェアハウス開設宣伝費用
ホームページ作成費用
CAMPFIRE手数料
最後に
今回の取り組みを成功させることにより、支援して頂く方にだけでなく、本物件に住む方やここに関わる方、周辺社会に対して良い効果をもたらしていけるように活動していきます。
そして今後も継続して空き家再生を行いながら、個の集合を広げていき、より多くの課題解決に取り組んでいく仕組みをつくっていきます。今回の取り組みに賛同して頂ける方がいらっしゃいましたら、是非ともお力添えを宜しくお願い申し上げます。
問い合わせ先
アーキリンクス株式会社
郵便番号:3320031
住所:埼玉県川口市青木3-23-21
メール:archilinx.uchino@gmail.com
https://archilinx.jp/
最新の活動報告
もっと見る【支援者の皆さまへ】
2021/02/25 16:27こちらの活動報告は支援者限定の公開です。
【残り1日】最後まで有難うございます!
2021/02/24 22:29こんにちは! 埼玉で再生事業を中心に活動している内野です! 本プロジェクトも残り1日となりました。ご支援頂きました皆様のおかげで、319,000円も集まりました!本当に有難うございます!このご支援を無駄にしないように、空き家再生型シェアハウス「U-STYLE」を中心に引き続き再生事業の普及に取り組んでいきます!周りをみますと多くの方が空き家だけではなく、店舗や事務所、ホテル、工場、遊休地など様々な悩みを抱えています。プロジェクト公開中にも様々なご相談を頂きました。U-STYLEでは、相談者や企画参加者と一緒になって、楽しみながらより良い解決策をみつけていきます!ただ再生するだけではなく、地域社会にも良い効果が生まれるような仕組みづくりに挑戦していきます!この活動に共感してくださる方、興味を持ってくれた方は、今後も気軽にお声掛けください!そして、本プロジェクトも最後まで応援して頂けますと嬉しいです!https://camp-fire.jp/projects/view/350721◆割引クーポンが配布されました!これからご支援を検討されている方は是非ご利用ください。CAMPFIREから先着500名限定で、500円割引クーポンがプレゼントされます。▼詳細はこちらをご確認ください。https://help.camp-fire.jp/hc/ja/articles/900004588666 もっと見る【あと2日です!】出会いに感謝です!
2021/02/23 19:28こんにちは! 埼玉で再生事業を中心に活動している内野です! 先日は、川口市内でレンタルスペースを運営している方と対談させて頂きました!本業ではスポーツコミュニティに取り組みながら、地域を盛り上げるために様々な活動をされていました。私の取り組む再生事業は、地域社会との繋がりをもたせるということを意識しているので、非常に参考になりました。今後の活動の中で一緒に企画を行っていけたら楽しいことが出来そうです!今回初めて「クラウドファンディングに挑戦して分かったこと」私が再生事業に取り組むとき常に意識していることは、以下の二点です。【建築や不動産の問題解決にアイデアを】【建築で人と社会を繋ぐ仕組みづくりを】そして、業種分野は違いはあっても同じような想いで活動されている方は沢山います。利己的に、ただ利益の為に動くのではなく、人や社会の為に考えて動いている方と話をするのはとても楽しいです。クラウドファンディングを通して、私が取り組んでいる活動のことや想いを発信してみると、応援してくれる方や一緒に活動してくれる方が沢山増えました。私が思うクラウドファンディングの魅力は、資金集めの為というよりも、仲間集めができることが一番の収穫だと感じました!これから周りにも同じ想いを持った方がクラウドファンディングに挑戦するときには、全力で応援したいと思います!私のクラウドファンディングはあと2日で終わりますが、プロジェクト自体はずっと続けていきます。これから先も一緒になって活動に参加してくれる方が増えてくれたら嬉しいです。長くなりましたが、最後まで応援して頂けますようお願い致します!https://camp-fire.jp/projects/view/350721 もっと見る




コメント
もっと見る