サクセス&NEXTゴール
2021年1月20日朝。1stゴールとして設定した50万円を達成いたしました!
たくさんの方々のご支援、ご協力のおかげです。本当にありがとうございます。
「1stゴールを達成したらNEXTゴールを」と本文中で明言していましたが、やります。
NEXTゴール「80万円」を目指します!
(イス・テーブル、ロッカー等の什器費用の他、当初の想定より改修費用等がかかっているので、そちらに充てさせていただく予定です)
みなさんの情報拡散が力になります。
ぜひ引き続き一緒に面白がってください。
応援よろしくお願い致します。
はじめに・ご挨拶
本プロジェクトを閲覧していただき、ありがとうございます。
はじめまして! カゼトツチの古河大輔(ふるかわだいすけ)と申します。
プロジェクト立ち上げ人(古河大輔)
「地域の人たちの多彩な暮らし」を支えていきたい。
私たちは、そのような想いで活動してきました。
一般社団法人カゼトツチ(栃木県小山市)
今回は、JR小山駅西口から徒歩3分の空き店舗をリノベーションし、学生も社会人も利用できるコワーキングスペース「SEKEN」をつくります。 人が集い、これからの暮らしや仕事、人と人の関係を紡いでいくためのプロジェクトです。応援よろしくお願いします。
「SEKEN 」とは、どんな場所?
高校生や大学生が勉強できる場所。フリーランス、自営業、サラリーマンの方々がふらっと寄って仕事できる場所。地域で活動する人たちが集まり、作戦会議をする場所。そして、イベントスペースとして活用できる場所です。
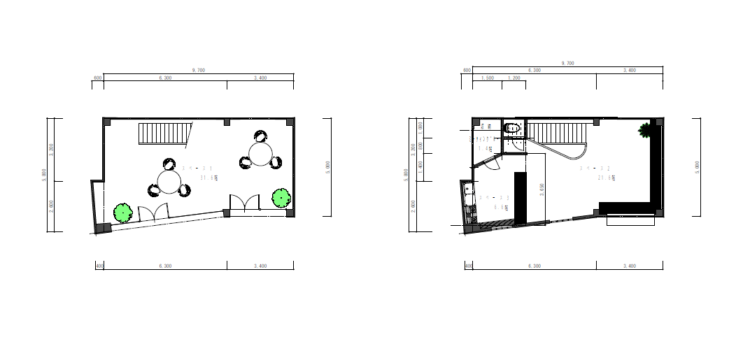
ー1Fはコワーキングスペース
異なる職業や仕事を持った人たちが集まり、作業する場所です。
1Fリノベーション前の様子
大人だけでなく、学生も利用できるような場所を目指しています。「学生」と「大人」と「まち」をつなぐ活動も視野に入れて、コンテンツを制作していく予定です。私たちだけでなく、この場所に訪れた人と一緒に企画することや、訪れた人同士で面白いことを企画・実施する場所としての活用も大歓迎です。
<例えば…こんなコンテンツ>
・小山をもっと楽しむ「おやままちあるきMAP」
・地域の情報を発信する「地域マガジン」
・軒下チェアリング などなど。
1Fリノベーション中の様子
ー2Fはシェアオフィス
お仕事をする方々が使用する場所です。 2Fリノベーション前の様子ミーティングルームは、オンラインや少人数で打ち合わせをするスペースとして。
キッチンカウンターは、コーヒーを飲みながら雑談できるスペースとして。
ぜひ、ご活用ください!
2Fリノベーション中の様子
※コワーキングスペース・シェアオフィスの利用料金については、現在検討中です。
コワーキングスペース利用は時間利用、1日利用、月利用などの料金制度を考えています。
ー名前の由来について
「世間」とは、およそ自分の知っている人や関係のある人たちで構成される空間の認識です。
私たちがつくろうとするコワーキングスペース「SEKEN」という空間―それは多くの人が集い、それぞれの「世間」が交差する場所です。この場所を訪れた人たちの「世間」がふれあって、新しい「世間」が生まれるように。さらには、「世間」をこえてより広い「社会」につながっていくように。
そんな願いを込めて、コワーキングスペース「SEKEN」という名前にしました 。
リノベーションする建物SEKEN内装イメージ図(左:1F 右:2F)
昭和51年竣工。40年以上もの間、小山市の移り変わりを見守り続けてきた建物
JR小山駅西口から徒歩3分、小山駅前の「みつわ通り」にリノベーションする建物があります。ここは、以前までブティック 「SANKO」として営業されており、1階は「婦人服・紳士服」、2階は「呉服」を販売し、常連のお客さんも多かったそうです。2017年3月末に、前オーナーがお店を閉じて以降、空き店舗となっていました。
栃木県小山市「みつわ通り」のご紹介
栃木県小山市の人口は約16.8万人、宇都宮市に次ぐ栃木県第2の都市として知られています。JR小山駅は在来線、東北新幹線が通る交通の要所であり、都内へのアクセスも良好です。
東京都心部まで東北新幹線で約40分、在来線で約1時間20分
JR小山駅西口を出て、北側に進むと「みつわ通り」が見えてきます。通りを歩くと、駅に向かって足早に歩くサラリーマン、自転車に乗る高校生、おじいちゃん、おばあちゃんの井戸端会議を見かけることがありますが、人通りは多くありません。
通り沿いは、居酒屋、下駄屋、服屋など、昔ながらのお店が並んでいますが、寂しいことに何年もシャッターが閉まっている店舗も散見されます。
うっすらと文字が見える「はとや」では、落花生を販売していた。
他にも眼鏡屋さん、お花屋さんがこの通りで商売をしていたという。
この通りで商売をしてきた方々の話を聞くと、かつては「みつわ通り商店街」として活気づき、商業で戦後の復興を支えてきたそうです。時代の流れとともに訪れる人が減り、跡を継ぐ人もいないため、次第にお店は閉店して現在の姿となりました。
私たちが描くみつわ通りの未来
「みつわ通りって何もないの? 」と思ったかもしれませんが、そうではありません。
対象となる建物の近くには、おしゃれなBarがありますし、夜になると隣のスナックからは歌声が聞こえてきます。さらに北へ進んだところにある創業100年を超える酒屋さんでは、美味しい日本酒を勧めてくれます。その隣には昔ながらのお肉屋さんがあり、コロッケを買い食いできたりして…。
通り一本を見ても様々な楽しみ方が見えてきます。隠れた魅力がまだまだ眠っていそうです。
子どもたち、学生、大人が交差する未来
この場所が、出会う場として、働く場として、それぞれのやりたいことを実現する場として、各々のポテンシャルを活かせる場として、日常に溶け込んでいけたら…。小山という地域が様々な人たちに活用され、人と人との良質なコミュニケーションが生まれていく。その結果、地域との関わりや暮らしに変化が生まれ、「地域での困りごとの解決」や「暮らしの豊かさ」につながっていく未来を思い描いています。
資金の使い道・スケジュール
★資金の使い道
・改修費(天井、床など補修)
・設備備品費(洋式トイレ、キッチン、照明など)
・リターン原資
・クラウドファンディング手数料

また、50万円が達成しましたらストレッチゴールとして80万円を目指します。
追加の30万円分では、テーブル、イス、ロッカーなどの備品費用に充てさせて頂きます。
★スケジュール
2020年11月~ 解体作業、不用品の撤去(現在実施中!)
2021年 1月~ 天井改修、天井や壁の塗装、洋式トイレの設置など
2021年 2月~ 備品(テーブル、イスなど)の設置、2Fプレオープン
2021年 3月~ 広報準備
2021年 4月~ SEKENオープン
スペース確保のために壁を解体・撤去(2F)
古くなり使えなくなったキッチンを解体(2F)
ところどころ破れている床シートを剥がす(2F)
和式トイレを洋式トイレへ交換するための解体作業(2F)
キッチン周りの床に打ち込まれた釘を切断(2F)
電気関係の作業(2F)
スペース確保のために棚を解体(1F)
汚れた壁紙を剥がす作業(1F)
プロジェクトメンバー紹介
左から安田さん、しょうさん、古河、藤本
ープロジェクトの立ち上げ人 古河 大輔(カゼトツチ代表理事)
小山市出身。南米ボリビアで青年海外協力隊として活動後、栃木県の若者と地域をつなぐNPOで、地域コーディネーターとして活動。並行して、地元小山市でカゼトツチを設立。仲間たちと地域に必要なことや地域を楽しむことをあれこれ企て展開中。
ープロジェクトメンバー 藤本 尚彦(カゼトツチ・ライター)
茨城県から小山市に移住。居場所を増やすこと、個人や団体の想いを地域の方々に届けることをテーマに活動中。うろつき、お話を聞き、文章で伝えるライター。「地域の課題に取り組む方々の想いを届けて、協力者を増やしたい!」
ープロジェクトメンバー 安田 憲明さん(やすだけんちくじむしょ 代表)
1975年埼玉県生まれ、茨城県育ち。2年前から自邸を作って小山市在住 東京日建工科卒。建設会社、設計事務所勤務を経て2013年独立。現在、個人建築設計事務所と株式会社法人の運営、ビジネス系YouTubr(建築家釣りTuberやっさんチャンネル)の三足の草鞋。
ープロジェクトメンバー しょうさん(ブロガー)
2018年の春に北海道札幌市から小山市に引っ越し。3児の母。東京や札幌でシステムエンジニアとして会社勤めの後、結婚・出産を機に始めたブログが人気を集めプロブロガーとして独立。計1,100万回以上読まれている「しょうラヂオ。」や小山市の地域情報を発信する「おやナビ!おやま」などのサイトを運営。旅やキャンプ、あちこちに出かけることがとにかく好き。年間のキャンプ泊数は20泊以上、子連れで日本縦断のような旅をよくしています。
リノベーションには学生をはじめとした様々な方々が関わっている
最後に
「SEKEN」はあくまで場所の一つであり、未完の空間です。
訪れる人、一緒に活動してくれる人の存在があって、はじめて意味を持ちます。
これから先、たくさんの人たちとの出会いから様々な形に変化していくことでしょう。
「SEKEN」が「小山にあってよかった」というプロジェクトになるためには、変化のプロセスを一緒になって面白がってくれる人や、応援してくれる人の存在が不可欠です。上手く機能するように、精一杯の気持ちを込めて運営しますので、みなさんの力を貸していただけると嬉しいです。
「今日はどんなことをしようかな」
「あの人たちいるかな。また会いたいな」
「ここであの人たちと、面白いことやりたいな。」
そんな妄想が広がる、時間と空間と仲間を提供できる場所を目指していきます。
※プロジェクト共同起案者 SUNフーズ株式会社 栗原宏
SUNフーズ株式会社:http://sunfoods808.com
酒類販売免許番号「栃法1第410号」
※本プロジェクトはAll-in方式で実施します。目標金額に満たない場合も、計画を実行し、リターンをお届けします。
最新の活動報告
もっと見る
5月19日にプレオープンしました!
2021/05/19 18:26いよいよ始まります!こんにちは!カゼトツチの藤本です。コワーキングスペースSEKENがプレオープンしました!ここまで進んでこれたのは、皆さまからのご支援やご協力、応援があってこそだと思います。本当にありがとうございます。4月末、5月前半に実施した内覧会では約50人がSEKENに訪れ、中には「利用したい!」というお言葉もいただいております。SEKENという空間に需要があることを実感すると共に、嬉しくもあり、ワクワクした気持ちにもなっています!(ご利用を考えている方々には、少しずつお声をかけさせていただきます。よろしくお願いします。)今後はSEKEN専用のSNSで情報発信しますので、ぜひチェックをお願いします!インスタ :https://www.instagram.com/seken.oyamaツイッター:https://twitter.com/SEKEN_oyamaフェイスブック:https://www.facebook.com/seken.oyamaプレオープン期間中は、スタッフがSEKENに滞在しております。内覧会に参加できなかった方や、様子を見に来たい方は、いつでもお越しください。<SEKEN基本情報>所在地:〒323-0025 栃木県小山市城山町3丁目6−25定休日:日曜日・月曜日営業時間:10:00〜17 : 00駐車場:なし詳細はこちらをご覧ください。https://kazetotsuchi.org/seken/リターンについてご支援いただきありがとうございました!リターンを準備して、順番に発送しております。「小山の美味しい魅力クラフトビールセット」「おやまの美味しい魅力セット」を選んだ皆さま。6月上旬にお届けを予定しております。今しばらくお待ちください。おとん満喫セット利用券とお手紙 もっと見る【リターンおよびこれからの予定について】コワーキングスペース「SEKEN」
2021/04/18 20:15こちらの活動報告は支援者限定の公開です。
リノベーション作業報告3(塗り進めて内観も外観にも変化が…)
2021/03/22 21:46こんにちは!カゼトツチの藤本です。コワーキングスペースSEKENは4月中のオープンに向け、地道にリノベを進めています。これまで20回以上のリノベを実施し、延べ150人以上の方々が協力してくれました!ご協力していただいている皆さま、本当にありがとうございます。さて、現在のSEKENの進捗についてですが…1Fのリノベはほぼ終了し(残りは床の張り替え)、2Fの作業を始めましたよ!塗装をしたので中も外も見た目が変わってきています。最初の様子を知る人は「おぉ!」と思うかもしてません!ということで、今回はSEKENの見た目が変わっていく様子をご覧ください。1F 建物内の壁・天井を塗る!はじめに、壁と天井を白く塗った時の様子をお届けします!ベニヤ板はコンセントやスイッチ用の穴を空けたり、階段の段差に合わせる必要がある。サイズを測り、ベニヤ板を加工する。サイズの微調整のためにやすることも。ローラーにペンキを付けて壁に押し当てるように塗る。意外と力と根気が必要。色むらを無くすために何度も塗って、ようやくここまでの白さに!黒板塗料を使用した壁も。アイディアを整理・メモするときに利用してね!さらに、壁塗りと並行して天井も白色に塗りました!壁塗りよりも腕への負担がかかる天井塗り。蛍光灯やエアコン周りはハケを使って地道に塗り進めていく。天井から水が…!水道工事中に水の元栓を空けてしまうトラブルも。天井から水が落ちてきたり、天井のマスキングテープを剥がしたら塗り残しがあったり。思うようにいかないこともありました(笑)「プロでじゃないから仕方ない!」と思っていても、へこんだりします。手間をかけた分、SEKENへの愛着も増したと前向きに考えて進めていますよー!さて、全体的に白く塗ったので明るい印象に変わりました。SEKENに来た際は、ぜひ見渡してみてくださーい!外壁を黒く塗る続いて、外壁を黒く塗った時の様子をお届けします!白ペンキは何度も塗ったが、黒ペンキは一度塗るだけで色が入る。レンガの溝になかなか色が入らないので丁寧に塗っていく。1Fの上部も三脚を立てて黒く塗っていく。外からの見た目が落ち着いた印象になりました。外もすっかり見た目が変わりましたね~。夕暮れ時のSEKENも良い感じです!明りを付けた時のショーウィンドウ越しの店内がカッコイイ…。完成したらぜひ、コワーキングスペース内と外の両方から見える景色をお楽しみください。SEKENを小さく使い始めた報告。そしてこれから…。1Fのリノベはほぼ終わり、残すは床のみとなりました。「せっかくなら使おうよ!」ということで、「おやま移住・交流ルーム」を開設することに。小山への移住を検討している方々がこの場所に立ち寄って「おやまってどんな暮らしができんの?」という相談をする場所になります。詳しくはコチラ。SEKEN内に開設した「おやま移住・交流ルーム」の様子。こうしてSEKENの一角を利用できることをすごく嬉しく思います。「リノベのために来ていた場所で新しいことを始めてるよ!」というワクワクもあったりして、何かこみ上げてくるものもあったり。これも、ご支援してくださった方々。リノベに手伝いに来てくれる方々。地域で応援してくださる方々など。ほんとに支え合ってこそだと思います。4月中へのオープンに向けて2Fについてもリノベを進めています。こちらの様子も後日、お届けしたいと思います。また、リターンについても準備をいたしますのでもう少しお待ちください。完成までもうひと山(ふた山?)くらいありますが、SEKENで人と人が出会い、新たな動きや出来事が生まれて、日常が豊かになっていくような、そんな場所にしますので、引き続き応援いただけると幸いです。それでは!また!/カゼトツチ 藤本 もっと見る






コメント
もっと見る