はじめまして。このページを見ていただきまして、ありがとうございます!
O'tento planning ㈱の小嶋昌恵です。
周りのみんなやお客様には「こじまま」と呼ばれています。
シングルマザーの派遣プログラマーとしてフルタイムで働いたのち、2005年に再婚。
2011年には長年の夢だったカフェを埼玉県坂戸市に開業しました。
厨房やトイレ以外、ほぼDIYで作ったCOUCOU
開業して5年ほどは集客や経営がうまくできず、貯金も底をつきて地獄をみました。
相談できるところは全て頼り、たくさんの方のアドバイスやご協力を受けながら必死にチャレンジを続け、徐々に売上を伸ばしてきました。
そして10周年を迎えた2021年には、地域の方々との温かい繋がりがあふれるお店になっていたのです。
※動画はレコールバンタン・キャリアカレッジより掲載の許可をいただいております

カフェはひとの交差点です。
ただ食べるだけの場所ではなく、お客様、生産者、お店のスタッフ、その全てが輝くことで、お店が回っていくのだとわかるまで、かなり痛い想いを重ねました。
その間、相談できない孤独が何よりつらかったです。
お店が少し落ち着いてからは、わたしが山ほど経験した失敗と成功を次のチャレンジャーに伝えたいと思うようになり、ちいさな商いを地域にちりばめることを夢見るようになりました。
地域が楽しくなることは、世のためや他人のためだけではなく、わたしの老後が楽しくなることにもつながります。
開業を目指すひとがちいさくチャレンジでき、なおかつこの地域での開業経験者の悩みに寄り添えるシェアキッチンを開業したいと、自然に思うようになりました。
※COUCOU開業から、現在の目標までを語っています
ふと見上げれば、自分にも光が降り注いでいることに気づく。
そんな意味をもたせた当社 O'tento planning(おてんとぷらんにんぐ) の、SUNNY food woks 開業企画が動き出しました。

デイサービスまちいろとデイサービスmoi(モイ)を経営する山口さんは、まだ30代の若社長。
実はmoiの利用者さんたちが召し上がるお昼ごはんは、わたしが献立を担当しています。
調理スタッフと利用者さんが一緒にお昼ごはんを作る、斬新なアイディアは各方面から注目の的。
常にチャレンジの手を止めない、元気なお兄さんです(笑)
COUCOU10周年にも駆けつけてくれました
「チャレンジの手を止めない」という共通の趣味嗜好でつながり、年齢差は約20歳ですが、色んな意味で同志の存在。
お互いの挑戦を、いつも応援し合う関係でした。
山口さんに提案されてはじめた坂戸市の市民提案型協働事業のあさめしプロジェクトは、若い世代の朝食欠食の改善を目指しています。
わたしはその中で、Instagramなどの広報や子ども食堂での調理を担当し、じぶんの得意分野で楽しく関わっています。
そしてフードバンクや子ども食堂に関心も強かった山口さんは、常にどこかを間借りして開催するタイプの子ども食堂ではなく、常設型の子ども食堂も視野に入れ始めます。
場所が決まっていることで、子どもたちの居場所として定着することができるのです。
チャレンジが共通点だった山口さんとわたしの間に、食という共通点もできました。

シェアキッチンの場所として選んだテナントは東武東上線北坂戸駅から徒歩5分ほどにあるのですが、昼間は閑散とした住宅街です。
駅が近いのにさびれているため、近隣駅に比べて家賃が格段に安い物件でした。
写真の1階部分がテナントですが、8部屋のうち5室が空き、しかも築30年以上経過するのに1度も入居者が入ったことがないということから、この地域のさびれっぷりがおわかりになると思います。
通常営業のカフェなら開業を諦めるような場所ですが、隣に大きな公園(写真右側)もあり、周辺に住宅が多い地区です。
地域活性に関わるシェアキッチンという業態なら、相性が良いと考えました。
また、こちらの不動産屋さんの社長は地域活性に関心が強く、シェアキッチンにも期待をしてくれたので、何度も相談にお伺いしていました。
ある日、社長が「空きテナントを子ども食堂にも使ってもらえたらいいなぁ」とポロリ…!
すぐさま山口さんに連絡し、ふたりで大喜び!!
こうしてシェアキッチン+子ども食堂のプロジェクトが始まったのです。
シェアキッチンとは、ひとつの厨房設備を、複数の人でシェアしながら料理を提供できる施設です。
いわば厨房の場所貸し業です。
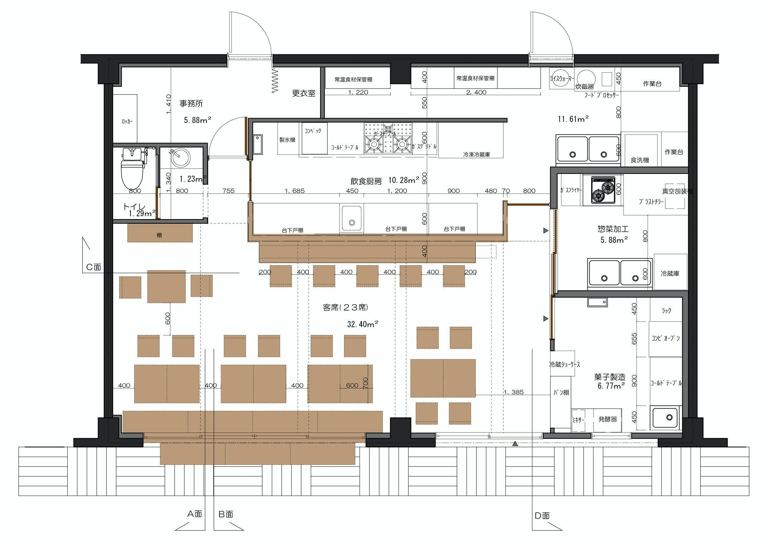
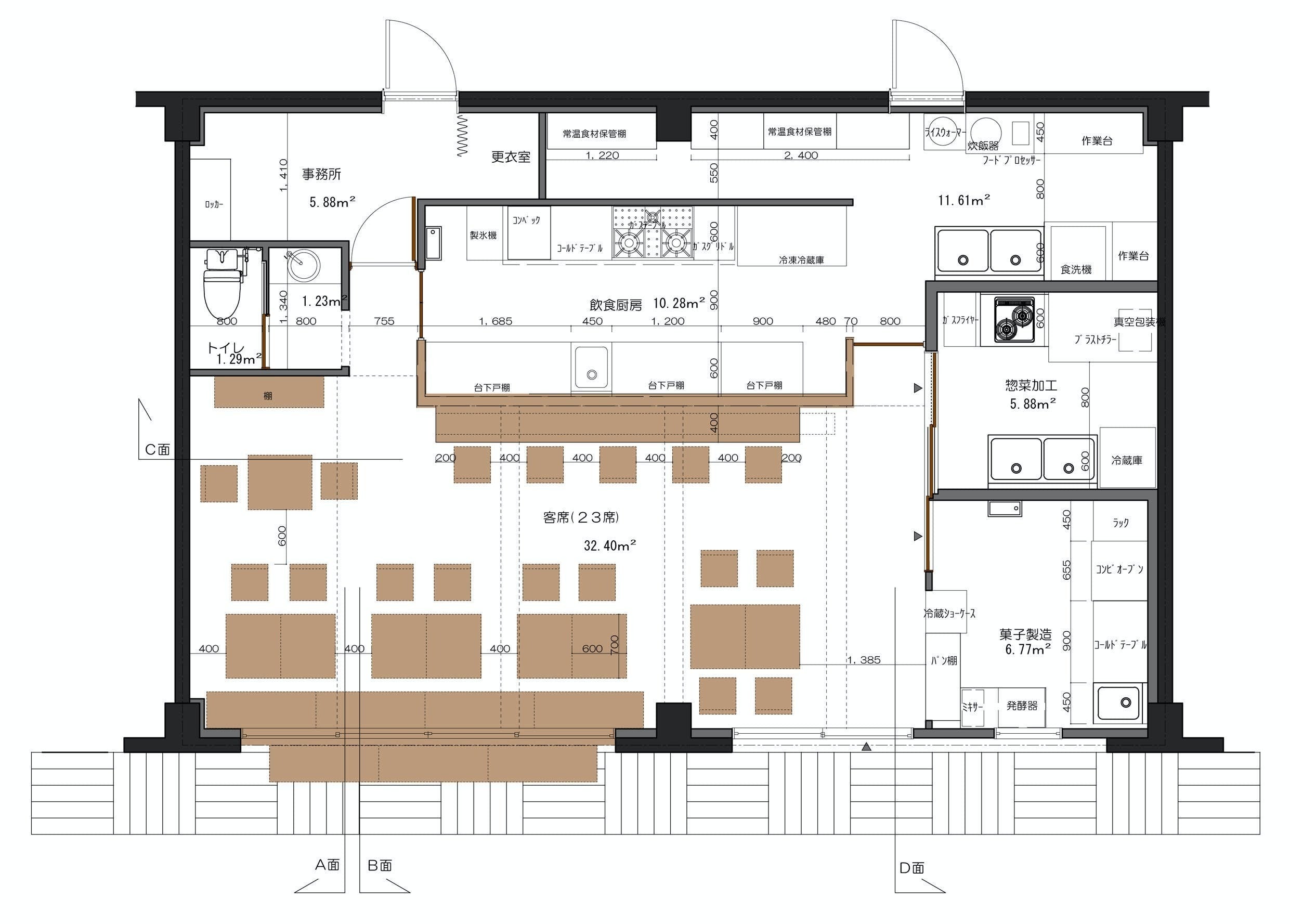
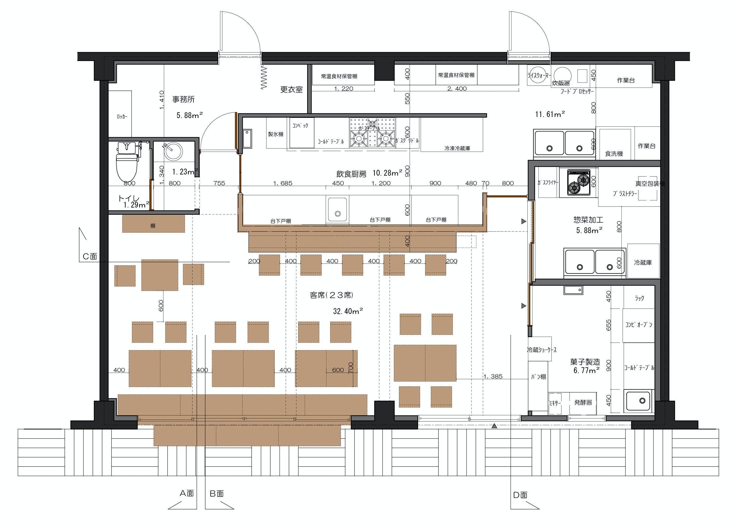
今回、開業準備を進めているSUNNY food worksでは、飲食店営業と菓子製造業、惣菜加工業の3つの許可を得ることになっています。
異業種が同時に営業することで、開業を目指す仲間づくりができ、開業後も心強い関係になったり、コラボ事業にも発展する可能性ができます。

今は様々な目的のシェアキッチンがありますが、SUNNYは小規模店舗の開業支援に力をいれます。
厨房設備は「素敵でキラキラしてる新品」ではなく「これだけあれば開業できる」最小限のスペックにこだわり、利用者が開業する際の参考になることを意識して揃えていきます。
また、SUNNYの最大の特徴は、地元でカフェを10年経営してきた(しかも決して順風満帆ではなかった!)わたしが経営することです。
地元で少し先に開業を経験したわたしが、実際に頼ってきた窓口や人脈や勉強アイテムなども必要に応じて伝えることで、ふわっとした夢が具体的なイメージに進化していきます。
ここは一時的な体験で終わらない、一歩踏み込んだチャレンジができる場所なのです。
利用者が目指すお店の形は様々であるため、夏頃から座談会を開催し、飲食店営業や菓子製造業それぞれ意見を伺ってきました。
シェアキッチンの内装工事費節約のため、DIYも取り入れます。
その際は希望者を集め、ワークショップとして参加していただくことを考えています。
開業前に開業を体験できる機会はめったにない!
ぜひ活用していただきたいです。
※開業までの道のりはInstagramで既に配信中
SUNNY food works (Instagram)
また、この場所はcafe COUCOUのセントラルキッチンとしても活用します。
COUCOUの焼き菓子製造や、新商品のテストキッチンとしてお店を出すことで、収益の底上げをして運営の基盤を固め、経営の安定化を図ります。

子ども食堂とは、地域住民や自治体が主体となり、無料または低価格帯で子どもたちに食事を提供するコミュニティの場を指しています。
また、単に「子どもたちの食事提供の場」としてだけではなく、帰りが遅い会社員、家事をする時間のない家族などが集まって食事をとることも可能です。
このように、「人が多く集まる場所」ができたことで、地域住民のコミュニケーションの場としても機能しているのです。
(出典:農林水産省公式サイト「子供食堂と連携した地域における食育の推進」)
------------------
実際、ボランティアベースで開催している子ども食堂は、開催のたびに場所を借りる費用も大きな痛手となってしまいます。
坂戸市内も常設型の子ども食堂はまだありません。
北坂戸エリアは坂戸市内でも高齢者や子供の人数が多い地域で、集合団地や大きな公園があるのが特徴です。
この北坂戸にテナントを賃貸することで、子どもたちが、いつでも立ち寄れる場所、多世代が交流できる居場所をつくり、にぎやかな地域を目指します。
デイサービスなど高齢者事業を展開している山口さんが子ども食堂を担当することで、地域の高齢者に子どものお世話や食堂の調理に関わっていただいたり、活躍の機会を与える仕組みづくりが可能です。
「誰か」のための役に立つ活動が高齢者の生きがいを取り戻し、キラキラ輝く高齢者が増えていく地域をつくることは、いずれ高齢者になるすべての人にとっても希望になります。
デイサービスmoiでは、子どもスタッフも活躍中!
この子ども食堂では、日中、飲食店として店舗運営を行い、夕方以降に子供の居場所づくりとして、子ども食堂の開催を予定しています。

人が集まる場所は、地域の人たちの顔が見える関係ができ、子どもから高齢者までの地域での見守り、支援体制、相談窓口としての機能も持ちます。
高齢者の孤独死、老々介護による介護殺人、ひとり親世帯の子育て相談、食の支援、子どもたちの悩み相談や居場所を作ることによっていじめや引きこもり防止、引きこもり支援と多岐にわたる地域内の支えあいの仕組みづくりにもつながっていきます。
北坂戸駅周辺は、駅が近い物件でも家賃が安い地域です。
ひとが集まり、賑わう場所を作ることができれば、開業したいひとが増え、昼も夜も歩きやすい明るい街になります。
また、この地域は生活に困窮する世帯、高齢者も多い地域でもあります。
だからこそ地域内で支える仕組み、つながりづくり、集いの場の整備が急務と考えます。

シェアキッチンが子ども食堂やフリースペースと隣接することで、地域の憩いの場として認識されやすくなります。
子ども食堂に地域の人々が集うことで、シェアキッチンでがんばるひとたちの存在を知り、みんなで開業の夢を応援する流れを作り出す仕組みです。
完成イメージ図
逆もあります。
シェアキッチンでカフェなどを利用した方が、子ども食堂やコミュニティスペースを知り、それを周りに知らせることで、新しい交流が生まれます。
物件の契約が決まってからは、北坂戸商店会の会合でご挨拶させていただきました。
シェアキッチンと子ども食堂は、商店会の一員としても地域に関わっていくことが決まっています。
役員の皆様はこの活動を大変快く受け入れてくださり、今後、この場所が地域をもりたてるための力になってくれます。
今回は300万という大きな金額へのチャレンジになります。
資金の使いみち内訳は下記のとおりです。
【シェアキッチンSUNNY food works】
内装など工事費の1千万ほどは、融資や自己資金でまかないます。(がんばりますっ!)
今回、ご協力いただきたいのは業務用厨房設備の部分です。
スチームコンベクションオーブン 100万円
食器洗浄機 30万円
製氷機 10万円
コールドテーブル 6万円(中古)
手数料 34万円+20万円(17%+税)
合計 200万円
以上はわたしがカフェを経営してきた中で、業務用で揃えるべきと考えている機材です。
シェアキッチンは小規模の開業を目指す方に利用していただくので「初期投資をかけず、家庭用の機器も活用しながら」揃えることを意識しています。
ですが、作業の効率化(=経営者の健康)や品質の安定のため、必須の業務用機器もあります。
今回はその資金のご協力をお願いいたします。
【子ども食堂】
テナントは居ぬき物件であったので大きな造作は不要ですが、子ども食堂として食事提供をするための調理環境、什器の購入に資金を充てたいと考えています。
業務用冷蔵庫 30万円
小型冷蔵ショーケース 20万円
コールドテーブル 6万円(中古)
業務用ガス台 5万円
DIY材料費 12万
手数料 17万円+10万円(17%+税)
合計 100万円
最大100食程度の食事提供ができる環境、設備を整備することで、ひとりでも多くの方への支援ができるように、ご協力をお願いいたします。
現在、開業までのスケジュールは下記を予定しています。
※物資供給などの都合により、日程の変更をしました(1月9日)
2021年
12月10日 SUNNY主催 開業講座(前編)
12月17日 SUNNY主催 開業講座(後編)
12月 シェアキッチンの内装工事終了
2022年
1月初旬〜DIY作業開始
1月中旬よりSUNNYのDIYワークショップ
1月下旬 厨房機器搬入、保健所による確認
1月末ごろ
子ども食堂内装工事完了
リターン発送開始
2月5日(土)
・SUNNY
トークセッション
テーマ:坂戸 オンナたちの戦い
北坂戸に店舗を構えた女性オーナー3名登壇
夜:内覧&説明会
2月6日(日)
・SUNNY
飲食店プレオープン(お試し価格)
市内の新規就農者の野菜販売開始
2月12日(土)
・SUNNY トークセッション
テーマ:坂戸でちいさなお店をやってみた
市内で個人飲食店を経営している店長さん3名登壇
2月19日(土) (予定)
・SUNNY トークセッション
テーマ:坂戸のハナマンテンってナニ?
坂戸産小麦ハナマンテンの生産者、製粉会社、飲食業の3名登壇
2月26日(土)
・SUNNY トークセッション
テーマ:子ども食堂ってナニ?
NPO法人や一般社団法人で子ども食堂を展開する代表2名登壇
3月
・SUNNY
シェアキッチンとして稼働開始
・子ども食堂
埼玉県子ども食堂ネットワーク加入手続き
農家さんとのコラボ活動(子どもと一緒にじゃがいも植え作業)
【募集方式について】
本プロジェクトはAll-in方式で実施します。
目標金額に満たない場合も、計画を実行し、リターンをお届けします。

場所:埼玉県坂戸市芦山町10-1 セゾン芦山
東武東上線北坂戸駅から徒歩6分
102号室【常設型子ども食堂】※屋号未定
・営業時間 17時〜20時(予定)
・定休日 月曜
・管理運営 一般社団法人シンビオージ(山口 真)
103&105号室【シェアキッチンSUNNY food works】
・営業時間 11時〜21時(予定)
・定休日 月曜
・管理運営 O'tento plannning 株式会社 (小嶋 昌恵)
106号室【コミュニティスペース】※屋号未定
・営業日&時間 不定期(事前予約制)
・管理運営 一般社団法人シンビオージ(山口 真)

山口 真

1986年京都府生まれ
自営業を営む両親のもと、5人きょうだいの末っ子として育つ。
母親は小児麻痺の障がいもつ家庭環境であったため、近所の人からは「障がいをもっている親が子どもは育てられない」と批判される。
自営+きょうだいが多い暮らしは、決して豊かではない環境であった。
定時制の高校に通い、卒業後は特別養護老人ホームに就職。
聴覚障害を持つ子どもたちや視聴覚障害の方に関わるボランティア活動に励む。
2017年 坂戸市初の子ども食堂団体を設立
2018年 子ども食堂の運営を高校生の活動団体として譲渡
2020年 株式会社3’s peaceを設立(代表取締役)し、デイサービスmoiをオープン。
2021年 坂戸市初のフードパントリー団体設立
こじまま (小嶋 昌恵)
1967年千葉県生まれ
専業農家の跡取り娘として育つが、高校卒業後は都内の大学に進学。
バブル時代らしいOL稼業を経て結婚し、息子をひとりもうける。
夫のDVと借金と女性問題に対峙し、懸命に働いて借金完済後、初婚は10年でピリオドを打つ。
離婚後1年半で、現在の夫と再婚。
VBAのプログラマー(派遣社員)は15年継続。
43歳でレコールバンタン・キャリアカレッジに通学し
44歳で埼玉県坂戸市にcafe COUCOU(くくぅ)を開業。
54歳でO'tento plannning株式会社を設立。(代表取締役)
跡取り娘を放棄した罪悪感から、新規就農者への想いは強い。
立派な経歴はありませんが、失敗を恐れずにチャレンジするのが取り柄のオバちゃんです。
派遣時代の経験から、Excelが得意で大好きです。
【さいごに】
今回、資金のご協力も必死にお願いしておりますが(汗)、この活動を多くの方に知っていただきたくてプロジェクトを立ち上げました。
世代が違っても、生き方が違っても、おたがいを受け入れられるゆるやかな場所に育てていきたいです。
どうかご支援くださいますよう、お願い申し上げます!!
最新の活動報告
もっと見る【リターン報告】メールでのご挨拶を送信致しました
2022/05/02 13:19いつもありがとうございます!本日、リターンに「御礼のメール」をお選び頂いた皆様に対し現在の状況をお知らせするメールを送信致しました。↓内容の一部です-----シェアキッチン SUNNY food worksカレー&子ども食堂 モイキッチンレンタルスペース Paikka3店の様子をご報告しました。ビジネスモデル的に「最初から毎日ガンガンに営業してます!」とは言えないのですがゴールをしっかりイメージしながら日々やれることを積み上げております。SUNNY担当 こじまま もっと見るマフィンの発送と、子ども食堂についてのお知らせ
2022/04/25 18:11こんにちは、こじままです。cafe COUCOUのマフィンスタッフ「はしくみ」の頑張りで、マフィンの発送が完了しました。こちらはその一部。全部で47箱、ご支援いただきました。宛先の記入や梱包をしている中で、顔見知りの名前を発見すると涙ぐみ、遠くの住所を見かけると「(子ども食堂の)山口さんのお知り合いかな」と思ったり、とても心が動く作業でした。箱はずっと前に買ってあった、ちょっとかわいいデザインのものです。レモンケーキもこれに入るといいのですが、難しいかも。1軒だけ宅急便屋さんから「再配達が2日できないでいる」と連絡があり、クール便とは言え賞味期限の短いものなので返送をお願いしました。返送が届き次第ご連絡をさしあげて、再度新しいものを発送致しますので、またお待たせしてしまいますがご容赦くださいませ。********子ども食堂について3月からスタートしていた「moiカレー」ですが、本日より大改造がスタートしています。とにかくぜーんぶ引っ張り出して、イチからやりなおし!詳しくはInstagramのアカウントで山口さんがご挨拶してます。わたしもcafe COUCOUを未経験でスタートしましたので、違和感を感じてはリスタート…の繰り返しでした。コロナ禍に入ったときも「この形では、お店を続けられない」と思い、すぐさま今までの思い出を捨てて、未来へ向かうしかなかったです。その清々しさと苦しさは、よくわかる。(泣)6月のリニューアルに向けて、もっと地域に根ざした飲食店、そして子ども食堂もしっかり継続できる形になるよう、スタッフさんたちが力を合わせてがんばってます。シェアキッチンも子ども食堂も、なかなかいきなり順風満帆とはいきませんが、ブレずに信じて諦めずに、努力を積み重ねていきたいと思っています。 もっと見るご支援のリターン開始
2022/04/16 17:00クラウドファンディングにご支援くださった皆様SUNNY food worksの小嶋です。3月26日にプレオープンイベントを終え、その後も試運転や調整を重ね、設備は問題なく動かせるようになりました。シェアキッチンに関しましては、現在、火曜日と金曜日のご利用があり、ほかにも今後ご利用希望の方が出店の準備をしてくださってます。お隣のmoiカレー(こども食堂開催店舗)では、子ども食堂を開催しようと有志が集まり、活動資金のためのイベント準備も進んでおります。クラウドファンディング終了からかなりの準備期間を頂戴してしまいましたが、本日からマフィンの製造も本格始動!cafe COUCOUのマフィン担当、レモンケーキ担当ともに、返礼品の製造にとりかかります。施設のご利用券やお食事券につきましては4月末までに発送し似顔絵に関しましてはご支援いただいた順に、こじぱぱよりご連絡さしあげます。クラウドファンディングのプロジェクト終了からだいぶ経過しまいましたのに、ご連絡ひとつ差し上げず、大変ご無礼を致しました。今後は返礼品発送の進捗をご報告していきますので、何卒よろしくお願い致します。 もっと見る









コメント
もっと見る