今年も、初詣は出雲大社に行ってきました!ここ2年ぐらいは、大変な状況が続いていますが、今年こそ良い年になればと、御祈願してきました。不安な状況はまだ拭い去れないですが、皆様の2022年が、素敵な1年になることを、心より願っております。工事は明日から再開しますので、また進捗を活動報告させていただきます!Instagramshitsu 出雲 → shitsu_shimaneshitsu 松江 → shitsu_matsue





現在の支援総額
657,000円
目標金額は1,000,000円
支援者数
49人
募集終了まで残り
終了
このプロジェクトは、2021/12/24に募集を開始し、 49人の支援により 657,000円の資金を集め、 2022/02/28に募集を終了しました





現在の支援総額
657,000円
65%達成
目標金額1,000,000円
支援者数49人
このプロジェクトは、2021/12/24に募集を開始し、 49人の支援により 657,000円の資金を集め、 2022/02/28に募集を終了しました
今年も、初詣は出雲大社に行ってきました!ここ2年ぐらいは、大変な状況が続いていますが、今年こそ良い年になればと、御祈願してきました。不安な状況はまだ拭い去れないですが、皆様の2022年が、素敵な1年になることを、心より願っております。工事は明日から再開しますので、また進捗を活動報告させていただきます!Instagramshitsu 出雲 → shitsu_shimaneshitsu 松江 → shitsu_matsue
松江城の堀川沿いの外装も、少しずつ仕上がってきました!今後は、一階にデッキが出来、2階は一枚ガラスの広々窓ができる予定です。川沿いの浴室も良い感じに出来上がってきました!楽しみにお待ち頂けると幸いです。Instagramshitsu 出雲 → shitsu_shimaneshitsu 松江 → shitsu_matsue
新年明けましておめでとうございます。2021年は、ご支援やご宿泊を頂き誠にありがとうございました。今年は年始からお客様から嬉しいメッセージやお年賀を頂き、前向きな1年になればと心より思っております。出雲大社もたくさんの参拝客の方がいらしていました。少しずつ旅行もしやすい状況になれば幸いですね!本年も宜しくお願い致します。Instagramshitsu 出雲 → shitsu_shimaneshitsu 松江 → shitsu_matsue
今年最後の活動報告になります。いまは吹き抜けになるところの天井に、断熱材を入れてラワンを貼る作業ですが、天井が高いので足場を組んで作業されています。外から見ると、こんな感じです。外観はそんなに手を加えないですが、中に入った時のギャップを感じれるよな仕様になります。とても楽しみです!新しいプロジェクトにご支援いただき誠にありがとうございました。まだ終わりではないですが、2021年の締め括り投稿とさせていただきます。本プロジェクトは2022年2月末までご支援が可能なので、何卒宜しくお願い致します。皆さま、良い年をお迎え下さいませ。Instagramshitsu 出雲 → shitsu_shimaneshitsu 松江 → shitsu_matsue
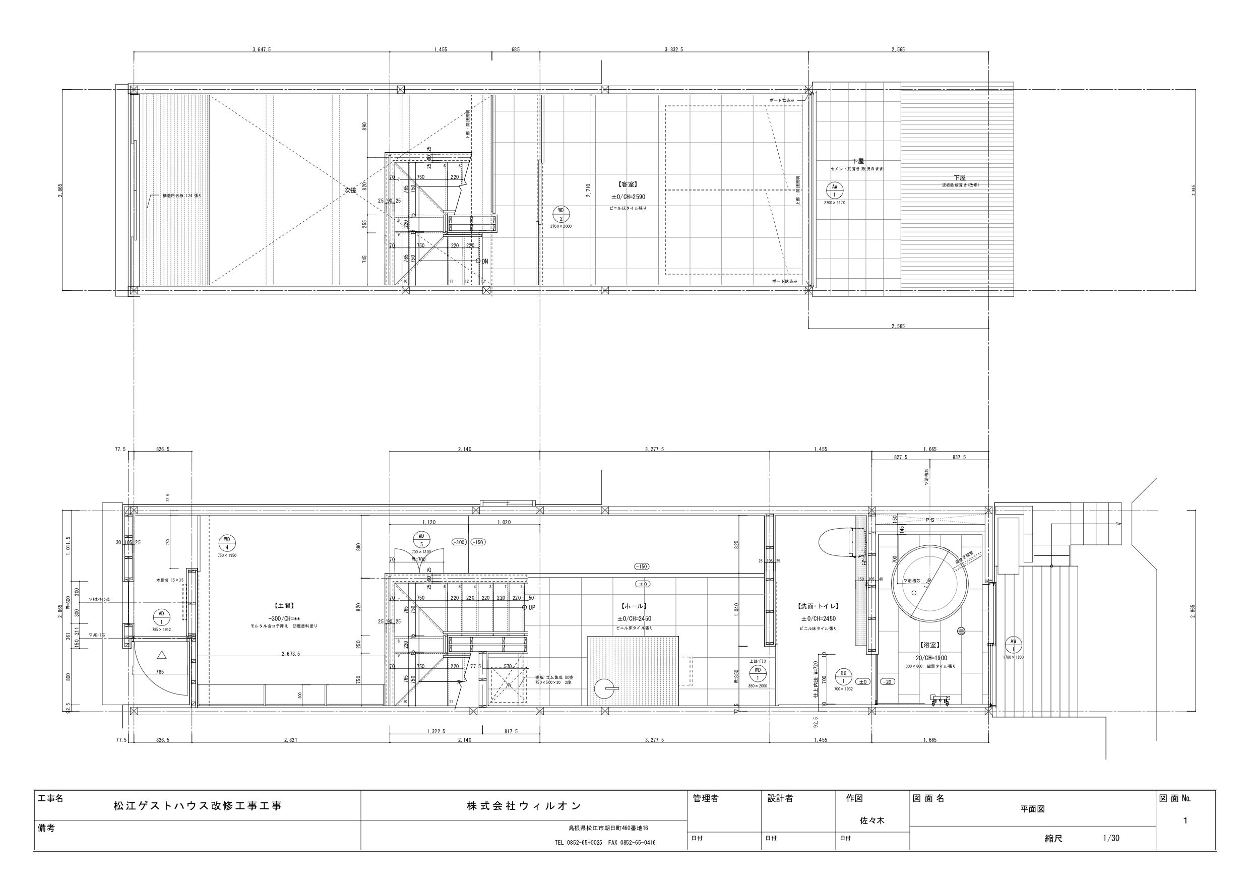
今回の松江のshitsuの設計平面図です。下が1階で上が2階になっていまして、1階入り口から土間スペースがあり、ここには天井まで本棚を作り、古い雑誌やアートブックなどを置きます。その奥は、コーヒーを入れるための道具を設備したダイニングです。ここにはワーケーションできるスペースで、有線・無線どちらでも使えるwifiを設けます。さらに奥が、トイレとバスルーム、外に出られるデッキを作ります。2階は寝室になり、ここには大きい窓を作り眺めの良い空間になります。寝室以外の部分は吹き抜けになっているので、開放感のある設計です。今日も現場での配管等の打ち合わせでした。浴室の壁も立ち上がってきて、工事も進行してきました!Instagramshitsu 出雲 → shitsu_shimaneshitsu 松江 → shitsu_matsue