はじめに・ご挨拶
私たちは大阪府吹田市のJR吹田駅前にある商店街、旭通商店街を盛り上げるために活動しているトコトコプロジェクトです。

今回、旭通商店街をもっと楽しい場所にするために、空き店舗を改装して『スープカフェ』と『シェアキッチン』と『集う場所』が一緒になった施設を作ることにしました。
プロジェクトで創る場所
平日昼間は『スープカフェ』店舗を商店街として運営して子連れのママや近隣の若い方が集まる場所
夕方以降と休日は『シェアキッチン』として、新しいお店を開きたい方のチャレンジの場所
3階部分は『集う場所』として、ママ会や各種教室、勉強会などができるコミュニティの場所
この施設を起爆剤にして、現在商店街を使うことが少ない、ママ、若い経営者、大学生に特に集まってもらいたいと考えています。
このプロジェクトで実現したいこと
このプロジェクトでは店舗で使う食器や備品を購入する資金として活用させていただきます。
既に店舗の改装費などは調達できていますが、スープカフェやシェアキッチンで使用する食器をより魅力的なものにしたり、3階スペースの備品を充実させたいと考えています。
私たちの地域のご紹介
JR吹田駅は東洋一の操車場と呼ばれる貨物の一大ターミナルがありました。(現在は隣のJR岸辺駅に移っています。)

(JR岸辺駅にあるJR貨物の操車場)
また、アサヒビールの創業の地でもあり、『ビールと操車場の町」と言われていました。
そして、JR吹田駅と一緒に街を作ってきた旭通商店街も2024年で100年になります。
今でもかなりの人が往来していますが、昔の人が多すぎて歩くのも難しいと言われるほどの賑わいからはかなり減っています。
特にコロナ禍で2年間はイベントもできなくなってしまい、来街者も更に少なくなってしまいました。
クラウドファンディングに対する思い
クラウドファンディングを立ち上げたのは以下の三つの思いからです。
1.シェアキッチンを使ってみたいという人を増やしたい
2.商店街のことを知ってもらう機会を増やしていきたい
3.予算を増やして、さらに良い店舗にしたい
今回のプロジェクトは沢山の人に関係してもらい、たくさんの人に集ってもらいたいというのが一番の目的になっています。そのためにクラウドファンディングを活用させて頂こうと考えました。
トコトコプロジェクトの活動
商店街の組合だけでできることは限られているので、
本プロジェクトは商店街だけでなく、沢山の人にご参加頂いています。
・周辺に住む子育て中のママさん(まちプランナー)
・吹田市の職員さん
・大阪府の職員さんに
色々な人に参加頂きながら、店舗をオープンするように1年がかりで進めてきました。
資金の使い道・実施スケジュール
皆様から集まったお金はCAMPFIRE手数料の支払い、カフェで使う食器をはじめとした備品の購入費や集う場所の照明、モニターなどの備品をさらに良いものにするために活用させていただきます。
現在、2月28日に店舗をオープンするために動いております。
1月23日 :DIY1日目
1月29日 :DIY2日目
1月30日 :DIY3日目
1月31日ごろ:内装の完成
2月20日ごろ:食器の購入
お金は集まっている金額を見ながら
まずはメンバーで立替をして、オープンに間に合わせる予定です。
店舗の改装状況などは随時ご報告していきます。
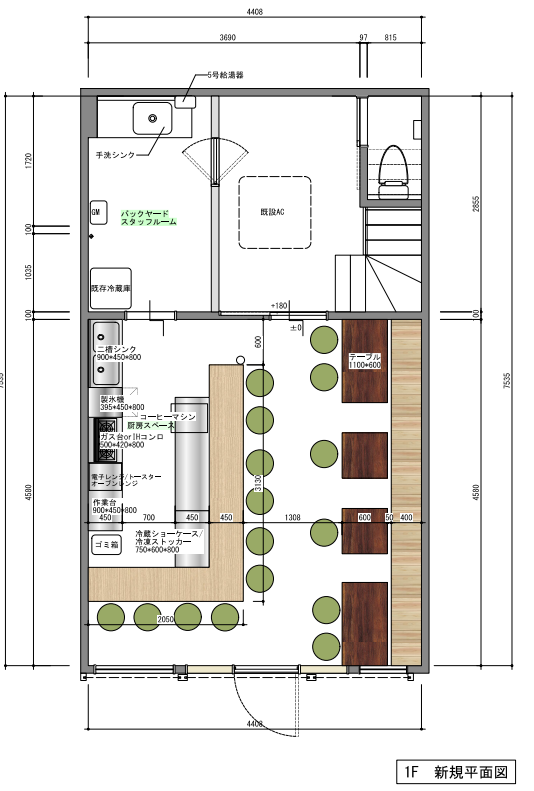
シェアキッチンについて
修正が入るかもしれませんが、現在想定している図面は以下の通りです

ビジネスの継続性
今回のプロジェクトはビジネスとして採算を確保することも重要なポイントとしています。
かなり保守的な事業計画を立てていますが、十分に成り立つ予定となっています。
これは手作りで、経費を抑えていることが一番のポイントです。
TOCOTOCOのHPが今のところ簡素なのも手作りで行っているからです。
プロジェクトを成功させて、同じ商店街に2店舗目を作れるぐらいにしたいと思っています。
それでいて、利用する人も安価で利用できるようにする予定です。
シェアキッチンは現在作成中ですが、下記の格安料金で利用できるようにする予定です。
■夜(16:00~22:00)
日~木:3,000円(6時間)
金 :4,500円(6時間)
土 :6,000円(6時間)
■昼(9:00~15:00)
土・日・祝:6,000円(6時間)
クラウドファンディングを起爆剤として活用して、より安価で使いやすい施設にしたいと考えています。
シェアキッチンを使う人にも、貸す人にも十分に採算が合うところを目指しています。
リターンのご紹介
リターンについては大きく分けて2つです
1.支援に対する御礼や報告
2.カフェで使用できる割引券
最後に
ぜひ、たくさんの人に応援を頂き、本プロジェクトを成功させたいと思っています。
クラウドファンディングを実施して頂ければ最高ですが、記事をご覧になり、
直接、店舗にお越しになり、ご利用頂ければ幸いです。
よろしくお願いいたします。
<募集方式について>
本プロジェクトはAll-in方式で実施します。目標金額に満たない場合も、計画を実行し、リターンをお届けします。
最新の活動報告
もっと見る
3月22日オープンです。
2022/03/13 09:30蔓延防止措置などあり、なかなかオープン日が決まらなかったのですが、トコトコカフェは3月22日にオープンすることで決まりました。これ以上の開店延期はありません。ぜひ、お店にお越しくださいませ。皆様のご支援については非常にありがたく、もともとコーヒーについてはドリップで提供する予定だったのですが、コーヒーマシンの購入費として充てさせていただく予定です。(オープン当初はドリップでのご提供になるかもしれませんが・・・) もっと見る
プレオープンを行いました
2022/03/07 08:33トコトコでは3月6日(日) 遂にプレオープンを行いました。JR吹田でビレッジマートというイベントあり、吹田駅に来られる方も多いので、トコトコのお店を知ってもらうために、スープの試飲会とお店で出すお菓子の販売を実施しました。スコーンやケーキも大人気でした。(※オープン時の価格は変更になります。)POSレジのテストもバッチリで、 最初は戸惑いましたが、完全キャッシュレスレジの対応にも最後には慣れて、うまく処理ができました。まだ店舗の工事は続いているので、本オープンはまん防空けの3月22日の予定です。ぜひ、お越しください。2階はゆったり使えるスペースになる予定です。 もっと見る
シェアキッチンのチラシができました。
2022/02/21 18:05JR吹田駅からアーケードを歩いて5分のところ吹田市旭通商店街に作っているトコトコのシェアキッチンのチラシができました。創業だったり、副業だったり、ガクチカだったり、色々なチャレンジをするのにとっても安くて、可能性の高いお店になっています。皆様の応援もあり、どんどん形になってきています。オープンできる日が楽しみです。シェアキッチンの詳細はこちらからhttps://tocotoco-suita.com/sharekitchen/ もっと見る




コメント
もっと見る