|ご挨拶
こんにちは。
ご覧いただきありがとうございます。
うつわのお店 corneille (コルネイユ)の下田 有利(しもだ あり)です。
できるだけ自分の言葉で、自分の想いを皆さまに伝えたいと思い、精一杯、書いてみました。
最後までお読みいただけると嬉しいです。
|このプロジェクトで実現したいこと
思い出のプリンを、みなさんに食べていただける環境を作りたいです。
今のお店は「うつわのお店」です。
このままでは保健所の許可がとれず、飲食店としては営業できません。
プリンを販売するには、改装する必要があります。
↑現在の店内の様子
これまではうつわの販売のみでしたが、プリンの販売をはじめられると思うと、今から楽しみでなりません。
(リニューアルオープン後、しばらくはテイクアウトのみとさせていただきます)

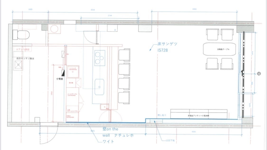
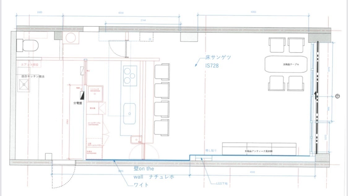
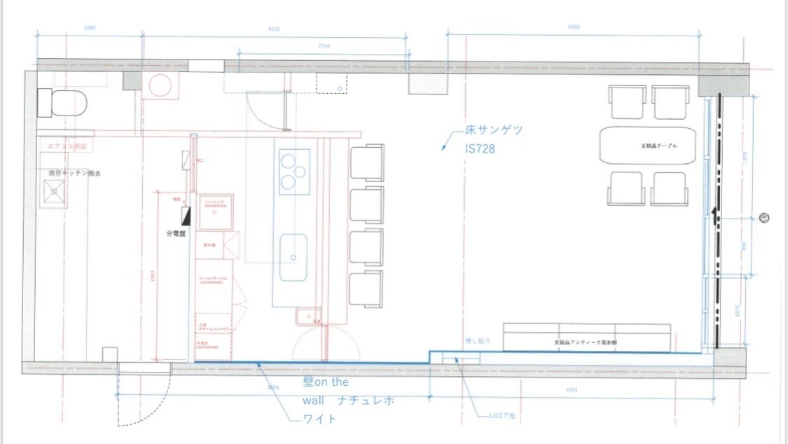
↑改装予定の図面(予定)
改装は、銀行からの借入にて話を進めておりますが、ありとあらゆるものの価格の高騰。
改装に必要な資材もかなり高騰し「ベニヤ板1枚がこれまでは1,200円くらいだったけど、3,000円以上になってきている」と内装屋さんから聞きました。
値上がりは止まりそうになく、9月にもまた値上がりするそうです。
改装にかかる費用は、借入するお金でなんとか賄う予定ではおりますが、その間、お店を少しお休みしなくてはいけません。
この状況では、不安が拭いきれないため、みなさまからご協力いただいた資金は、改装するためにかかる費用の一部と、プリンを作るためのオーブン(スチームコンベクション)の移送費(三重県の実家→東京のお店)、材料費(プリン瓶、箱などのパッケージ含む)に充てたいです。
|プロジェクトをやろうと思った理由
今から約16年前の2006年。
私は地元の三重県尾鷲(おわせ)市で、母と一緒にカフェをオープンさせました。
自宅の一角を改装して始めた小さいお店ではありましたが、親子の想いがたくさんつまったお店でした。
お店の人気メニューになったのが「プリン」です。

↑当時作っていたプリン
私はもともとパティシエだったので、お店ではお菓子を作って販売していました。
今でも、地元に帰ると「ありちゃんのプリン、また食べたいなー!」と言ってくれる方がたくさんいます。
本当に嬉しいです。
その思い出のプリンを、もう一度、作れるように。
そして、また、たくさんの人に食べてもらいたいと思い、このプロジェクトを立ち上げました。
|これまでの活動
2014年11月に私は独立しました。
お店を持つまでは、マルシェなどのイベントでうつわの販売をしていました。
週末になると、マルシェにうつわを持って行き販売。
マルシェが終わると、持って帰って来て、また次の週末、違う会場に持って行って販売。
これを約7年続けていました。
↑マルシェに出店した時のブースの様子
念願叶って、2019年10月に東京 世田谷区の尾山台商店街(ハッピーロード)に実店舗をオープン。
「やっとやっと、自分のお店が持てた!」
本当に嬉しくて、頑張ってきてよかった!と毎日お店にいるのが本当に楽しい時間でした。
↑オープンした時のお店 外観
オープンして数ヶ月、状況は一転。
2020年に入るやいなや、新型コロナウイルスの蔓延により、通常営業がままならない日々となりました。
毎日たくさんの人で賑わう商店街も、閑散とする日々へと変わりました。
やっと持てた自分のお店。
半年も経たないうちの出来事で、どうなるんだろう?と、本当に心配ばかりでした。
↑楽しんでもらえるディスプレイを心がけています
「うつわはここで買うって決めているの」
「女性一人で頑張っているから、応援したいの」
「こだわっているから、安心して買えるよ」
こんな風に、いつも応援してくださっているお客さまがたくさんいる。
そして、うつわを作ってくださっている作家さんや、職人さん。
お店のために心を込めて作ってくださっています。
簡単には諦めたくありませんでした。
自己資金は全てお店のために使いました。
思いつくことは全て挑戦し、なんとかここまで営業を続けてきました。
ここまで続けられたのは、支えてくださる、みなさまのおかげです。
本当にありがとうございます。
↑店内の様子
長期化するコロナ禍。
そして、また予想もしていなかったことがおきました。
なんとか、お店を立て直したい!と色々と計画を練っていた今年5月、私の母が亡くなりました。
一人でお店を回しているので、止むを得ず、一時お店を閉めることに。
もちろん、その間、売上はとれていません。
コロナで大変なことになっているうえに、さらに大変になりました。
一時はどうしていいかわからなくなり、お店を畳むことも考えました。
でも、それは違うはず。
ここまでみなさんに応援してもらって、続けてきたお店を、簡単に畳んでしまっていいのかな。
とにかく、なんとかしないと!と思う気持ちでいっぱいでした。
↑店内の様子
状況を知ったお客さまから、たくさんのご連絡をいただきました。
心配して、お店に様子を見にきてくださる方も、たくさんいらっしゃいました。
本当にたくさんの方に支えられていることを改めて感じました。
だからこそ私は、お店を存続させるために、新しいことにチャレンジします。
今のお店を改装し、母も大好きだった思い出のプリンを作って販売することにしました。
|資金の使い道
集まった資金は、改装にかかる費用の一部と、プリンを作るために必要なオーブン(スチームコンベクション)の移設費(三重の実家→東京のお店)、そしてプリンを作るために必要な資材購入や、このプロジェクトのCAMPFIRE手数料などに使わせていただきます。
|リターンについて
シンプルに「ただただ応援」というプランをはじめ、リニューアルオープン後にお使いいただける、プリンの引換券やテーブルコーディネートのレッスンチケット。
そして、お店でも人気の商品とのセットもご用意しました。
私も愛用している「尾鷲ひのきのまな板」も「尾鷲わっぱ」も、職人さんに無理を言って、なんとかご用意していただけることになりました。
(ぬし熊さんは今回特別に、非売品のしゃもじとお箸もご用意くださいました!)
はなクラフトさんがお店のために作ってくださった「塩壺」をはじめ、古谷製陶所さんにお願いして別注カラーで作ってもらったコンポートと特注サイズの焼き物皿。
UMESHISO工房さんがうちの小豆(私が飼っているフクロウ)をモデルにして作ってくれたフクロウ皿もご用意できました。
佐々木綾子さんの蕎麦猪口、小皿セットと、よしざわ窯さんのうつわのセットもありますよ。
★ま工房さん、長浜由起子さんの作品も追加いたしました!
(職人、作家のみなさま、ご協力本当にありがとうございます!)
リターンのお品はシモダが常日頃愛用しているものです。
お店に並んでいるものも、基本的には私自身が使って良かったものを並べるようにしています。
そうでないと、お客さまに「それ、良いですよ!」と気持ちよくオススメできないと思うんです。
お客様にオススメするには、まずは自分で実際に使ってみて、良かった!という気持ちが大切だと思っています。
■ただただ応援プラン 1,000円〜
■プリンの引換券(実店舗のみ利用可能)
2個 2,500円プラン/4個 5,000円プラン/6個 7,500円プラン/8個 10,000円プラン/10個 12,500円プラン
■UMESHISO工房さん 特注 フクロウ皿 6,500円
■よしざわ窯さんのうつわセット 7,000円
■はなクラフトさん 別注 大きめマグ 7,000円
■はなクラフトさん 別注 塩壺 10,000円
■佐々木綾子さん(ayako sasaki) 別注 八角小皿/大、小2客セット 8,000円
■佐々木綾子さん(ayako sasaki) 蕎麦猪口 2客セット 12,000円
■古谷製陶所さん 別注カラー グレー釉 特注サイズ 焼き物皿 2客セット 10,000円
■古谷製陶所さん シモダ愛用 めしわん 2客セット 10,000円
■古谷製陶所さん 別注カラー グレー釉 コンポート/大、小2客セット 10,000円
■テーブルコーディネートチケット 8,000円(実店舗のみ利用可能)
■プライベートレッスンチケット 50,000円
■尾鷲ひのきのまな板 小 手付(非売品 特別サイズ)6,000円
■ぬし熊さん 尾鷲ひのきのお箸(非売品)2膳セット 8,000円
■ぬし熊さん 尾鷲ひのきのしゃもじ(非売品)5,000円
■レンジOK 尾鷲わっぱ ぬし熊さん お櫃
2合 48,000円/3合 54,000円
■レンジOK 尾鷲わっぱ ぬし熊さん お弁当箱 小判型
特大 35,000円/大 31,000円/中 29,000円
■レンジOK 尾鷲わっぱ ぬし熊さん お弁当箱 丸型
大 31,000円/中 29,000円
★特別編 リクエストに応えて/小豆のハンコを押したポストカード2枚と羽根セット 3,500円
<追加>
■ま工房さん フクロウ豆皿(アメ釉/グレー釉) 5,500円
■ま工房さん クジラ長皿 7,500円
■ま工房さん チョウチンアンコウの蚊遣り 7,500円
■ま工房さん 取手付 土鍋 中 どんぐり 23,000円
■ま工房さん 取手付 土鍋 小 どんぐり 21,000円
■ま工房さん フクロウポット(土鍋)21,000円
■UMESHISO工房さん アザラシの花瓶 7,000円
■はなクラフトさん 取り皿2枚セット(貫入/墨入貫入) 7,000円
■はなクラフトさん 貫入 めしわん 2客セット 7,500円
■はなクラフトさん 墨入貫入 6寸リム輪花皿 2客セット 12,000円
■はなクラフトさん 6寸平鉢 2客セット(鉄マット/アメ釉)12,000円
■古谷製陶所さん グレー釉 彫刻コンポート/大、小2客セット 12,500円
■古谷製陶所さん りんご皿2枚セット 大 7,500円/小 6,500円
■古谷製陶所さん ルリ釉 長方豆皿2枚セット 7,000円
■古谷製陶所さん ルリ釉 リムボウル 2客セット 9,000円
■古谷製陶所さん 八角ケーキ皿(鉄散/ルリ釉/サビ釉) 2枚セット 9,500円
■古谷製陶所さん 鉄散 楕円深鉢 2客セット 大 13,000円/中12,500円
■古谷製陶所さん 白鉄線 どんぶり 2客セット 12,500円
■古谷製陶所さん 鉄散 輪花皿 中 2枚セット 10,500円
■古谷製陶所さん 鉄散 ラッフルプレート L 2枚セット 13,500円
■長浜由起子さん 箸置き2つセット デイジー(お花)4,000円/鳥 5,000円
■長浜由起子さん ぽんぽんダリアめしわん2客セット 11,000円
■佐々木綾子さん(ayako sasaki) すみれ色 フリル小皿 2枚セット 7,000円
■佐々木綾子さん(ayako sasaki) moss めしわん 2客セット 13,000円
*作家さんの作品はたくさんご用意することが難しいのですが、その代わり、少しずつ新しいリターンを追加していく予定です。ぜひ、チェックしていただけると嬉しいです。
information
リニューアルオープン後、落ち着き次第にはなりますが、店内でお茶やアルコールも楽しんでいただけるようにしていきます。
カウンターしかない小さな空間となりますので、飲食利用は会員制とさせていただく予定です。
その際、今回のクラウドファンディングご支援者さまには、優先的にご利用いただけるように計画しております。
お楽しみにしていてくださいね。
|実施スケジュール
2022年
9月下旬 改装工事着工予定
9月26日 クラウドファンディング終了
10月中旬頃 リニューアルオープン予定
9月末〜 順次、リターンお届け開始
*リニューアルオープン後、しばらくはテイクアウトのみとさせていただきます
*改装工事が終わり次第、リニューアルオープンはいたしますが、プリンの販売は保健所の許可が取れてから開始となります。リニューアルオープン=プリンの販売開始ではございません。ご留意くださいませ。

↑プリン瓶にカラメルを入れたところ(カラメルも全て手づくりです)
|最後に
母との思い出のプリンを、みなさまにも食べていただきたいです。
(母も大好きで2、3個はペロリと平らげてました!)
コロナで売上がなかなか取れない。
そして、母のこと。
不安でいっぱいだった中、助けてくださったのは、いつも応援してくださる、たくさんのお客さまでした。
「応援したいし、うつわも欲しいけど、もう置くところがなくて。プリン作って売るなら、もっと気軽にお店に行けるね!」
そう言ってくださった方がいらっしゃいました。
背中を押していただき、思い切ってこのプロジェクトを立ち上げました。
みなさまがお越しくださって、お店が成り立っています。
このチャレンジを応援し、ご支援いただけるのであれば、これ以上に嬉しいことはありません。
是非、このプロジェクトに携わっていただき、一緒に盛り上げていただけると嬉しいです。
度々にはなりますが、ここまで築いてきたお客さまとの関係と、作品を作り続けてくださっている作家さん、職人さんとの関係。
そして、たくさんのことを一緒に乗り越えてきた母のためにもこのお店を続けていきたいです。
ここまでお読みくださり、本当にありがとうございます。
どうぞよろしくお願いいたします。
corneille
下田 有利
↑当時作っていたプリン(お子さま向けに容器を変えることもありました)
みなさまから「応援してるよー!」「支援したよー!」とメッセージいただけると「1人じゃないんだ」と頑張れます。
ご支援くださった方は、インスタグラムなどで教えていただけると嬉しいです。
改装工事のスケジュールに関しては決まり次第、インスタグラムにてお知らせしていきます。
併せて、チェックしていただけると嬉しいです。
|プリンについて
リニューアルオープン後、準備でき次第プリンの販売はいたしますが、1日に作れる数が限られます。
しばらくの間はテイクアウトのみ&予約販売とする予定です。
プリンチケットをお選びくださった方には、引換券をお送りする際に、詳しい説明を一緒にお送りいたしますので、そちらも併せてご確認ください。
(決まり次第、インスタグラムなどでもお知らせ予定)
*改装工事が終わり次第、リニューアルオープンはいたしますが、プリンの販売は保健所の許可が取れてから開始となります。リニューアルオープン=プリンの販売開始ではございません。ご留意くださいませ。
原材料及び添加物等の食品表示はお届け商品のラベルに表記されます。
商品開封前には必ずお届けのリターンに貼付されたラベルや注意書きをご確認ください。
実際にお届けするリターンとパッケージ等のデザインが異なる場合がありますので、あらかじめご了承ください。
______________________________
profile
下田 有利(しもだ あり)
うつわのお店 corneille(コルネイユ) 店主。
テーブルコーディネーター、フードスタイリストでもあります。
レコール・バンタン卒業後、パティシエとして経験を積み、その後「食×スタイリング」の世界へ。
2014年独立。
2019年10月、東京 世田谷区にある尾山台商店街(ハッピーロード)に実店舗をオープン。
うつわ選びを楽しんでいただきたいので、お店には様々な作家さんや職人さんの作品を常設で並べています。
作品はもちろんのこと、作り手さんの気持ちや想いも一緒に手にとって感じていただきたいので、対面でのみの販売を続けています。
↑スタイリングをさせていただいたカタログ(ぬし熊さん 尾鷲わっぱのお弁当箱を使いました)
<これまでの主なお仕事>
■雑誌、書籍
・ハルメク 健康と暮らし
・誠文堂新光社 4 SEASONS 12 COLORS
■広告、WEB、CM
・宝酒造 レシピコンテスト、レシピ動画ほか
・雪印 ネオソフトハーフ
・ハイアールジャパンセールス 5.5合炊きIHジャー炊飯器 JJ-H55A
・バンダイ キャラデコ
・理研ビタミン株式会社 素材力だし
・ミツカン
など
■商品パッケージ
・イオン Picard
・イオン 海と大地のデリ
・ミニストップ 牛角 監修商品
など
■ケータリング パーティーセッティング
・株式会社東横イン
・第一三共株式会社
・富士フイルムRIファーマ株式会社
■その他
・日本食研
・グローバルプロダクトプランニング
・シャディ
・山崎パン
・アマノフーズ
・ツヴィリング J.A. ヘンケルスジャパン
・マルハニチロ
・レコール・バンタン テーブルコーディネート講師
など
______________________________
うつわのお店 corneille(コルネイユ)
東京都世田谷区等々力2-16-15
open 12:00-18:30
定休日 火曜日、不定休あり
リニューアルオープン後
定休日や営業時間は変更になる可能性があります。
最新情報はインスタグラムをご確認くださいませ。
■Instagram
https://www.instagram.com/_corneille/
______________________________
本プロジェクトはAll-in方式で実施します。
目標金額に満たない場合も、計画を実行し、リターンをお届けします。
最新の活動報告
もっと見る
プリンの配送チェックにご協力いただける方を、募集いたします!
2024/06/30 16:31クラファンご支援者さま限定【プリンの通販/モニターキャンペーン】プリンの配送チェックにご協力いただける方を、募集いたします!プリンを配送にてお受け取りいただき、品質のチェックをしていただける方。ぜひ、ご協力いただけないでしょうか。これまで、プリンの通販の場合、お届けは「ゆうパック」にてお送りしておりました。気温が30度を超える日が増え、品質保持のためにも、ヤマト運輸さんのクール便での発送を検討しております。テスト発送を行いたいので、ご協力いただける方を募集いたします。できるだけたくさんの方にご協力いただきたいので、募集件数の制限は設けておりません。◯内容特別価格にて、プリン(通販)をお求めいただける企画です。プリンを配送(ヤマト運輸さんのクール便)にてお送りいたしますので、お受け取りいただき、品質のチェックをお願いいたします。届き次第、お写真をお取りいただき、状況の報告をお願いいたします。◯プリンの個数と料金プリン5個をお箱にお入れする形で、配送いたします。現在使っているガラスが入っていた箱を再利用する形でのお届けになります。特別価格の5,000円税込(送料込み)*通常、プリンは800円+税金(864円税込)にて販売しております。(プリン5個で4,320円)北東北、関西エリアの送料は1,335円→655円お得◎南東北、関東、信越、北陸、中部エリアの送料は1,215円→535円お得◎◯対象クラウドファンディングご支援者さま。プリンの消費期限の関係上、当店発送→「翌日到着エリア」の方。▼お届け可能エリア(翌日到着エリア)・北東北(青森、秋田、岩手)・南東北(宮城、山形、福島)・関東(茨城、栃木、群馬、埼玉、千葉、神奈川、東京、山梨)・信越(新潟、長野)・北陸(富山、石川、福井)・中部(静岡、愛知、三重、岐阜)・関西(大阪、京都、滋賀、奈良、和歌山、兵庫)上記エリアにてお受け取り可能な方、よろしくお願いいたします。*消費期限は、届いた「その日」です。(発送した翌日)賞味期限ではありません。ご注意ください。品質保持のため、必ず「1度」にてお受け取りください。プリンの特性上、できるだけ温度変化や振動などを影響を受けない方が安心です。不在票が入り、再度配達となると、必要以上の移動になり、状態の悪化が予想されます。◯お願いデリケートなプリンをお送りいたします。品質保持のためにも、しっかりとお受け取りいただきたいので、何かあった場合、すぐご連絡が取れる方にお願いしたいです。お電話対応可能、もしくはこまめにメールやLINEでご連絡が取れる方。ご連絡をとることに不安を感じる場合は、お断りすることがあります。プリンは万全を期して出荷しますが、配送事故がないとは限りません。今回はモニター企画ですので「ご自宅用」とさせていただきます。予め、ご了承くださいませ。◯応募方法当店LINE、もしくはメールにて以下の必須事項をご記入の上、ご応募ください。▷LINE(お友達追加)https://lin.ee/7An49Zy▷メールcorneille1013@gmail.com・お名前(フルネーム/ふりがな)・郵便番号・ご住所(都道府県から)・お電話番号(必ずご連絡のとれる番号)・メールアドレス・お支払い方法(銀行振込orクレジットカード)・お届け希望日(金、土、日曜日到着だとありがたいです)ご希望のお日にちを第1希望〜第3希望まで教えていただけると嬉しいです。▷第1希望▷第2希望▷第3希望・お届け希望時間(エリアによっては午前中がお選びいただけません。ご注意ください。)▷午前中▷14-16時▷16-18時▷18-20時▷19-21時*ご応募いただいた方が必ずお受け取りください。ご応募いただいた方と、お受け取りになる方が違う場合、キャンセル処理する場合があります。◯締切本日~7月31日(水)まで◯その他お支払いいただいた段階で、この企画にご理解いただき、ご納得いただいたものといたします。お申し込み後のキャンセル、ご返金はいたしかねます。必ず、よくご確認いただき、お申し込みをお願いいたします。ご協力いただける方には、事前(発送前)にこちらからご連絡させていただきます。必ず、ご対応をお願いいたします。到着した際には、届いた状態のお写真をお取りいただき、受け取った際の状況(温度が上がっていないかなど)のご報告をお願いいたします。モニター特別価格以外の料金は一切発生いたしませんが、ご応募の際や、ご連絡をとるための通信費などはお客さまのご負担とさせていただきます。ご不明な点があれば、必ずお申し込み前にご連絡ください。たくさんのご参加、お待ちしております。*「ご紹介したい!」という場合、一度ご相談くださいませ。よろしくお願いいたします。 もっと見る
「プリンの通販」(配送でのお届け)をはじめます
2024/05/02 16:46こんにちは。ご支援くださったみなさまに「プリンの通販」開始のご案内です。(クラファンご支援者のみなさまを優先しての対応です)オーブンの問題はありますが、プリンの配送に関しても、大きな問題なく行えていることから、クラウドファンディングご支援者のみなさまを優先して、プリンの通販対応を開始することにいたしました。*万全を期して出荷しますが、配送事故がないとは限りません。念のため、大切な記念日などの場合は、店頭でお受け取りいただくことを強くおすすめいたします。ご希望の方は、お店の公式LINE、もしくはメールにて、ご注文くださいませ。もちろん、店頭での受付も可能です。既にお伝えしているとおり、オーブンが壊れたため、買い替えに向けて動いています。新しいオーブンを設置するためには、電気工事も必須となり200万円ほどかかります。オーブンを買い替えるための新しいプロジェクト(クラウドファンディング)は立ち上げず、銀行からの融資、そして自己資金でなんとかしようと動いています。(今のおじいちゃんオーブンですが、なんとか動いてくれています)ギリギリの状態でオーブン買い替えに踏み切りました。(新しいオーブンは5月中旬にやってくる予定です)ぜひ「お買い物をしていただく」という形で応援していただけると嬉しいです。(プリンでも、うつわでも、なんでもありがたいです)プリンの通販については、以下にまとめました。ご確認いただけると嬉しいです。————————————————————<プリンの通販(配送でのお届け)について>◎お届け可能曜日仕込みの関係上、まずは「金曜到着」か「日曜日到着」からスタートしたいと思います。今後、対応できる曜日を増やしていきますので、他の曜日をご希望の場合は、一度ご相談くださいませ。*母の日(今年の母の日は5/12)前後は物流が混雑する関係上、配送でのお届けは難しい場合があります。一度ご相談ください。◎お届け可能エリアクラウドファンディングでもお伝えした通り、プリンをお送りできるのは、翌日到着するエリアのみとなります。*消費期限は、届いた「その日」です。(発送した翌日)賞味期限ではありません。ご注意ください。発送の翌日にお届けができるエリア限定とさせていただきます。なお、品質保持のため、必ず「1度」にてお受け取りください。プリンの特性上、できるだけ温度変化や振動などを影響を受けない方が安心です。不在票が入り、再度配達となると、必要以上の移動になり、状態の悪化が予想されます。ご心配な方は、最寄りの「郵便局留め」にさせていただきますので、遠慮なくご相談くださいませ。翌日には届かないエリア↓・北海道(函館以外)・九州 宮崎、鹿児島・沖縄・その他、離島ご心配でしたら一度、下記サイトにて日数をお調べください。(当店の郵便番号は「1580082」です)お届け日数を調べる | 日本郵便株式会社https://www.post.japanpost.jp/send/deli_days/index.html*「翌日」と表示されれば配送可能です◎お届け内容基本的にプリン5個をお箱にお入れする形で、配送いたします。(最低個数は4個〜。8個、10個でも可能です。数はご相談くださいませ。)専用箱がありませんので、現在使っているガラスが入っていた箱を再利用する形でのお届けになります。ギフトラッピングはできかねます。ご了承ください。*夏季(30度を超える季節)の通販対応については、品質保持が難しいため現在検討中です。◎プリンの価格1個800円+税(864円税込)◎送料についてエリアによって異なりますが1,045円〜1,635円となります。プリンの個数によっても送料が変わります。詳しい送料は、ご注文時にお伝えいたします。◎お支払方法・銀行振込・クレジットカード◎ご注文方法当店公式LINE、またはメールにてご注文ください。シモダの連絡先を知っている方は、シモダに直接ご連絡いただいても構いません。*店頭での受付も可能・LINE(お友達追加)https://lin.ee/7An49Zy・メールcorneille1013@gmail.comご注文の際は、下記をお知らせくださいませ。<プリンの通販について>・お名前・お電話番号(必ず連絡が取れる番号)・お届け先の郵便番号・お届け先ご住所・ご希望のプリンの個数(4個〜)・お届け希望日(金曜日、日曜日のどちらか)・お届け希望時間(チルドゆうパック/午前中、12-14時、14-16時、16-18時、18-20時、19-21時、20-21時)・ご希望のお支払方法(銀行振込/クレジットカード)*ご注文者さまと、お届け先の方が違う場合、その旨も必ずお知らせください。————————————————————ご不明点、ご相談があれば、遠慮なくお気軽にご連絡くださいませ。どうぞ、よろしくお願いいたします。corneille下田 もっと見る
プリンの全国発送にチャレンジします!
2023/10/12 01:36プリンを作って販売できるようになり、8月には、ギャル曽根さんがブログでご紹介してくださり、おかげさまで、少しずつ広がっているなぁと実感しています。ギャル曽根さんのブログ↓https://ameblo.jp/galsone-we/entry-12815535131.htmlみなさま、ご存知のとおり、現在、プリンの販売は東京の「お店のみ」です。「プリンの通販できませんか?」「家族に送ってあげたい」など、たくさんの声をいただいていました。「小さな子どもがいるから」「家族の介護があって」様々な理由があって、ご来店が難しい方もいると思います。˗ˏˋ みなさんのお声に応えられたら ˎˊ˗何度も発送のテストをして、今のところ、全て大きな問題なく、届いています。「プリンの通販」を本格化するために、次の挑戦をすることにしました!このプロジェクトでは、先行してプリンを配送にてお届けいたします。今、私が考えていること。想い。全て、書いてみました。お読みいただけると嬉しいです。よろしくお願いいたします。corneille下田 有利10/13(金)12:00 公開「知る人ぞ知る、著名人もリピートする無添加のプリンを、よりたくさんの方に届けたい」https://camp-fire.jp/projects/703447/preview?token=1jhelu67&utm_campaign=cp_po_share_c_msg_project もっと見る






コメント
もっと見る