2024/3/18 追記
3/8から公開した今回のプロジェクトですが、有難いことに1週間で当初の目標を達成することが出来ました。
本当に沢山のご支援を頂き、自分が思っていたよりも多くの方が新しいお店に期待してくれていることを実感しました。
その思いを受け取れたことは、今後バーテンダーを続けていく上でとても大きな力になると思います。
改めて、厚くお礼申し上げます。
プロジェクトは3/31まで続きます。
皆さまにご利用頂く空間を少しでも心地良いものに出来るよう、最後まで頑張ります。
どうぞよろしくお願い致します。
初めまして。
バーテンダーの 山口つとむ と申します。
2023年3月まで、福岡県福岡市中央区 天神大名で「Bar望月」というバーを営んでいました。
21歳でこの仕事に就き、32歳でバーの居抜き物件を購入し独立。
それから9年が経ちました。
経営のいろはも分からないまま独立し、当初は日々の営業に追われる毎日でしたが、数年経ち独立した頃には思い描けなかった自分が表現したい世界
そのイメージが具体的になり、頭の中で溢れ出し、それを形にするべく、今回場所を新たにして新店舗を造りたいと思い立ちました。
「禅」の世界観を感じる。
「茶室」で頂くように、抹茶やお酒を愉しむ。
外の世界から切り離さた非日常を味わう。
扉を開けると広がる、清らかな「静」の時間。
そんな空間で、
特別なひと時を過ごせるバーを造ります。

「移転」ではなく、「改装」でのリニューアルも考えました。
しかし、
旧店舗では面積が十分ではない
街の雰囲気と目指すコンセプトが合わない
などの理由から改装は諦め、2023年3月に旧店舗を閉店。
そして今回ようやく条件に合う物件が見つかりました。
ですが、昨今の物価高による建築資材の価格高騰などにより内装工事費が想定より大きく膨らんでしまい、予定していた資金繰りだけでは実現が難しい状況になりました。
そこで、内装工事費の一部をクラウドファンディングで募らせて頂きたく、今回のプロジェクトを立ち上げました。
お酒作りは今と変わらず、今まで以上に、
良質な素材を丁寧に、
身体に極力負担が掛からず、
悪酔いをせず、
そんなお酒を楽しんでもらいたいです。
また、お酒が飲めない方にも気軽に来て頂けるようにカウンター越しに目の前で抹茶を点ててお出しする事で、茶室で頂くお茶の雰囲気を感じてもらいたいです。
そして今回新たに空間を0から作り込む事で、
より美味しく感じ、
より心地良い時間を感じ、
より高い満足を感じる。
そんな商品やサービスの「価値」を広げてくれるお店にしたいです。



CAMPFIRE手数料を除き、支援金は全て店舗内装・設備の費用に充てます。
内装工事費、カウンター板や椅子、照明機器、音響機器、空調設備、お手洗い等の設備など、皆様にご利用いただく空間を、より心地良いものにするため全て使わせて頂きます。
僕が表現したいものが
世の中に、皆様に、必要とされるのか。
それは正直分かりません。
でも、僕にはそれが必要だし、
皆様にも必要であって欲しい。
必要とされる世の中であって欲しい。
そんな、勝手わがままな思いから
立ち上げたプロジェクトですが、
応援して頂けると幸いです。
最後まで読んでいただき、
ありがとうございます。
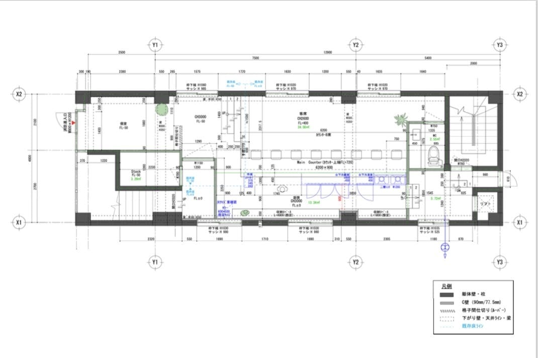
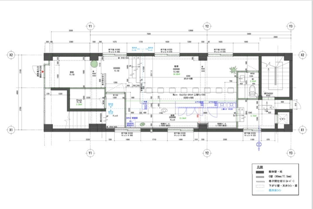
新店舗名:茶の湯/bar 楚々(そそ)
住所:福岡県福岡市中央区平尾2-1-17-3F
営業時間:15:00〜翌1:00
アクセス:地下鉄七隈線 薬院駅より徒歩11分
西鉄平尾駅より徒歩6分
<募集方式について>
本プロジェクトはAll-in方式で実施します。目標金額に満たない場合も、計画を実行し、リターンをお届けします。
最新の活動報告
もっと見る
新プロジェクト始動!
2025/08/06 13:56昨年は 茶の湯/bar楚々 出店の為のクラウドファンディングにご支援を頂き、誠にありがとうございます。皆さまのおかげで無事に出店が叶い、2025年8月11日に開店1周年迎えます。そして今回、開店1周年を記念して当店オリジナルのお香を制作し、クラウドファンディングの新プロジェクトにて個数限定で先行予約販売をさせて頂きます。ひとつひとつ手作業で丁寧に作られる今回のお香。心落ち着く「和と木の香り」で、皆さまの日常にひとときの特別な時間をお届けします。プロジェクトの公開は8/9(土)13時を予定しており、下記にURLを記載しております。当店オリジナルのお香を是非お試し下さい。よろしくお願いします。https://camp-fire.jp/projects/868240/view?utm_campaign=cp_po_share_c_msg_mypage_projects_show もっと見る
プレオープン
2024/08/09 11:322024.8/8無事にプレオープンを開催する事が出来ました。ご招待のお客様のみでの会でしたが、皆さまの楽しんで頂けている姿を見られて、嬉しさと安心感が湧きました。クラウドファンディングのプロジェクトを公開したときには、お店はまだ影も形もなく僕の頭の中だけにある空間でしたが、ようやく皆さまに体験して頂ける形に出来上がりました。正式なオープンは8/11(日)15:00からとなります。新店舗で皆さまにお会い出来る事を楽しみにしています。 もっと見る
1日限りのライブペイント
2024/08/01 10:17先日、内装工事中の壁にペイントをするイベントを開催しました。友人の緻密画アーティストが協力してくれて、壁紙を貼れば消えてしまう場所に、ただ1日だけの為に素敵なアートを作ってくれました。アートは消えてしまいましたが、あの瞬間でしか作れない一生の思い出が出来ました。当日の告知にも関わらずご参加頂いた皆さまも、本当にありがとうございます。今月はいよいよオープンとなります。良いお店になるよう引き続き頑張ります。 もっと見る








コメント
もっと見る