
みなさまはじめまして!
株式会社きちみ製麺です。2027年で130年の歴史を迎える白石温麺(う一めん)の会社です。白石温麺業界で初めて機械製造を導入するなど、業界のリーディングカンパニーとしてチャレンジを続けてきました。
温麺(う一めん)は宮城県、特に仙南地域ではだれもが知っている乾麺(白石温麺、うどん、そば、中華めん)で、きちみ製麺は温麺(うーめん)の製造・販売を行っています。
今回のプロジェクト宮城県白石市に本社のとなりにある直売・飲食店「光庵」の大リニューアル工事です!



現在、乾麺市場は1000億円規模と言われています。しかし、その内温麺(うーめん)製造会社は白石市に、現在5社しか残っていません。その中の1つが、1897年創業の「きちみ製麺」です。

温麺(うーめん)の特徴は江戸時代から続く伝統的な製法で作られ、油を使わず、油の酸化がないため胃に優しいのが特長です。
温麺(うーめん)という名称は歴史的に、「胃病を患っていた父に食べさせたところ、病気がみるみる回復した。」この話を聞いた城主・片倉小十郎が味右衛門の温かい心をたたえ「温麺」と名付けたという逸話が残っています。
きちみ製麺の「つりがね印」は、伊達政宗公の重巨である片倉小十郎公の
旗印を商標としてお許しを頂いたものです。
2027年で130年の歴史を迎えるきちみ製麺の白石温麺。伝統の技術と新しい発想を融合させ、常に時代のニーズに合わせた商品開発を行ってまいりました。
【光庵の歴史と役割】
白石温麺(うーめん)の「聖地」として知られるのが「味見処 光庵」です。
昔ながらの茅葺き屋根が目を引く建物は片倉家の御祐筆として名を知られた吉見(きちみ)家が15代にわたり、土地とともに大切に過ごしてきた場所であり、現きちみ製麺会長が高校生まで住宅としていた武家屋敷です。
昭和50年頃(奥に写る建物が光庵)
令和6年現在の「味見処 光庵」

「光庵」は白石市でも最古の建物の一つとされ長い歴史と文化が息づく場所として地元の方々や観光客から親しまれ、年間2万人を超えるお客様がいらっしゃいます。地域の歴史や文化を後世に伝える上で非常に重要な場所となっています。
旧きちみ製麺工場
今回の「光庵」のリニューアルは、400年の伝統を未来につなげるための重要なプロジェクトです。
現代の多様化した食文化や白石市の観光需要に対応し、より多くの人々に白石温麺の魅力を知ってもらうことを目的としています。地域外からの観光客を増やし、白石市全体の観光振興にも寄与することが期待されています。
ミシュランガイド宮城2017特別版
【光庵が生まれ変わる理由】
「光庵」の再生は、白石温麺の伝統を守りつつ、次の世代にその魅力を引き継ぐための大きなステップです。単に施設のリニューアルにとどまらず、地域文化の継承と新たな価値創出のための活動を通じて、白石の活性化にも貢献します。
「江戸時代から続く」"白石温麺"を「江戸時代に作られた」"光庵"でお召し上がりいただくことは、時代を超えて伝統を感じていただく唯一無二な場所であると信じています。伝統と未来が共存する空間として、新たな「光庵」がどのように生まれ変わるのか、ぜひ皆様も一緒に見守っていただき、さらに白石温麺の歴史とともに歩んできた光庵を未来に残していくために、皆様のお力をお貸しください!



イメージ
イメージ
-------------------------------------------------------------------------
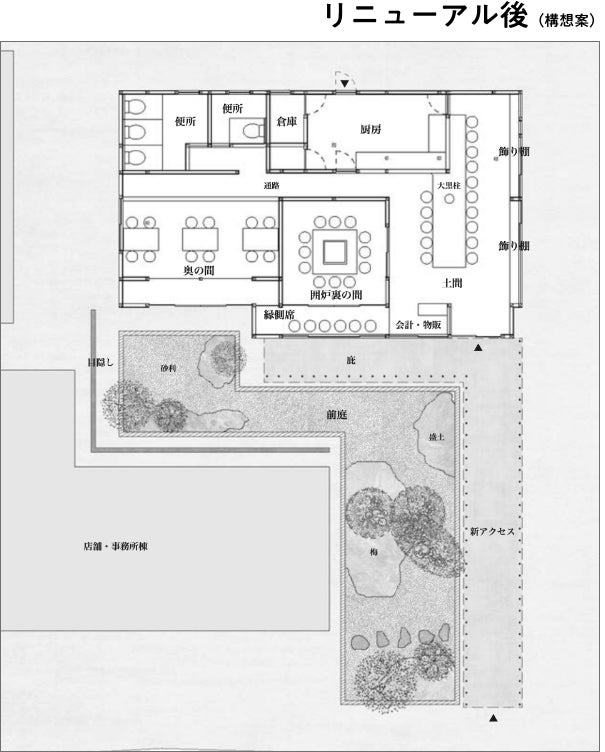
【具体的なリニューアル内容】
・28席→40席まで増設します。
・年間2万人訪れるため、観光シーズンの待ち時間が長く、外でお待ちいただくこともあり、夏場などは暑いため、スペースを確保します。
・四季折々の風情あるお庭もあつらえ、ゆっくりとお食事を楽しんでいただける空間づくりをします。
・お客様にお待たせせず、本来の食を楽しんでいただけるお時間を最大限にするため最新の調理設備を導入し、より美味しく、より効率的に料理提供できるようにします。
・・・など
-------------------------------------------------------------------------








今回の光庵リニューアルの目的は、建物の利便性向上だけではなく、改修後の「光庵」は白石温麺を通じて白石市の魅力を発信する観光拠点としての役割を担うことが最大の目的であり、白石城や鎌先温泉などの観光スポットと連携し、白石市全体の観光振興に寄与することを目指します。
◆パートナー◆
企画/株式会社KOMORU
設計/ Shotaro Oshima Design Studio
既存建物の歴史と風格を残しながら、光庵の新たな姿を一緒に考え、設計を行なっています。
◆パートナー◆
庭師/株式会社庭一(よっちゃんの庭工房)
宮城県白石市に拠点を構える。数々の賞を受賞する東北を代表する造園会社。光庵とともに100年後にも残る庭の制作を依頼しています。
◆パートナー◆
クリエイティブ/Steve* inc.
光庵のリニューアルに際し、今後400年を考えた際にきちみ製麺としてのあり方を検討するため、温麺の商品はもちろん、白石温麺の伝え方などを一緒に再設計しています。
白石城は、仙台城の支城として、伊達家家臣・片倉氏が代々居城し白石市のシンボルとして親しまれています。光庵はそんな白石城から徒歩8分。白石市の観光地の中心に位置しています。
工房の職人の手によって一本一本丁寧につくられる「手延白石温麺」を「光庵」でご賞味いただけます。

各種リターンをご用意しております。
遠方の方やご来店いただけない方もご郵送のリターンも準備しておりますので、ご家庭で楽しんで頂けますと幸いです。店舗にご来店いただける方はぜひご来店をいただけると幸いです。
温麺を食べて応援よろしくお願いします!


【スケジュール】
2024年 11月頃 クラウドファンディングスタート
2025年 1月頃 初売り・さよならイベント
クラウドファンディング終了(リターン発送)
着工
2025年 2月頃 工事終了
2025年 3月頃 光庵グランドオープン(予定)
2025年 4月頃 白石城桜ライトアップ(このタイミングで是非お越しください。)
2025年 5月頃 リターン発送期限
【資金用途】
本リニューアルプロジェクト総工費として、約3000万円の一部にクラウドファンディングの資金を充てさせて頂きます。
◆外構計画
①壁の撤去 ②梅の維持 ③松の移植 ④アクセス性の向上 ⑤庭のデザイン ⑥建物の視認性調整 など
◆室内計画
①既存スペースの改装 ②家具壁床の刷新 ③室内回遊性向上 ④暖房等の拡張 ⑤囲炉裏スペースの茅葺の維持 ⑥間仕切り壁開口部の変更 など

文化庁 全国各地の100年フードより
白石温麺は、文化庁が多様な食文化の継承・復興のために取り組む「100年フード」の中に令和5年度に認定された品として認定されています。
この「100年フード」プロジェクトは全国各地に根付く伝統的な食文化を守り、次世代に伝承・復興することを目的とした文化庁の施策です。
白石温麺が認定されたことは、その食文化の歴史的、文化的価値が高く評価されていることを示しています。

今後、「光庵」を核にして、次世代に白石温麺の文化を伝えることは、宮城県白石市で100年以上にわたって白石温麺の製造・販売を行ってきた私たちの使命だと思っております。
皆様からのご支援は、これからの地域の歴史を守る大きな一歩となります。

きちみ製麺は、これからも伝統を積み重ねてまいります。
応援いただけると幸いです。
きちみ製麺 一同
最新の活動報告
もっと見る
ついに!つりがね庵オープン!ありがとうございます。
2025/03/28 10:16皆様おかげさまで昨日竣工を迎え、グランドオープンを致しました。400年の伝統を未来へ!白石温麺の聖地「光庵」が「つりがね庵」として、生まれ変わりました。下記にて当日の様子がニュースに掲載されておりますので、ぜひご覧ください。https://news.yahoo.co.jp/articles/4adfd97cbfda6a34ad20f84da7f686256c1b14ce もっと見る
【お知らせ】クラウドファンディングにご支援いただき、本当にありがとうございました!
2025/02/05 19:00皆さまへ改めまして、この度はクラウドファンディングにご支援いただき、本当にありがとうございました!おかげさまで、目標を大きく超える3,126,000円ものご支援をいただき、無事プロジェクトを終了することができました。心から感謝の気持ちでいっぱいです。現在、「光庵」の改修工事は順調に進んでおり、着々と生まれ変わりつつあります。工事の様子はX(旧Twitter)やInstagramで随時発信していますので、ぜひ覗いてみてください!▼X(旧Twitter)@kichimiseimenhttps://x.com/kichimiseimen▼Instagram@kichimi_hikarianhttps://www.instagram.com/kichimi_hikarian/また、ご支援いただいたリターン品の発送は一部を除き3月頃を予定しております。楽しみにお待ちいただけると嬉しいです!これからも「光庵」を通じて、白石温麺の魅力をたくさんの方に届けていけるよう頑張ります。皆さまとお会いできる日を楽しみにしておりますので、今後ともどうぞよろしくお願いいたします!きちみ製麺 一同 もっと見る
ご支援していただいた皆さまへ
2025/01/07 23:30「ご支援していただいた皆さまへ」このたびの「光庵」大改修プロジェクトに多くのご支援を賜り誠にありがとうございました。おかげさまで目標金額を達成し無事クラウドファウンディングを成功させることができました。「古い建物」って、ただそこにあるだけで不思議な力があります。ここで誰かが何かを思い、何かを話し、時間を積み重ね、そんなひとつひとつを茅葺屋根の匂いとか、扉が開く音とか、風の通り方とかに全部染み込ませながら時代を超えて生きてきたんだなぁ、と。これからもそんな場所として「伝統を受け継ぎながら新しく作っていきたい」と思ったのがこのプロジェクトの始まりでした。 誰かがここで何かを始めて、また次の誰かに自然と続いていきます。 そういう循環の場所になれたら、と。ただ、私たちだけで実現できるものではありません。計画を立てながら、「本当に形になるだろうか」と考えることも。それは未知の可能性を前にしたわくわくした気持ちだったのかもしれません。そしてその可能性を現実のものにしてくださったのが支援してくださる皆さんです。皆さんのお気持ちと力が加わり、「光庵」は再び息を吹き返していきます。白石温麺の香りが漂い、これから多くの人にとって特別な場所となることを祈っています。「きちみ製麺」と「光庵」は、またあたらしい時間を重ねていきます。 茅葺屋根が音をたてるくらい風が吹く日も雨が続く日も、天気がよい日もそこに誰かがいてうーめんを食べながら自分らしく、気分良く、いたわりあうそんな時間を思い描いていると、未来が優しく感じられます。支援してくださった皆さんにも、そんな時間をあたらしくなる「古い建物」で過ごしていただけたら嬉しいです。また、「光庵」でお会いできる日を心待ちにしております。㈱きちみ製麺一同 もっと見る




コメント
もっと見る