自己紹介
私は、ブルームプラス合同会社の花等寛将(かとうひろゆき)と申します。30年以上フィットネスに関する事業に従事しております。
「花を咲かせ、さらに次の花を咲かせるための種を生み、未来の花へとつなげていく。」代表名からインスピレーションを得て社名・ロゴに込められた企業理念です。
人々の生活リズムや考え方が大きく変革する時代と共に、常に進化した商品・企画を提案できるよう日々勉強と努力をしてまいります。
このプロジェクトで実現したいこと
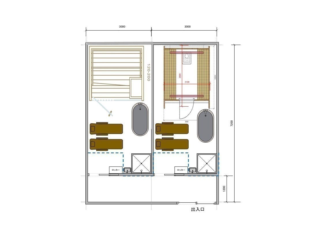
◎プライベート感を追求し、万全のセキュリティが整った安心・安全の個室型サウナ「ととのうBOX」を、地元山形で開業したい!
◎「サウナ浴=心身ともに健康」・山形を起点に全国へ発信したい!
◎サウナ浴を楽しめる場をもっと増やしたい!
サウナ個室、水温水質管理(チラー)の付いた水風呂、寝椅子、シャワー、女性に人気のコラーゲンLEDライト、セキュリティシステム、安全システムが個室に整備され、且つ複数完備された個室サウナを手軽に利用できる、究極の「ととのう」を満喫できるプライベートサウナ空間は他にございません。地元山形にてそれを実現させたいと思っています。そして山形を起点に全国へ発信展開していきたいと考えております。
全国に立地するホテル、オフィスビル、フィットネスクラブ、スイミングスクール、倉庫、アパート、マンション、商業施設、カラオケボックス、その他不動産関係などの、空きスペース、使われていない部屋、稼働率の悪い客室や部屋・会議室等の多種多様な施設のエリアを、リニューアル改修を行い、利益を生むエリアへと変貌させます。
不特定多数の方々が大勢で入るサウナではなく、「もっと手軽に、マイペースで、一人で静かに、安心して、安全に、」サウナ浴を楽しめて心身共にリラックスし健康になれる施設を開業したい。「ととのう」文化が浸透しサウナが新たなライフスタイルに一部に定着する傾向にあり、サウナを楽しむ方々が急激に増えてきております。今後、近隣に手軽にプライベートサウナ浴を楽しめる施設があるという事は非常に重要と考えます。その急激な需要にお応えしていきたいと考えております。
※サウナがある大規模な温浴施設を造るには、大規模な「土地」と「お金」と「時間」が必要です。この個室型サウナ(ととのうBOX)は、既存施設を改修し、それに見合う資金と、短時間で開設が可能です。実現可能なプロジェクトです。
プロジェクト立ち上げの背景
コロナ過以降、感染症対策やプライバシーの確保を重視するようになり、個室又はプライベートな環境を求めている方が増えております。この傾向は、社会的距離を保つ必要性や人混みを避けたいという消費者の心理が反映されています。
個室型でプライベート感を追求した施設を提供すればいいのでは、との思いから個室型サウナ(ととのうBOX)の企画開発(特許申請、商標登録)に至りました。
現在の準備状況
施設の設備構成と仕様、オペレーションなど細部まで内容はまとまっております。物件次第ではありますがすぐにでも出店できる段階にあります。
リターンについて
支援して頂ける金額によってリターンも変わってきます。
①利用券(1時間/回)の提供
②サウナ用レンタル利用券(ハット、マット、水着、タオル)の提供
支援金額
10,000円(①1回分/②1回分)
20,000円(①2回分/②2回分)
30,000円(①3回分/②3回分)
50,000円(①6回分/②6回分)
100,000円(①12回分/②12回分)
200,000円(①24回分/②24回分)
300,000円(①36回分/②36回分)
スケジュール
2025年7月 クラウドファンディング終了
10月 物件の契約完了(物件探し3カ月)
10月 工事開始
12月~2026年1月 新店舗オープン
2026年2月 リターン発送
最後に
◎「ととのう」文化の浸透 ◎新たなライフスタイル ◎プライベートな個室環境 ◎衛生環境が整った施設 ◎セキュリティ対策 ◎安全対策 などのキーワードが挙げられます。この「個室型サウナ/ととのうBOX」は、まさに今後供給されるサウナ施設のスタンダードであり、日本に多くサウナ施設を広める起爆剤となるシステムと考えております。
また、人々の生活習慣の変化に合わせて迫りくる急激な人口減少と、コロナ感染症のようなパンデミックなどへの適応力が高く、空きスペース、使われていない部屋、稼働率の悪い客室や会議室等を、新たな命を吹き込み最大限に有効活用致します。これこそSDG'sに合致した持続可能な事業です。
是非、皆さまのご支援を心よりお待ちしております。






わぁ、あなたのプロジェクトは本当に素晴らしいですね!正直に言うと、あなたのアイデアにとても興味を持ちましたし、それには大きな可能性があると感じています。もっとあなたのプロジェクトについて詳しく知りたいです!集めた資金はプロジェクトの重要なステップに使われる予定だと読みましたが、このプロジェクトが完全に実現された場合、どのような変化が人々の生活に訪れると思いますか?詳細をお話しできることを楽しみにしています!もしよろしければ、私のプロフィールに記載されているメールアドレスか、メッセージでご連絡いただけるとありがたいです。もしかしたら、追加のサポートとして金銭的な支援ができるかもしれません。