自己紹介
はじめまして。特定非営利活動法人フードバンク福岡です。
私たちは福岡県内で食品ロス削減と食のセーフティネットの活動を行っています。
現在、活動拠点と備蓄倉庫の拡充のため移転を考えています。この移転にかかる費用の不足分を補うため、クラウドファンディングにチャレンジすることに致しました。
このプロジェクトで実現したいこと
「もったいない」をなくし「おすそわけ」をあたり前に
特定非営利活動法人フードバンク福岡は 2017 年より活動を開始し、企業や個人から使用しない食品を無償で提供いただく食品ロス削減の取り組みと、食べ物の必要な方へ無償で食品を提供する福祉活動の両面で課題解決ができる取り組みとして活動してきました。
多くの企業・個人の方の支援と積極的な取り組みのおかげで、2024年度には 381.5トンの食品の提供をしていただけました。
しかしながら2021年より活動の拠点本部としている現在の友泉亭本部(福岡市友泉亭)では食品の保管量(40トン)や配送(交通量)の面での様々な問題が持ち上がっています。
今回、JA福岡市さまのご好意により福岡市堤に冷蔵保管庫を含む80トン収容可能な倉庫付き事業所を設立することになりました。これにより余裕のある保管量と各事業所への迅速な配送・入荷が可能となります。
この移転・改修にかかる費用のうち、100万円を皆様からご支援いただきたいと考えています。
現在の準備状況
日々の支援活動と並行して移転の準備を進めています。
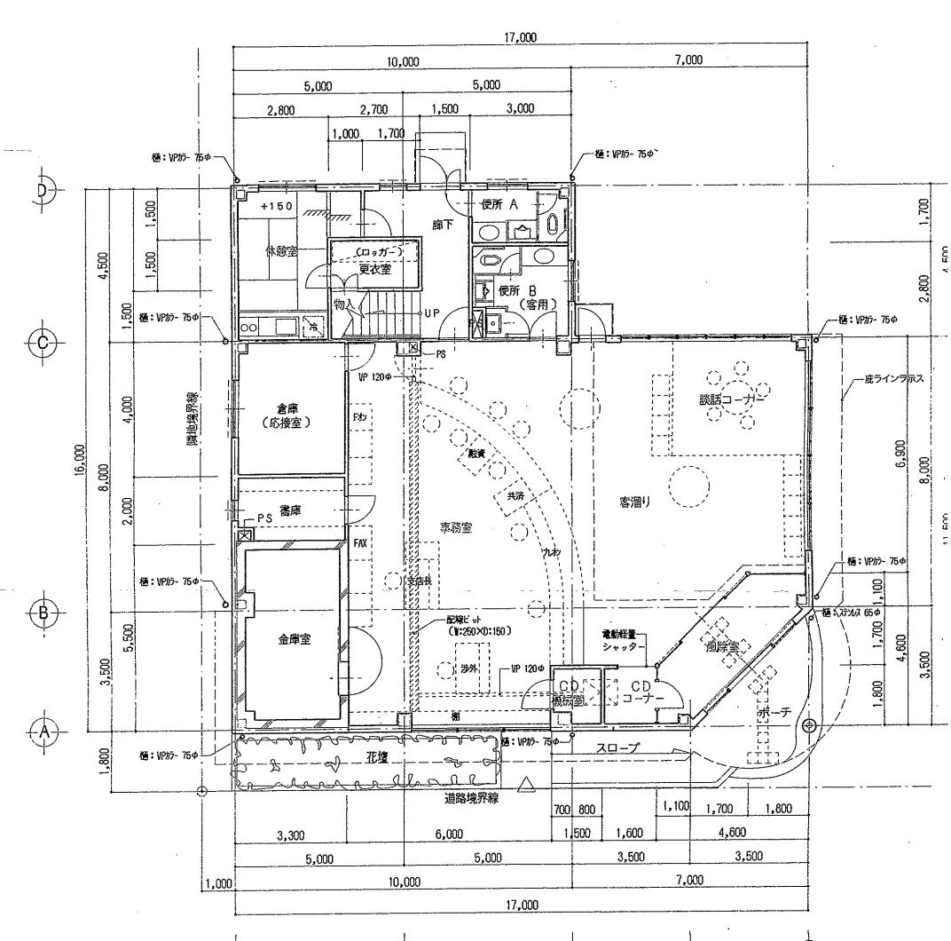
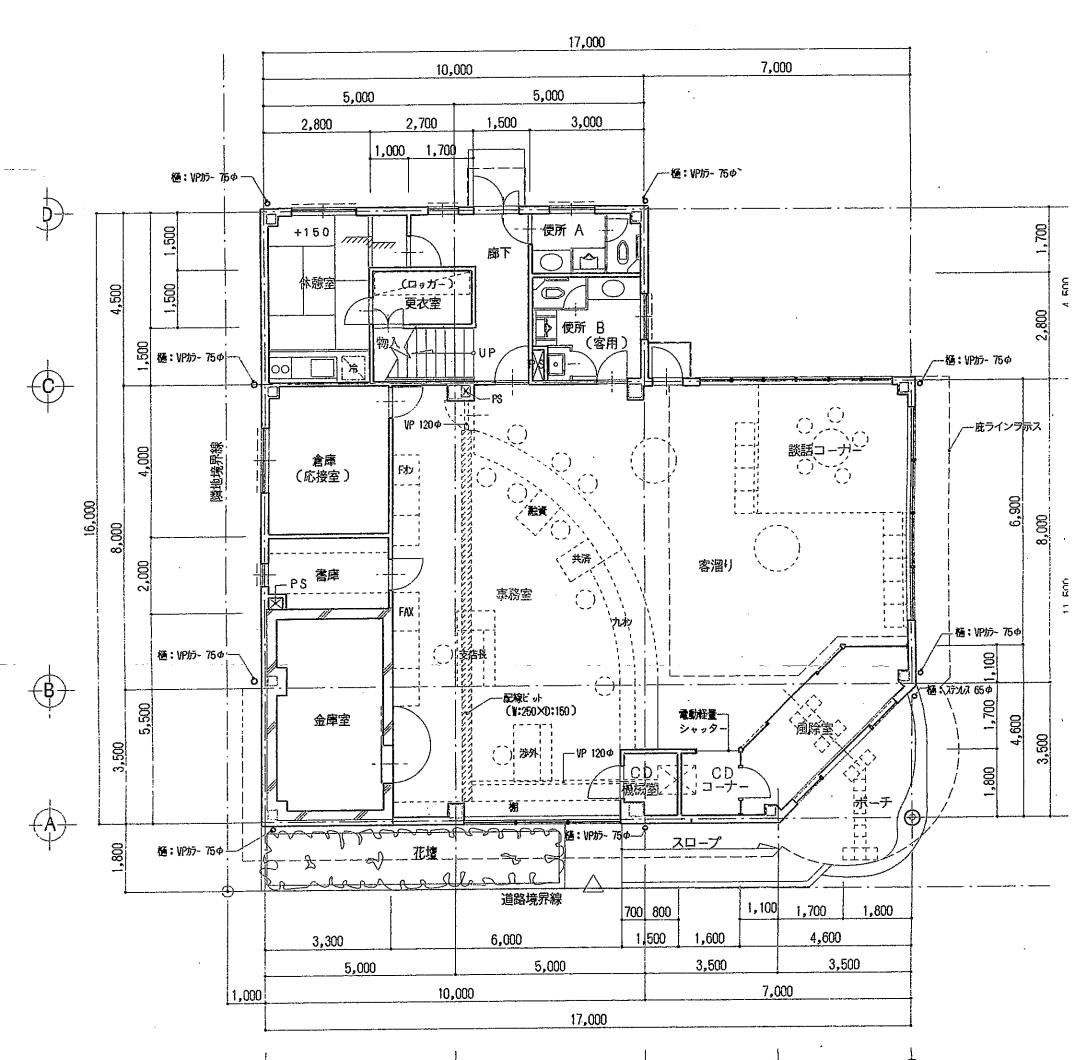
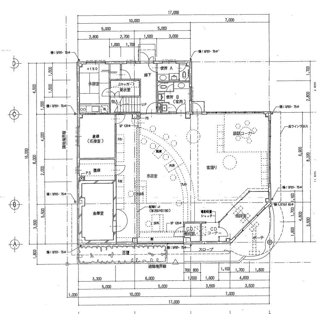
移転予定の建物図面


リターンについて
新事務所・新倉庫が稼働しましたら見学ツアーを催したいと考えております。
私共の活動をぜひ、ご覧になってください。
※ご支援の金額に関わらず、リターンは全て同じ内容です。
※見学ツアーへの交通費や滞在費等は支援者様各自でご負担ください。
スケジュール
8月11日~ 事務所・倉庫移転
8月18日 新事務所・倉庫業務開始予定
8月31日 クラウドファンディング終了
9年29日 リターン新事務所・倉庫見学ツアー
最後に
増加傾向にある、子どもの貧困や生活に困窮する方々への支援を拡大・継続するために安定した活動が続けられるように皆様のご支援、ご協力をお願いいたします。
最新の活動報告
もっと見る改修・移転が完了し、新施設での食品配布をスタートしました
2025/09/01 12:03こちらの活動報告は支援者限定の公開です。








コメント
もっと見る