|TAHARA SAUNA|田原を想う25歳の「伊良湖温泉×本格サウナ挑戦」

現在の支援総額

146,000

14%

目標金額は1,000,000円

支援者数

13

24時間以内に13人からの支援がありました

募集終了まで残り

62

|TAHARA SAUNA|田原を想う25歳の「伊良湖温泉×本格サウナ挑戦」

現在の支援総額

146,000

14%達成

あと 62

目標金額1,000,000

支援者数13

自己紹介・経歴

はじめまして!愛知県田原市出身

TAHARA♨SAUNA / 田中です。


現在は名古屋のサウナ施設で修行しながら

“伊良湖温泉の魅力を広げ、田原市に本気のサウナを創る” という想いで準備を進めています。


体育大学卒業後、 IT企業へ。

「田原市を変える力をつけたい」

その一心で、違う世界に飛び込みました。


田原市にない価値を創り

“心と身体”を温める憩いの場所を創りたい一心で

クラウドファンディングに挑戦しています。



起業の決心がついた瞬間
「あなたの声を聞かせて」

2024年 田原市図書館の一角

2024年:田原市図書館の一角

「あなたの声を聞かせてください!」


私は見た瞬間に

「この声に応える大人でありたい」

これが「TAHARA♨SAUNA」の原点です。



どんなサウナ施設にしたいか?
いま田原市を生きる子どもたちにとって、青春の一つになるお店にしたい!

田原市民に愛され

観光客・サーファーにも愛される場所に。


そして地元を離れた若者が数年ぶりに帰省したとき「部活終わりによくTAHARA♨SAUNA行ったよな〜」とビール片手に語り合える。


そんな“青春の一つになるお店”を創りたいです!



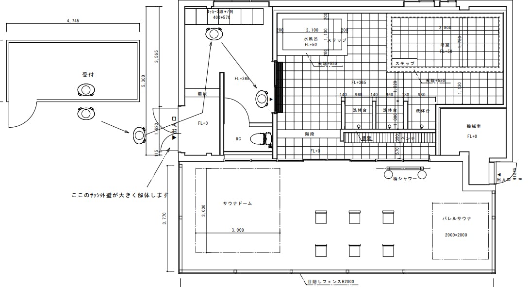
平面図

※本図面は現時点での計画案です。

■アピールポイント

本施設では、伊良湖温泉の恵みを最大限に活かしながら、ドーム型サウナやバレルサウナの導入を計画しています。


また、完成がゴールではなく、お客様の声に耳を傾けながら段階的に進化していくサウナを目指しています。将来的には脱衣所を改修し、室内にフィンランドサウナの追加投資を視野に入れています。


これにより、平面図左側からサウナ → 水風呂 → 内気浴・外気浴(ととのい)までの動線を完成させ、「また来たくなる」「育っていく」サウナとして、ロケット式に成長する施設を皆様と一緒に築いていきたいです。



導入予定設備

① テントサウナ「Sotoburo DOME12」

画期的なドーム形状により、ロウリュの蒸気が一気に天井へ広がり全身がやさしく包み込まれるような、これまでにないサウナ体験を実現します。


私自身はじめてこの「Sotoburo DOME12」に入った瞬間に「今までのサウナとまったく違う…!!」と衝撃を受けました。


熱さだけではなく

✔ 蒸気のまわり方 ✔ 呼吸のしやすさ ✔ 心地よさの持続感

「この感動を、田原市・豊橋市・豊川市の皆さんに“身近な日常”として届けたい!」そう強く思ったことが、本商品の導入を決めた理由です。

収容人数:12人

※本ページに掲載している製品画像は、メーカー様の許可を得て掲載しています


②サウナストーブ「HARVIA」

そして、このテントサウナを支える心臓部には、世界シェアNo.1を誇るサウナブランドHARVIA のサウナストーブを導入予定です。


圧倒的な存在感。容赦ない熱量。そして、機能美を極めた洗練されたデザイン。

HARVIAストーブ × Sotoburo DOME12の掛け合わせによって、“ととのい”の、その先へ導けると確信しています。


これまで田原市にはなかった「本格的なガチサウナ体験」をこのクラウドファンディングを通して、皆さまと一緒に創り上げていきたいと考えています。

※本ページに掲載している製品画像は、メーカー様の許可を得て掲載しています


③バレルサウナ

ここから先は、クラウドファンディングでのご支援額次第で実現を目指す構想となります。


TAHARA♨SAUNAのミッションは、「田原市を代表するサウナ施設を創ること。」


東京をはじめとする都市部には、富裕層向けのラグジュアリーなプライベートサウナが数多く存在します。


そんな施設にも真向から勝負できる田原市のサウナを、私と、東三河の皆様、全国の熱烈なサウナーの皆様の力を借りて創りたい野望があります。


このミッションを掲げるからには、ただサウナを創るだけではなく、“選べて、比べて、3セット整える” サウナを創りたいと考えています。

※バレルサウナとは、その名の通り「樽(バレル)」のような円筒形が特徴のサウナ。フィンランド発祥とされ、木材を円形に組み上げて作られており、熱がやさしく回り、長く入っていられる心地よさが魅力です。


<具体的な成長戦略:3つの異なるサウナを創る>

① sotoburo テントサウナ × HARVIA ストーブ(上記で触れた通り)

― 蒸気が一気に回る、没入感の高い最新テントサウナ。


② バレルサウナ × HUUM ストーブ

― 木の温もりに包まれ、やさしく深い熱を楽しめる屋外サウナ。


③ 王道の室内フィンランドサウナ × METOS ストーブ

― 日本のサウナ文化を支えてきた、安心感と安定感のある室内王道フィンランドサウナ。


■アピールポイント

一般的なサウナ施設では、ストーブメーカーを1社に統一するケースがほとんどです。


しかし「TAHARA♨SAUNA」では、あえて異なるメーカー・異なる個性のストーブを導入することで、熱の質、ロウリュの表情、体感の違いを、一つの施設で体験して、多店舗と差別化戦略をとります。


この挑戦は、皆さまの応援があってこそ実現できる未来です。どうかこの想いに共感していただき、応援・ご支援をよろしくお願いいたします。


③伊良湖温泉&水風呂

伊良湖温泉は、渥美半島の最南端・愛知県田原市で2020年に湧出した比較的新しい温泉です。


身体を芯から温めてくれるのが特長で、肌の古い角質をやさしく落とすことから「美肌の湯」とも呼ばれています。


✔ シニア層の皆様には、ゆっくりと長湯を楽しめる憩いの場として。

✔ 東三河の綺麗な女性には、レディースデイで美肌と心もリフレッシュできる場として。

サウナでしっかりと汗を流したあと、水風呂、そして締めの伊良湖温泉へ


──田原市ならではの、やさしく整う導線を実現します。



立地について

現在、物件については不動産業者様と最終調整中のため、正確な所在地の公開は控えさせていただいております。


そのうえで

■私が大切にした、3つの条件

① 田原市の中心街であること。

成章高校生、渥美農業高校生が学校終わりに通いやすいこと。


② 12時と17時のチャイムが聞こえる立地であること。

田原市民には聞き馴染みのある、昼と夕方のチャイム。あえてその音を、観光で訪れた方にも聴いてほしいと考えました。このチャイムは2カ月ごとに楽曲が変わり、四季を感じられるのが特徴です。その音楽に包まれながら外気浴でととのう──そんな田原市でしか味わえない体験を届けたい、という強いこだわりがあります。


③ 外気浴から蔵王山が見える立地であること。

外気浴スペースにはマジックミラー(通行人から見えない特殊なガラス)の導入を計画しており、田原市の象徴・蔵王山の景色を楽しめる設計を目指しています。

サウナでととのいながら、耳ではチャイムを、目では蔵王山を感じる──

それが、私の思い描く「TAHARA♨SAUNA」の絶対立地条件です。



外装デザインについて

TAHARA♨SAUNAの外装には、私の実家に使われていた「梁(はり)」を再利用する予定です。


この梁は、**明治39年(1906年)に先祖が建てた実家で使われていたもので、119年にわたり、家族の暮らしを支えてきました。


私は田中家の8代目にあたり、初代は文化6年(1809年)に亡くなったと伝えられています。文化・文政・天保を経て、明治・大正・昭和・平成、そして令和へ──時代を越えて受け継がれてきた梁です。

2025年12月、実家はやむを得ず解体しましたが、そこで役目を終えるはずだったこの梁に、新たな命を吹き込みたいと考えました。

田原市の偉人である 渡辺崋山 が生きた時代にも存在していた梁を使い、それは形を変え、TAHARA♨SAUNAの外観として生まれ変わります。



このクラウドファンディングで実現することは
田原市中心部に「TAHARA♨SAUNA」オープン!

2026年上半期、田原市中心部に「TAHARA♨SAUNA」をオープンします。


起業に伴うリスクはすべて、代表である私が負う覚悟です。


【返礼品】として開店後の入館料1回分からご用意しているので、応援していただけたら、本当に励みになります。


“最後の一押し”を、どうか皆さまのお力で支えていただけたら嬉しいです。



☆プロジェクト応援者への返礼一覧☆

◆【TAHARA♨SAUNA応援プラン】 ¥800

愛知県田原市を応援したい方へ、TAHARA♨SAUNAには行けない方へ


◆【入浴券 1回分 + OPEN記念ステッカー】¥1,500

入浴券1回分つき。まずは気軽に応援したい方へ

また、支援への感謝の気持ちとして、支援手数料相当分の OPEN記念ステッカーをお付けします。


◆【MOKUタオル×プレオープン先行体験】¥5,000


TAHARA♨SAUNA の世界観を詰め込んだ MOKUタオル×先行体験セット。お好きなカラーを5色からお選びいただけます。



◆【支援者ネーミング刺繍付き今治サウナハット×先行体験】¥8,000


世界に一つだけの支援者のネーミング刺繍が入ったサウナハットを作れる クラファン限定返礼品


◆【先行体験×MOKU×支援者ネーミング刺繍付き今治サウナハット】¥12,000


世界に一つだけの支援者のネーミング刺繍が入ったサウナハット+MOKUタオル+先行体験つきの全部セット


◆【入浴回数券5枚×MOKU×支援者ネーミング刺繍付き今治サウナハット】 ¥18,000


世界に一つだけの支援者のネーミング刺繍が入ったサウナハット+MOKUタオル+回数券5枚つきの最上位グッズセット


◆【中サイズ|名前(会社名)彫刻プレート掲示】 ¥15,000


あなた(貴社)の名前が TAHARA♨SAUNA の“顔”として残る特別返礼品

受付メインウォールに彫刻+入浴券1回分


◆【大サイズ|名前(会社名)彫刻プレート掲示】 ¥30,000


あなた(貴社)の名前が TAHARA♨SAUNA の“顔”として残る特別返礼品

受付メインウォールに彫刻+入浴券1回分+希望者はSNS・HPなどのQRコード設置が可能


◆【森の“整い椅子”サポーター枠|限定15名】 ¥50,000


この返礼品について 誰かの「ととのった…」を生む椅子に、 あなたの名前が刻まれます。

整い椅子への木製プレート掲示 +入浴回数券 3枚 +あなたの希望の一言

(彫刻例)山田太郎 Thanks Supporter 私にとってサウナとは、歯磨きのような存在です。


◆【TAHARA♨SAUNA 共創返礼|ロッカーに残す、あなたの一行】¥100,000


(刻印例) 坂本龍馬 「日本を今一度せんたくするぜよ」

※気になる方はリターン詳細をご確認ください。


◆【法人向け|メインサウナ命名権(1社限定)】 ¥400,000


TAHARA♨SAUNA の象徴となる メインサウナの命名権を提供します

ブランド価値向上、地域への貢献PRとしてご活用いただけます

 (命名例) 「◯◯◯ドーム SAUNA」



現在の準備状況

・設計士、不動産業者と最終調整中

・地元豊橋の 8hiko hair オーナー様より経営アドバイスを受けながら準備を進行中



設備資金 及び 皆さまとの資金調達計画の詳細共有

本プロジェクトでは、資金の使い道や経営戦略を包み隠さず共有し、支援者の皆さまと“ワンチーム(社中・仲間)”として施設を創り上げたいと考えています。少し長くなりますが、最後までお読みいただけましたら幸いです。


■【第一弾】クラウドファンディング

・実施期間:12/28 ~ 2/28

・目標金額:100万円

・使用用途:伊良湖温泉設備(約500万円)

⇒ 伊良湖温泉設備工事費のうち、20%にあたる100万円を、クラウドファンディングで皆さまと共に達成したいです。


♠ 20%(100万円)を達成できたときNext GOAL について

皆様のお力をお借りし仮に第一弾 100万円を達成した場合、Next GOAL:200万円を設定します。

この追加資金は、以下設備の導入費用に充てる予定です。


  • ・サウナストーブ:約150万円

  • ・バレルサウナ:約150万円

・合計:約300万円

⇒ 33%(3分の1)にあたる100万円を、Next GOALで達成したいと考えています。


♠ Next GOAL達成に向けた具体的なリターン施策

Next GOAL達成に向け、以下のような「グッズを主流とした追加リターン」を展開予定です。

・クラウドファンディング限定Tシャツ

  • ・その他、魅力的なオリジナルグッズ

  • ・洗体台の鏡付近に設置する【企業様向け広告枠】.etc


♠さらに、リアルな話をします。

私が 2025年12月4日にInstagramへ投稿した「MY PROFILE」でも触れましたが、この施設のコンセプトは


「マクドナルドのように、1,000円前後でそこそこ満足できる施設。」


現在、多くのサウナ施設では3,000〜5,000円/2〜3時間 の価格帯が主流になりつつあります。それはサウナ業界にとって、とても素晴らしい流れだと思っています。それでも私が1000円前後の利用料金にこだわる理由は、田原市図書館で見た、田原市の子どもたちが原点です。


商売においては「甘い」ですが、私は原点を忘れず、田原市民にとって日常的に利用しやすい施設であり続けます。将来、もし利用料金が 2,000円を超える日が来たら、「選挙のときだけ綺麗事を言う政治屋・ペテン師」というレッテルを貼っていただいて構いません。


■ その入浴価格帯を実現するための、経営戦略の一つ

低価格を実現するため、グッズ販売(物販)領域については、開業後あえて相場より高めに価格設定する計画です。「観光客」など比較的金銭の余裕のある人だけが、入浴料+“グッズ”を手にして欲しい。


つきまして、クラウドファンディングのタイミングで、支援者の皆さまには少しでもお得に、そして応援の気持ちを込めてリターン(グッズ返礼品)を手に取っていただけたら嬉しいです!


【第二弾】クラウドファンディング(春開催予定)

・目標金額:150万円

⇒ 使用用途は居抜き物件の改装費 に充当します。


■ 覚悟を示します

「本当に1,000円前後の料金を守るのか?」

「口だけではないのか?」


そうした疑念を持たれるのは、当然だと思っています。このタイミングで、新卒2年目に購入したマツダ CX-5 を売却します。(査定額:約180万円)


自己資金を拡充すると同時に、私自身もリスクを取り、支援者の皆さまへ“覚悟”を示します。この愛車の売却で得た自己資金は、浴槽工事に充てます。



全体スケジュール
  • 2025年12月 第一弾クラウドファンディング

  • 2026年3月 物件契約締結

  • 2026年4月 第二弾クラウドファンディング

  • 2026年5月 店舗工事開始

  • 2026年上半期 「TAHARA♨SAUNA」プレオープン

  • 2026年上半期 グランドオープン

  • ※進行状況により変更となる場合があります。




最後に私の経営理念は
「田原市にないものを創る。」 

小学生の卒業文集には「田原市にバッティングセンターをつくりたい」と書きました。


あれから十数年。


“地元に無いものを生み出したい”“若者のニーズに応えたい”その気持ちは一度も揺らいでいません。

これは、私の理念であり、事業を続けるうえでの“志”です。


私の残り約60年の人生の費やし方は

今を生きる田原市民に、今はまだ存在しない

“新しい余暇の選択肢” を提供し続ける人生でありたい。


サイバーエージェントの藤田晋社長が24歳で「21世紀を代表する会社を創る」と掲げたように、私も「田原市を代表するサウナ施設を創る。」ことを宣言します。


この「TAHARA♨SAUNA」は


田舎で何もないと思われている田原市の未来を変える第一歩。


どうか、この挑戦を一緒に前へ進める力を貸してください!


最後までお読みいただき、心より感謝申し上げます。


田原社中 / 代表 田中 

支援金の使い道

集まった支援金は以下に使用する予定です。

  • 設備費

※目標金額を超えた場合はプロジェクトの運営費に充てさせていただきます。

支援に関するよくある質問

ヘルプページを見る

このプロジェクトの問題報告はこちらよりお問い合わせください

コメント

もっと見る

投稿するには ログイン が必要です。

プロジェクトオーナーの承認後に掲載されます。承認された内容を削除することはできません。


同じカテゴリーの人気プロジェクト

あなたにおすすめのプロジェクト

新しいアイデアや挑戦を、アプリで見つけるcampfireにアプリが登場しました!
App Storeからダウンロード Google Playで手に入れよう
スマートフォンでQRコードを読み取って、アプリをダウンロード!

24時間以内に13人が支援しました