2020/05/16 20:22

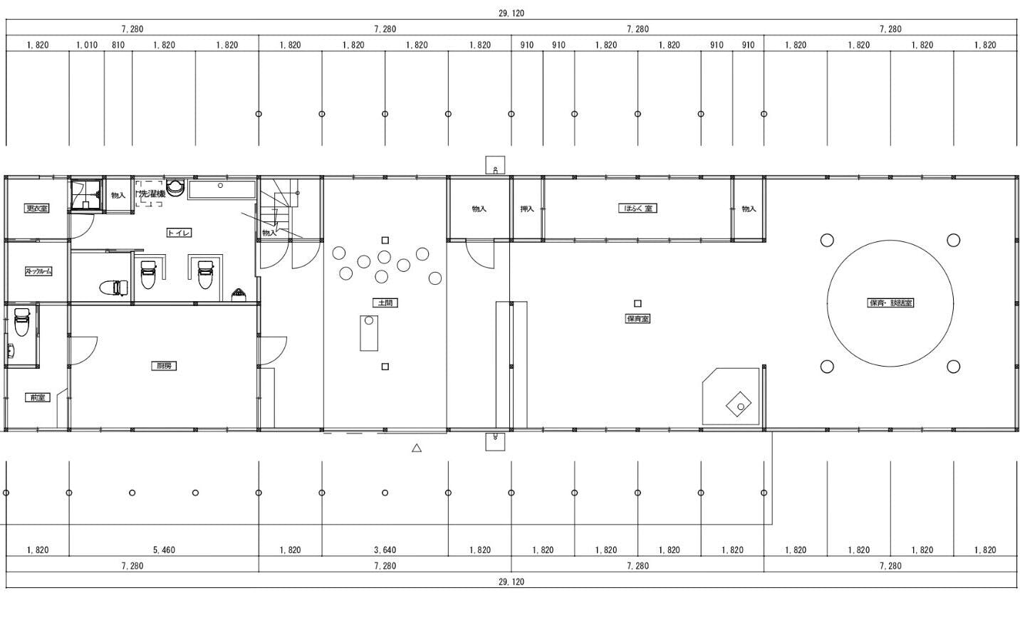
保育室の機能 あらゆる情報共有の場「土間」と じっくり語り合う寄り合い所「語り場」 の間に挟まれるのが、 子どもたちが生活する場所、 「保育室」です。
まだ未定ですが、 保育室は、子どもたちの興味関心に合わせ コーナーを設置し、 遊びに集中できるよう環境構成していきます。 特に、 人気の 「おままごとコーナー」は 子どもたちが 家庭生活の中で感じる 「リアル感」を出すために、 お皿の枚数から、家具、 棚まで、「ただある」 ものではなく、 家庭生活に即した形のものを 空間デザインして設置しようと考えています (例えば4人家族を想定した ダイニングルームの子ども版をデザイン)。
また、園舎テーマ「内なる森」の 一端を担う工夫の一つとして、 裏山から伐り出した 枝振りの良い木を設置し、 押入れ上に登れるよう 室内に「木登りチャレンジ」が できるように 大工さんと相談しています。
押入れ上からは、 ネットが梁上まで張ってあって、 「自分の力で木を登れた子」 は、 梁の上で寛ぐなんてこともできます。 まだ登れない子は、 登れる子の動きを観察し、 「憧れ」を持ち、 「いつか登ってやろう!」 という気持ちを募らせます。
最後に、 保育室には2代目の薪ストーブも 設置される予定です。 薪ストーブの周りの壁は、 この土地でとれる土を使って、 みんなで「土壁ワークショップ」 を楽しみながら、 手仕事で仕上げたいと考えています。 保育室は 子どもたちが主役! とにかくワクワクできるよう、 これからも弛まず、 保育室設計を考えてまいります。





