クラウドファンディングでの応募を始めて本日でちょうど一ヶ月ほど。 支援達成率が75%を達成致しました。 これで残るは1/4。 ここまでの経緯で一番人気なのはやはりシェアオフィスブース。ここがあっという間に埋まり、そこから1日利用+オープニングパーティーやコワーキングスペースレポートなど続々支援頂いている状態です。 なによりもありがたいのが、支援頂いている方に面識はないけれど「応援しているよー!」といって大切なお金を支援頂いていること。 しっかり支援頂いた分はこの場所の活性化に繋げていかなあかんなと。そしてワクワク、はかどるスペースにしていかなあかんなと。 達成までは残り1/4ですが、もし達成しても支援自体は9月一杯まではお受けしております。 「オープニングパーティー一人でいくのは…」という方もご安心を!おそらく半分ぐらいは初めましての方になるので、新しい輪を作っていただけるかと! ではでは、あともう一ヶ月頑張ってまいります!
おはようございます、今プラス管理人です。 「家買った人ってこんな気分なんだろうなー」となるぐらい毎日見に行っている今プラス。 大体古民家今プラスがはじまる13時前ぐらいに行ったりすることが多いのですが、そういえば夜の時間帯にいったことがなかったなと。 なので夜の時間帯にいくとどうなるのか・・・・。 真っ暗な中に、新しく天井が出来ているのがよくわかりました。 22時頃になると甲西駅の前もほぼ人通りが少なくてシーンっとしているのもなるほどなと。 新しい移転先では22時まで営業するのですが、その時間帯まででも駅前がちょいとでも明るくなればいいなーとか思っております。 ではでは。
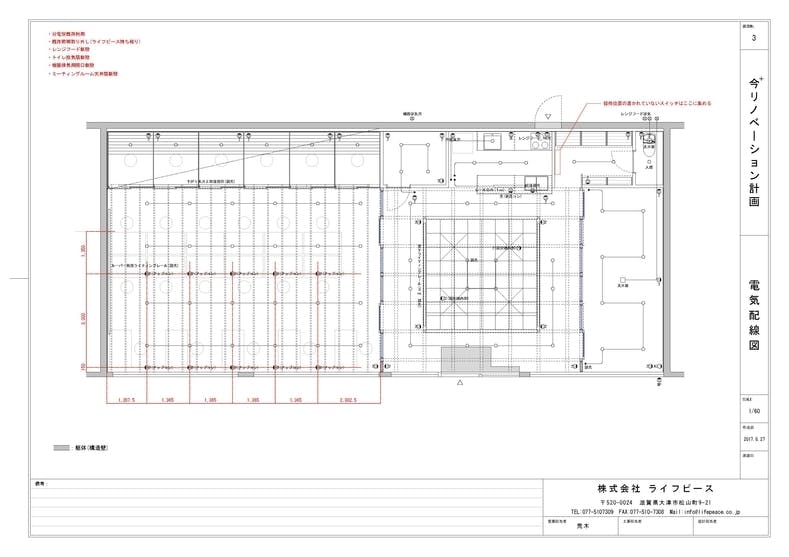
工事も真っ最中ということで、図面がいっぱいあがってきました。 電気の位置だったり。。。 基本的なサイズだったり。 また仕切りの断面図であったり。 天井部分もただクロス張り替えるだけだと面白くないということで梁がされるようなデザインとなります。 こうやって寸法としての数字があがってくるとまたより具体的にイメージできるようになるなーなんて思いつつ。 最近はこの図面見ながらニヤニヤしていることが多いのかも。 うむ、待ち遠しい。 ではでは。
現在工事真っ最中の今プラス。 この写真は奥の方から見ているときの風景。 先に作業に集中できるワークスペースの方から工事をすすめてはるようで、床部分や仕切りの部分が組まれておりました。 かなり期待しているのが仕切り部分のデザインでして、ここが無機質なオフィスっぽくならないように木を使用してもらいました。 ここからガラスがはまっていき、完全な仕切りができるころにはコミュニティスペースもまたよりイメージしてもらえる形になりそう! ではでは。
新しい今プラスではキッチンを設けております。 そのキッチン、飲食店の営業許可を取るために二槽式のシンクなども整えておりまして、それが今回のタイトルともなる一日シェフの役目を果たします。 一日シェフとは簡単にいうと「色々な方が料理を利用者に提供して実験的なお店をはじめられる」仕組みのことです。 移転先の今プラスではこの一日シェフの機能を下記の時間帯で実施できるようにします。 それがランチタイム(11時から14時)とカフェタイム(15時から18時)の2つ。 いずれも1000円の利用料を払っていただくことで、誰でも始めることができ、またそこで売り上げた売上はその方のものとなります。 この仕組み、そもそもは僕自身がお昼ここで仕事していて外にご飯食べにいくのもいいけど、今プラスで御飯食べられたらなーと思ったこと。 最終的にはキッチン&飲食店の許可という大掛かりなものとなりましたが、これから飲食系で新しいステップを踏み出したい人のお手伝いができる形なのかなと思っております。 ぜひ滋賀県や湖南市で飲食店始めてみたい…という方は実験的にもご利用頂ければ。 ではでは。



