志賀理和氣神社の新境内、「鎮守の杜」再建にご支援を!
「志賀理和氣神社」は盛岡市から車で40分ほど南下した場所に位置し、岩手県中央部を北から南に流れる一級河川「北上川」の河岸にある岩手県最古といわれる神社です。
創建は古く延暦23年(804年)、征夷大将軍である坂上田村麻呂が、東北地方の開拓の守護神を勧請して、創建されました。それ以来、1200年以上に渡って、この地域の守護と繁栄の象徴として崇拝されています。


境内の千年杉
北上川を背にして創建された「志賀理和氣神社」と鎮守の杜
しかし、平成に至り、「神社の移転」を突如迫られました。原因は地球規模での気候変動が、大雨や巨大台風を頻繁にもたらし、その結果、北上川でも甚大な水害の恐れがあったからです。そのため、地域住民の安全確保のために、新たな堤防建設が必要となりました。
長きに亘り神聖な場所に鎮座した本殿の移転は「断腸の想い」ではありましたが、平成30年に国が進める治水事業に協力し、神社は内陸へと全面移転することを決定しました。その結果、令和3年12月に新境内地に遷座されましたが、旧境内の鎮守の杜は移転できず消滅してしまったのです。
更地となった「志賀理和氣神社」
社殿の取り壊しの様子
伐採された鎮守の杜の木々
新境内は、旧境内から直線距離で300メートルほどしか離れていません。しかし、新境内には、かつて地域の子供達の遊び場であり、地域住民の憩いの場でもあり、神社を台風や大雨などから守ってくれた「鎮守の杜」はもはやなく、その喪失感は想像以上に深く、何とかこれを再生したいです。
新境内の様子(写真右側に本殿、中央は稲荷神社など)
写真から、「鎮守の杜」がないことで「新境内」は「旧境内」と比べて、とても寂しい感じで佇んでいるのがお分かりいただけると思います。
地域の憩いの場所であった「鎮守の杜」再生に向けて、神社関係者が何度も話し合い、再建に向けて一致団結することになりました。しかし、それでもかかる費用は予想以上のもので、私たちの力だけではどうしても十分な修復を行うことが叶いません。新しく千年続く「鎮守の杜」再生に向けて、どうぞご支援を賜りたく何卒宜しくお願い致します。
プロジェクトについて、もっと詳しく!
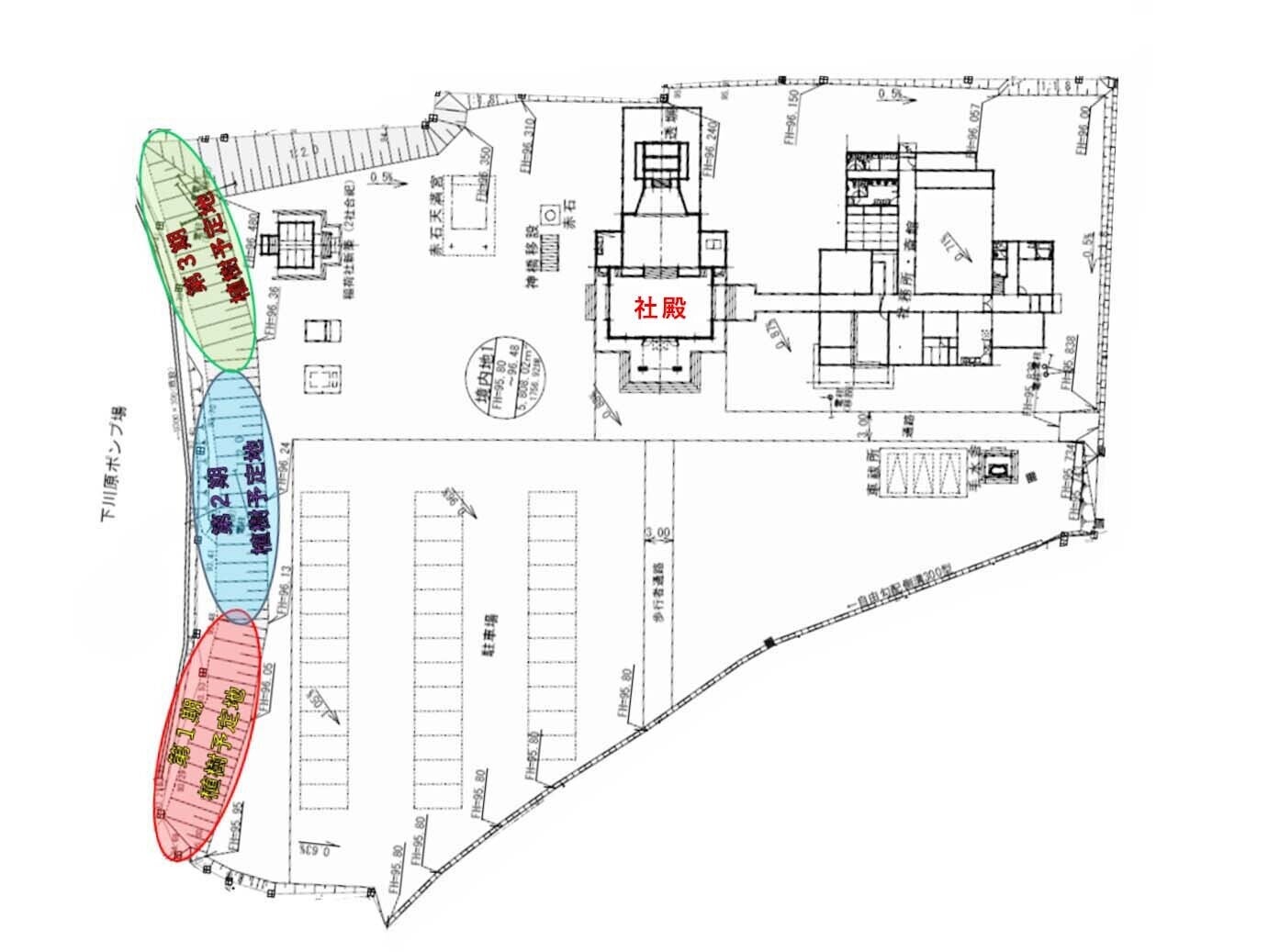
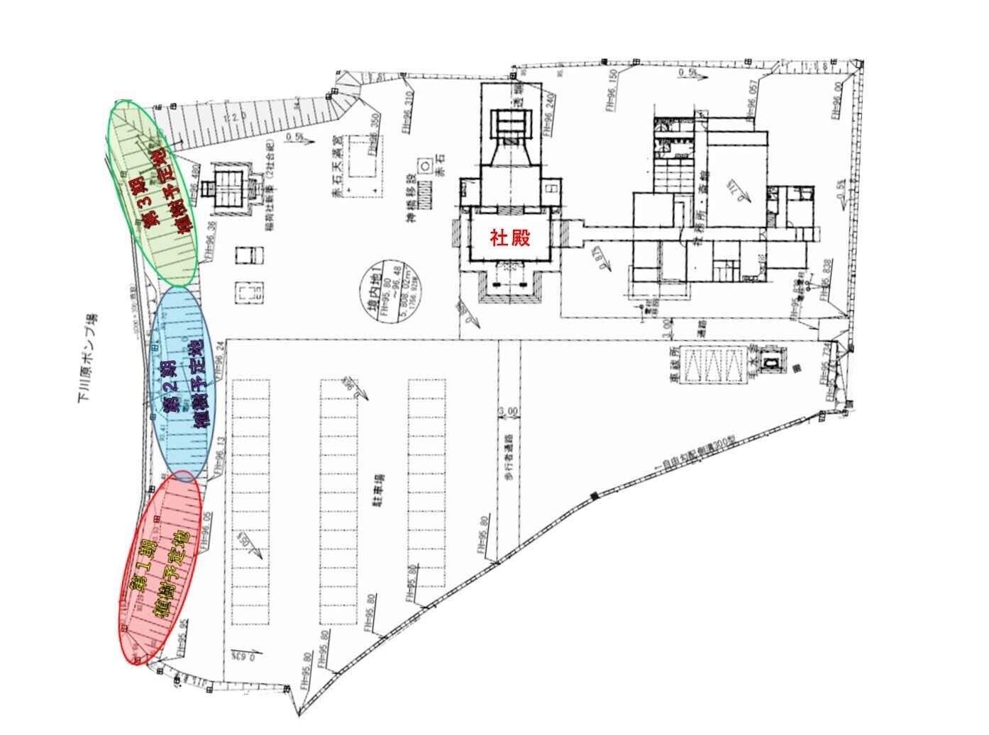
本プロジェクトの植樹は3カ年計画で進めていきます。具体的にはこれから千年続く「鎮守の杜」を作るために、植樹地を3つに区分し、その1区画ごとに400本ずつ木々を毎年植樹していきます。

神社本殿と植樹地域の完成予定図

志賀理和氣神社はどんな神社?
私たちのクラファンに深い関心をお寄せいただき本当にありがとうございます。
志賀理和氣神社の宮司の田村寛仁です。昭和63年9月2日生まれの35才です。
岩手県立不来方高校を卒業し、神職を目指すため國學院大學神道文化学部に入学、平成23年より神奈川県藤沢市の江島神社に奉職し、平成28年神社境内の移転事業を進めるため帰郷。志賀理和氣神社禰宜を拝命。令和3年12月に宮司の職を先代より引き継ぎ、本殿遷座祭より宮司として奉仕しました。妻と長女長男に恵まれ、子育てに励んでいます。
宮司夫妻と伐採された千年杉
当神社の歴史は今から1220年前、延暦23年(804年)にまで遡ります。その時代は平安時代と呼ばれ、京都を中心として天皇や貴族による政治や文化が花開いた時代です。
現代でも京都から岩手までの移動は相当の時間を要しますが、その当時、京都の人々にとって、東北は現在の海外旅行のように遠い遠い場所で、政権も及びませんでした。そして、京都の人々は東北に暮らす人々のことを蝦夷(えみし)と呼んでいました。
この時代に「天皇を中心とした統一政権を作る」という旗印の元に、この蝦夷征討の命令を受けたのが、征夷大将軍である坂上田村麻呂です。そして、遙か東北の地で、これを迎え撃ったのが蝦夷の若きリーダー・アテルイ。激しい戦いがこの地で繰り広げられたと言われています。
天皇の命令を受けた坂上田村麻呂も負ける訳にはいきません。
東北地方の征圧のために、「武運長久」、「必勝祈願」のご利益のある二柱の神様、経津主命(ふつぬしのかみ)と武甕槌命(たけみかづちのかみ)を香取神宮、鹿島神宮より勧請し、必勝祈願のために設立されたのが、当神社の創祀と言われています。
当神社の神々のご加護もあり、坂上田村麻呂は、蝦夷を平定することに成功します。後に、当神社には大己貴神(おおなむちのかみ)や少彦名神(すくなびこなのかみ)など、人々の生活を豊かにする国づくりの神様が勧請され、この地域の繁栄と守護の役割を千年以上担っていくことになります。
そして時代は室町時代になります。この地域の領主であった斯波詮直公(しばあきなおこう)は北上川の川底にあった「赤石」が川面に映り、川波が紫色に輝いて見えた様子にとても感動して「けふよりは 紫波と名付けん この川の 石にうつ波 紫に似て」と詠じて、この地を「紫波(しわ)」と定め、このことから町名も「紫波町」と名付けられています。北上川から引き揚げられた「赤石」は当神社に祀られており、地域の方からは「赤石さん」として親しまれています。

さらに時代は下り江戸時代に差し掛かりますと、盛岡藩主の南部氏は当神社を厚く崇敬されて、「南部一の宮」の号が献じられるほど、とても重要な神社として位置付けられました。
また近年では、恒例の祭りに加え、どんと祭での餅焼き、節分祭での豆まき、人形納謝祭への参列と奉仕、例大祭での餅まきなど子供たちが参加できるお祭りを増やし、若い世代との関わりも深めています。
創建以来1200年以上に亘って、志賀理和氣神社と「鎮守の杜」は地域の子供たちの遊び場であり、地域住民の憩いの場所として、ずっと親しまれてきました。
どんと祭
例大祭・宵宮祭 (例大祭の中の宵宮祭)
例大祭・宵宮祭 (例大祭の中の宵宮祭)
それではここからは
「なぜ、神社に鎮守の杜が必要なのか?」
「『鎮守の杜』は地域でどのような役割を担っているのか?」
という部分の詳しい説明を“鎮守の杜の守り人”の一人・神職の髙橋知明(東京・瀬田玉川神社禰宜)さんにバトンをお渡ししてお話ししていただきます。
左側 髙橋さん、右側 田村宮司
髙橋さんは東日本大震災による津波で、沿岸部にあった多くの松林が流出した一方で、神社を囲む「鎮守の杜」は流されずに、多くの家屋や家財を守った事例から、沿岸部に「鎮守の杜をモデルとした森の防潮堤」を作る活動を推進した一人です。
髙橋さんは5年間その活動に関わり、約40万本の苗木を多くのボランティアの皆さまと共に植樹しました。現在は髙橋さんが設立し、自らが代表理事を務める「一般社団法人第二のふるさと創生協会」で、各地で森づくり活動を展開しています。
それでは髙橋さん、宜しくお願い致します。
なぜ、神社に鎮守の杜が必要なのか?
こんにちは。髙橋です。
「鎮守の杜」という名前の由来にはその歴史的な背景があります。「鎮守」とはその地域を守ってくださる神々のこと。そして、その神々を守る森が「鎮守の杜」。ここには神々が降りたち、鎮まる場所だと、私たちのご先祖様は考えてきました。
だからこそ、日本人はこの場所を特に神聖さを感じ、神様に感謝の気持ちを捧げ、この土地での生活の安寧を祈りました。「鎮守の杜」は常に多くの生命が循環していて、瑞々しさ、青々しさを保つことで、神々が降り立つ清浄な空間を生んでいます。

そのため人々は、場所によっては森が荒れないように間伐したり、弱った木を切るなど、協力して森の手入れをして、森を育ててきました。手入れの結果、「鎮守の杜」から出た材木や薪は、お祭りに使われたり、時には社殿などを建て替える際に「鎮守の杜」から出た材木で賄うこともあり、森の資源を無駄にせず有効活用してきました。
このように日本人は「森を守り、育てていく仕組み」をずっと大切に継承してきたのです。「鎮守の杜」とは、日本人の自然観や文化そのものと言っても過言ではありません。
そして、この「鎮守の杜」は太古の昔からの原生林を今に残す場所も多くあり、貴重な在来の動植物がたくさん生息する「生命の宝庫」でもあります。





ノスリも棲んでいた
「もののけ姫」というジブリ作品をご覧になった方は、木々が生い茂った深い森の中にたくさんの動植物たちがいた事をご記憶の方も多いでしょう。
「実際に田村さんにお話を聞いたところ、志賀理和氣神社の旧境内には梟(フクロウ)だけではなく、狐の鳴き声もしたり、夏にはアオハダトンボがあたり一面に飛び回っていたりしたそうです。」
このような自然豊かな美しい森には、多種多様な在来の貴重な生物たちが棲家としています。
古代から、日本人はこの「鎮守の杜」と共に生き、人と自然が調和する、共存する知恵を学んで来ました。
御神木の切株から無傷で発見されたフクロウのたまご
しかし、現代は人間が森と上手な付き合いをしていく生活から距離が空いてしまったことから、昔の日本人が大切にしてきた森との共存の知恵を忘却してしまったかのようにも感じます。
私たちが忘れかけている「人と森との上手な付き合いのある生活」ということを、もう少し詳しくお話しします。
戦前の日本の山々には、「奥山」と「里山」という区域が存在しました。奥山は手つかずの原生林。多種多様な在来の動植物が生育し、水源を守り、山の保水力を高めるなどの機能がありました。
それに対して里山は、材木を育てたり、キノコを採ったり、炭を焼いたりと、人間の生活に必要最低限な恵みをいただき循環させる区域でした。
そしてこの奥山と里山の境界には、しばしば神社や祠が存在し「その先は侵すべからず」という戒めがありました。奥山は神々の聖域であり、戒めを無視するとばちが当たって自然のしっぺ返しがあるという、まさに先人の智慧がありました。

ところが戦争で全国が焼け野原になり、戦後復興のため拡大造林という国策で致し方なく奥山も里山化し、日本の山々は概ね林業の山になりました。その後、昭和40年代から外材が輸入され、国産材は徐々に売れなくなり、昭和50年代から一時隆盛を誇ったたくさんの材木店が倒産しました。現在の林業は、従事者が高齢化し後継者不足に悩む状態です。
林業が経済循環しにくくなった現在の日本の山々には、他にも課題があります。熊をはじめ野生動物たちが、危険を冒して里に下りて畑などを荒らすのは、山にどんぐりなどの彼らの食べ物が少なく、越冬や子育てをするのに、充分に栄養が摂れないためということも一因と考えられます。他にも、針葉樹の単層林から出る大量の花粉は、現代病の花粉症を生み多くの人々を悩ませています。
さらには気候変動の影響からか、毎年のように巨大台風が襲う時代になりました。特に西日本を中心に河川の氾濫など大変な被害が出ています。降水量が多くなった上、針葉樹は根が浅く保水力も低い単層林の山は、山津波とも言える土砂崩れを起こし、下流の河川では堤防を越える洪水被害も発生させています。
台風により崩れた針葉樹の単層林(撮影:西野文貴)
後継者不足により荒れてしまった林業区域
だからこそ、奥山を形成してきた「鎮守の杜」は私たち日本人にとって大切な存在であり、奥山と里山との上手なバランスを回復しないと、こうした課題は解決しないのではないでしょうか。
「鎮守の杜」は動植物と人間が調和して、自然と共存した素晴らしいお手本そのものです。この森を通じて、私たちは自分以外の他者との関係を大切にする「和の心」も育ててきました。
志賀理和氣神社は1200年以上も「鎮守の杜」を守り、地域の平和と安寧のために、神々に祈りを捧げてきました。神道における神とは、私たちの命を保証してくださる対象でもあります。
だからこそ、この土地にある雄大な自然だけでなく、人々の生活を豊かにした偉大な人物なども神と崇め、神社にお祀りすることもあります。
志賀理和氣神社の千年杉
神々がもたらした稲穂によって、人々はその地で安定的に定住できるようになり、命そのものが保証されました。ゆえに、稲作に関する祭りが全国の神社において古来から続けられてきたのも、その理由からです。
「鎮守の杜」がある神社の境内で、神々の恵みである獲れたての魚や新米を神々に捧げ、その年も豊かに生活できたことに感謝する祭りは、楽しく賑やかなものでした。
例大祭・音頭奉納
そして、その祭りは志賀理和氣神社固有の文化となりました。この地域の人たちにとって、「祭り」と「鎮守の杜」は、他の何にも代えがたい大切な伝統文化となっているのです。このように、紫波町の地域の方々が1200年以上守り続け、愛し続けた「鎮守の杜」を復興するために、お力添えいただければ嬉しく思います。
それではここからは、現在、更地の土地を自然林に作り上げる具体的な方法について、林学博士の西野文貴先生にたっぷり語っていただきます。
目的は太古から続く自然の森を作ること
こんにちは。最後にバトンをいただいた林学博士の西野です。
専門的な観点から、今回の植樹プロジェクトについて、お話しさせていただきます。
フィールドワークをしている西野文貴博士(写真左)
まず、私たちが植える木についてです。それではまずは植樹の考え方についてお話ししたいと思います。
私たちは、その土地に本来あるべき「自然な森」を復元することを目的としています。
そのため、よく目にするスギやヒノキのような木材生産を目的とした人工林ではなく、その地域に適した樹種を選んで植えています。植物が地表面を覆っている状態を「植生」と呼び、森づくりを行う際に私たちの専門用語で「潜在自然植生」という概念を用います。
これはある地域において人間の手が加わらない自然状態に戻った時に、将来想定される生態系を指しています。「潜在自然植生」を読み解くためには、現在の森を調査したり、過去の調査報告書や地形図から、もしその土地が人間の活動を受けなければ、将来どんな森になるか想定します。
その土地に本来あるべき「自然な森」の例(北海道)
木材生産を目的としたスギやヒノキの「人工林」の例(日本全国的に見られる森)
日本は気候に恵まれており、放っておけば300年ほどで森ができると言われています。
しかし、現在では鹿が増えすぎているので、元の自然が壊れすぎてしまい、結果的に自然治癒能力が低いので、何年かかっても自然の森に戻らないことも考えられます。そこで植樹が必要になってきます。幸いなことに志賀理和氣神社の周辺には鹿が多くないので、植樹した後に鹿柵を作る必要はなさそうです。
日本の裸地から森ができるまでの植生遷移(乾性)
フクロウは本当に戻ってくるのか
田村宮司は少年時代に旧境内の鎮守の森の中に「フクロウ」がいたとおっしゃっていました。この土地の本来の植生に戻すことで、本来の生態系が復活して、元々いた動物や微生物が戻ってくる可能性があります。なぜなら、植物は生態系において「生産者」としての役割を果たし、その存在が食物連鎖の基盤を形成するからです。特に、フクロウが再びこの地に営巣したら本当に嬉しいですよね。
食物連鎖について「食物連鎖図」引用元(https://www.pref.osaka.lg.jp/midori/midori/seibututayousei.html)
神社周辺の植生は?
ここからは志賀理和気神社周辺について少し詳しくお話しします。この地域は東北地方の内陸部に位置し、その気候や地形の特性から、コナラやケヤキなどの落葉広葉樹が主に自生しています。
潜在自然植生から編集/引用(日本植生誌 東北 至文堂)
エゾエノキ−ケヤキ群集/引用(日本植物群落図説 至文堂)
ハシドイ−ヤチダモ群集 引用(日本植物群落図説 至文堂)
私たちは、過去の調査報告書や地形図などを参考にしながら、この地域に元々あった、または将来自然に成立するであろう「潜在自然植生」を推定して、この地域に最適な「森のレシピ」を作成し、オーダーメイドで森づくりを進めます。
地元の方々へ「森のレシピ」と「植樹指導」について説明する様子
西野文貴博士の植樹指導により植樹する様子
自然を壊すのは簡単ですが、自然をもう一度復元するのはとても大変なことなのです。志賀理和気神社の鎮守の森の復興を通じて、たくさんの人にその事を知っていただきたいですし、そしてそれは自然だけに限ったことではなく、日本の文化・歴史・伝統も一度壊してしまえば戻すのは本当に難しい事に気づいてほしいのです。
つまり、今回のプロジェクトは、「フクロウのいた森」を復元するだけでなく、日本の文化、歴史、伝統を守り、次世代に継承していく大切な取り組みだといえます。
私たちの最終目標は自然と共生する日本を作ることです。ぜひ志賀理和気神社の新殿にも消滅したフクロウがいた森を復活させ、千年先の未来まで繋いで行きましょう。ぜひ、今回の取り組みにご興味を持って応援いただけたら、これほど嬉しいことはありません。
プロジェクトメンバーの紹介
今回のプロジェクトは下記のメンバーで構成されています。すでにページ上でご紹介させていただいた方も含めてあらためてご紹介させていただきます。

志賀理和氣神社宮司 田村寛仁(たむらひろひと)/写真中央
鎮守の杜の守り人 髙橋知明(たかはしともあき)/写真左
瀬田玉川神社禰宜。昭和50年、岩手県陸前高田市生まれ。國學院大學卒業後、神社本庁に奉職。東日本大震災を契機に退職し、植樹活動を通して東北復興に尽力。現在、東京・世田谷区の瀬田玉川神社に禰宜として、神明奉仕する傍ら、一般社団法人「第二のふるさと創生協会」代表理事を務める。各地のお祭り支援と植樹活動を二本柱に、地域社会の持続へ向けた活動を展開している。
林学博士 西野文貴(にしの ふみたか)/写真右
昭和62年大分県別府市生まれ。東京農業大学森林総合科学科卒業後、同大学で林学博士取得。全国1000箇所以上の植生調査、鎮守の森のプロジェクト技術部会員、今までに経団連自然保護協会環境教育講師、明治神宮の森にて講演。ヨルダン、インド、中国で森づくりを展開中。日本緑化工学会受賞歴あり。父親は植物社会学に基づく苗木生産会社(株式会社グリーンエルム)の創設者。子供時代から自然に興味を持ち、世界中の森づくりに尽力。東京の瀬田玉川神社で年に一度、小学生向け植物授業を実施。
その他プロジェクト補佐/
キュレーター兼文章執筆 峯山政宏
アドバイザー 宮澤伸幸(一般社団法人日本文化伝承協会専務理事)
メディア協力 神社マニア
メディア協力 ワクセル(主宰:嶋村吉洋) 

応援メッセージ

中川愛子社中 代表
岩手の永遠のアイドル
中川愛子さん
ワダスは、82歳になります。志賀理和氣神社と“一本の木”に助けられて、今も民謡オバサンとして、元気に活動しています。数年前、事故に遭遇した時、一本の大木が川底への転落を防いでくれたことがありました。この奇跡により、神様のご加護と木の大切さを感じたのでした。
民謡は、“日本人の心のふるさと”と言われます。そして、神社の鎮守の杜も、心のふるさとと言われてきました。そういえば、だれの歌だったか、伊勢神宮におまいりしたとき、
なにごとのおわしますかは知らねども、かたじけなさに涙こぼるる
そんな、歌を残したそうですが、志賀理和氣神社も、新たな鎮守の杜が造られ、その荘厳なふんいきの中で、民謡を楽しむことができればと、心から願っています。
皆さんの温かいご支援をお願いします。ワダスもがんばって応援します!
クラウドファンディングの応援方法について
この鎮守の杜再建に向けて必要な費用をクラウドファンディングで集めさせていただくことになりました。その費用は皆様からページ横(スマホではページ下)に掲載されている返礼品(リターン商品)をご購入いただくことで、システム手数料を差し引いた残りの金額をプロジェクトの活動費用として充当させていただきます。
今回のクラウドファンディングではたくさんの返礼品(リターン商品)を準備させていただきました。その中でもお勧めのものを厳選してご紹介させていただきますので、ぜひご覧になってください。
返礼品の中には数に限りがあるものも多くございますので、在庫数なども確認しながら、ぜひご検討をお願いします。リターンが特に不要という方はお賽銭コースよりご選択ください。
資金の具体的な用途
皆様からご支援いただいた活動資金は下記のように必要な資金に充てさせていただきますので、ご覧になってください。またCAMPFIREの手数料にも充てさせていただきます。
【志賀理和氣神社「鎮守の杜」森づくり費用 】資金使途内訳
森づくり費:約112万円
人 件 費:約10万円
交 通 費:約17万円
広 報 費:約13万円
返礼品制作費:約160万円
返礼品送料・事務経費・余剰金:約20万円
CAMPFIRE手数料(17%+税):約68万円
概算見積もり金額:合計400万円。
※目標金額に満たない場合は自分たちで全額負担してプロジェクト資金を準備します。
今後の植樹スケジュール
2024年6月30日/植樹イベント:第一区画の植樹完了
2025年6月末予定/植樹イベント:第二区画の植樹完了
2026年6月末予定/植樹イベント:第三区画の植樹完了
ご支援の方法とプロセス
各種リターンをご購入いただく資金が本プロジェクトための支援金となります。本プロジェクトに共感いただけましたら、ぜひ6月に開催される植樹イベントなどで現地にお越しください。遠方にお住まいでなかなか現地に来れない方も、リターンの購入で応援いただければ本当に嬉しく思います。
ただ、今回のクラウドファンディングで目標金額に満たない場合でも残りの金額は私たちが全額負担してプロジェクト資金を準備しますのでその点はご安心ください。新境内に新しく千年続く「鎮守の杜」を再建するために、ご支援を何卒宜しくお願い致します。

最後に
〜田村宮司から皆様へ〜
志賀理和氣神社の植樹にご興味を持って下さりありがとうございます。
当神社は令和6年でご鎮座1220年を迎える県内随一の古社であります。
移転前の境内を思い返しますと、社殿や生活をしていた社務所もさることながら、一番に浮かんでくるのは森と豊かな自然の情景です。北上川の川辺に在り、木漏れ日の降りそそぐ苔むした境内に、トンボが飛び交い、蝉しぐれがひびき渡る情緒は当たり前にあるものだと思っていました。
梟や鷹、狐やタヌキ、青々とした森の木々だけでなく多くの命の循環があり、四季の営みと神様のお祭りが渾然一体となって存在していました。

しかし、昨今の異常気象により北上川は時に猛威を振るい、幾度となく川があふれ、地域住民の生活を脅かす状況となり、人命まで失われる事態となってしまいました。神社として、旧境内を離れることは非常に辛いことではありましたが、氏子地域を始め人々の平安を第一にするべきとの判断に至りました。境内の移転により、社殿や社務所が立て替えられ、神社として必要な建物はある程度賄う事が出来ましたが、未だ森づくりまで手が及ばず、非常に寂しく、また、受け継がれてきた歴史も感じることが難しい状況にあります。
そのことを憂いている中、このような機会に恵まれ、まずは、皆様に当神社の事を知っていただけたことに心より感謝を申し上げます。
参道には樹齢700年、町指定の天然記念物「南面の桜」という恋の伝説の残る桜がございますが、これから我々が植える木々も、私たちの死後もこの地に在り続け、多くの命を育みます。そして、その歴史の中には思いもしないような物語も生まれるかもしれません。
この地で、これからの1000年を守る森を皆様と共に育てていきたいと存じます。
是非とも皆様にご理解いただき、四季のある、緑と生命に満ちた森づくりにご協力をお願いしたく存じます。
宮司インタビュー
縁結び伝説の残る「南面の桜」
〜プロジェクト実行者からから皆様へ〜
この度は、志賀理和氣神社の鎮守の杜づくりクラウドファンディングにご興味を持っていただき、厚く御礼申し上げます。
全国には神社が約78,000社ありますが、実は志賀理和氣神社だけでなく、多くの神社が、護持継承していくために経済的困難を抱えています。その最も大きい要因は、地域の著しい人口減少です。今までは、各々の地域で支えながら、守り伝えてきた神社と鎮守の杜ですが、人という基盤を失うことでそれが叶わなくなる危機に瀕しています。その影響から、あと10数年で、約78,000社の神社のうち、約4割が消滅してしまうと専門家は言います。
各々の地域の貴重な伝統文化や伝統芸能などの歴史を紡ぎ、祭りが行われてきた神社という”心の拠り所”が、これからたくさん失われます。全ての神社を守ることは出来ないかもしれませんが、1社でも多くの神社を、貴重な地域の財産を守るためには、地域外からの人々の支援と交流が必要です。
第二のふるさと創生協会は、そのために立ち上がりました。
「祭りと植樹のお手伝い」から、地域外の人々にとっては”もう一つの心の故郷”が生まれること、地域の人々にとっては新たな仲間が増えることを推進しています。どうか皆さまには、志賀理和氣神社の鎮守の杜づくりへのご支援とともに、ぜひ植樹祭へご参加いただき、志賀理和氣神社を特別に好きになって、紫波町の魅力にもたくさん触れていただきたいと思っています。
皆さまの心が、その地域の“心の拠り所”を守ります。
その心とは、「和の心」。
ぜひ本クラウドファンディングをきっかけに、「和の心」を持った仲間が集い、志賀理和氣神社をはじめ、私たちのアイデンティティである多くの神社が守られ、未来の世代へ伝えられることを願っています。
皆さまの温かいご支援ご協力を、重ねてお願い申し上げます。
一般社団法人第二のふるさと創生協会
代表理事 髙橋知明
<ご留意事項>
⚪︎「鎮守の杜」建設の進捗につきましては、新着情報などで随時ご報告させていただきます。
⚪︎返礼品の各種企画について、本殿の修復工事の進捗状況や、天災や新型コロナウイルス感染拡大等の社会情勢の変化により、中止・延期・内容の変更等が生じる可能性がございます。万が一中止・延期・内容変更となった場合も、いただいたご支援金は返金いたしかねますので予めご了承ください。
⚪︎本プロジェクトのリターンのうち、【お名前掲載】に関するギフトの条件詳細については、こちらのページの「命名権、メッセージの掲載その他これに類するリターン」をご確認ください。
⚪︎目標金額達成後の返金・キャンセル等は一切できませんので、ご承知の上ご支援ください。
⚪︎支援完了時に「応援コメント」としていただいたメッセージは、本プロジェクトの新着情報やSNS等発信などに利用させていただく場合があります。
ーーーー
一般社団法人第二のふるさと創生協会は非営利法人ですが、このクラウドファンディングを支援することで、個人の支援者が寄付金控除を受けることはありません。
ーーーー
<よくある質問と回答>
Q:クラウドファンディングの支払いはどのような方法がありますか?
A:クレジットカード払い(VISA,JCB,MASTER,AMEX,Dinners)、コンビニ支払い、銀行振込(Payeasy)、携帯キャリア決済(docomo、au、ソフトバンク)、楽天Payが御座います。デビットカードはサポート外となります。
Q:クレジットカードは分割での支払いは可能ですか?
A:CAMPFIREのシステム上、分割払いはできませんので分割をご希望の場合は支援後にカード会社様へお問い合わせをお願いいたします。
Q:コースを間違って買ってしまいました、気が変わってしまいました、キャンセル出来ますか?
A:サイトの仕様上、支援後のキャンセルやプランの変更はできません、よくご検討の上でのご購入をお勧め致します。また支援金に金額を上乗せをすることによるアップデートも不可となっております。(例:3,000円コースに7,000円を上乗せ支援しても受け取れるのは3,000円コースのリターンです。)
Q:どうやったら支援出来るんですか?
A:ご希望されるリターンをお選び頂き、決済をお願いします。詳しい手順に関してはこちらのCAMPFIRE様のヘルプページをご確認ください。CAMPFIREのシステム的な仕様などに関わる部分はこちらではお受けしておりませんので、CAMPFIRE様へお問い合わせをお願いいたします。
Q:複数のリターンに申し込みたい、もしくは同じリターンを複数買いたいのですが可能でしょうか?
A:両方とも可能です。クレジットカード支援の場合は複数のリターンのご購入や数量を指定しての購入が可能です。ご支援時に数量と各種リターンを選択する事が出来ます。ただし限定数のあるリターンに関してのみ、その都度個別でお申し込みとなります。また申し込み後のコース変更やキャンセルはお受け出来兼ねますのでご注意ください。申し込み時にCAMPFIREシステム利用手数料がかかりますのでご了承ください。
Q:目標金額に達成したら受付は終了するのでしょうか?
A:目標達成後も受付終了日まではご支援頂けます。
Q:目標金額に達しなかった場合はどうなるんでしょうか?
A:All-in方式を採用しておりますので目標金額に満たない場合も、本プロジェクトを実行しリターンをお届けいたします。
Q:支払い期限はありますか?
A:決済方法によって異なります。コンビニ、銀行振込の場合は基本的に支援日より4日以内の支払い日です。詳細な期限に関しては支援後CAMPFIREより送付されるメールに記載されておりますのでご確認下さい。支払い期限を超過した場合自動的にキャンセルとなります、キャンセルになった在庫は決済が出来ませんので、購入される場合は再支援をお願い致します。クレジットカード、各種携帯キャリア払い、PayPalに関しては支援者様のご契約内容により締め日が異なりますのでご自身でご確認頂きます様お願い致します。
Q:このプロジェクトに関する問い合わせ先を教えてください。
A:『メッセージで意見や質問を送る』からお問い合わせいただきますようお願いいたします。(CAMPFIREのアカウントが必要です)SNSに対してのリプライ等ではお答えできない可能性がございます。
Q:支援後の連絡等はどこで行われますか?
A:CAMPFIREのメッセージ、もしくはメールにてのやりとりとなります。プロジェクト期間内も新情報などアップデートする場合もありますので、ドメイン『@camp-fire.jp』を必ず受信可能な状態にしておいてください。
その他、クラウドファンディングに関わるご質問につきましては、CAMPFIREヘルプページをご覧ください。
最新の活動報告
もっと見る
【第2期】いよいよあと7時間ほどで終了です!
2025/07/31 17:00志賀理和氣神社鎮守の杜再生にご支援を賜り、心より御礼申し上げます。当クラウドファンディングは残すところあと7時間ほどで終了となります。皆様からの真心こもるご支援のおかげで、第一目標であります100万円を超える、大きなご支援を賜ることができました。本当にありがとうございます。目標を超えたご支援は、今後の育樹や、来年の植樹の準備に役立てられ、千年の森づくりに活かされます。どうか、最後に、改めてクラウドファンディングのページをご一読ください。ご支援くださった皆様は思いを同じくする、当プロジェクトの一員となっていただいたと思っております。これからの森づくり、千年先に思いを託す鎮守の杜再生にどうか最後の最後までお心をお寄せくださいますようお願い申し上げます。よろしくお願い致します。志賀理和氣神社宮司 田村寛仁【第2期】志賀理和氣神社鎮守の杜再生クラウドファンディング上記リンクよりページをご覧下さい! もっと見る
いよいよ明日は最終日です。
2025/07/30 19:30志賀理和氣神社鎮守の杜再生にご支援を賜り、心より御礼申し上げます。津波警報で避難を余儀なくされている皆様。心からご無事をお祈り申し上げます。昨年このプロジェクトが立ち上がる前の境内を思い返すと、緑の少ない殺風景な境内でした。そこから、皆様のお一人お一人のお力添えをいただき、少しずつ緑のある境内になってきています。森の涼しい木漏れ日の中で、草取りなどの手入れをしている時、皆様の真心こもるご支援とご協力を思い返し、心が温かくなります。この心温まる森を広げ、守り、育てたいと願っています。今年は雨が降らず、ダムの取水制限なども始まっております。この異常気象が頻発する現状を、皆様と一緒に植えた木々が、少しでも良い方に導いてくれることを、そして、そのきっかけになってくれれば何よりと存じております。当神社も、長い歴史を歩んだ境内を、川の氾濫の頻発という異常気象により、移転をすることとなりました。このような思いをする人々や社寺が一人でも一つでも減ってくれるならば尚更嬉しいことです。あなた方お一人お一人のご支援が、少し良い明日を、未来をもたらすことに繋がります。どうか最後までお心をお寄せくださいますようお願い申し上げます。志賀理和氣神社宮司 田村寛仁【第2期】志賀理和氣神社鎮守の杜再生クラウドファンディング詳しくは上記リンクをご覧ください!【お知らせ】コラボLIVE『岩手・神さまのいる森のおはなし』7月30日(水) 20:00 START1200年以上の祈りを受け継いでこられた、志賀理和氣神社の宮司 田村寛仁さま。そして、この聖なるご縁を繋ぎ、共に祈りを捧げる、愛と光の人 KayaKayaちゃんお二人の大切なお話に、MCとして真摯に耳を傾け、皆さまとの架け橋になりたいと思っています。そして、スペシャルゲストとして。この物語に導かれるようにして生まれた新曲を、心を込めて奉納させていただきます。言霊とメロディが、千年先へ向かう森への、恵みの一滴となりますように。そんな祈りを込めて。画面の向こうで、あなたと聖なる時間を共有できることを、心から楽しみにしています。岩手・神さまのいる森のおはなしhttps://us06web.zoom.us/j/81254531111ウェビナーID812 5453 1111 もっと見る
【第2期】鎮守の杜再生クラウドファンディング残り2日と数時間となりました。
2025/07/29 19:00志賀理和氣神社鎮守の杜再生に対し、真心こもるご支援を賜り、衷心より厚く御礼申し上げます。当クラウドファンディングも、残すところあと2日と数時間となりました。第一目標は、皆様のお陰で達成することができました。これからのご支援は、来年の400本の苗木や植樹祭、これからの日々の育樹のために活用されます。宮脇先生のおっしゃられた「木を植えることは、明日を植えること、命を植えること、そして心に木を植えること」まさしく、皆様のご支援はこの言葉の通りに、明日を植え、命を植え、皆様の心に木を植えることとなっていると信じております。あなた方のご支援が、しっかりと森づくりに活かされ、お一人お一人の真心が息づく鎮守の杜が、悠久の時を歩み、多くの生命を育み、そして、未来を作っていくのです。まもなく募集終了となる当クラウドファンディングですが、森づくりのため、引き続きご支援賜りますよう伏してお願い申し上げます。志賀理和氣神社宮司 田村寛仁【第2期】志賀理和氣神社鎮守の杜再生クラウドファンディング詳しくは上記リンクをご覧ください。 もっと見る






心から応援しています!!