自己紹介
初めまして、私は新潟県在住の本保 正義(ほんぼ まさよし)と申します。新潟県の離島「粟島」で生まれ育ちました。現在、高校時代の親友である上村 肇(かみむら はじめ)と一緒に母と父が遺した民宿「ますや(内浦地区)」運営の準備をしております。よろしくお願いします。
実現したいこと
粟島浦村は周囲約23Km、人口約300人ほどの自然豊かな小さな島です。私が育った大好きな粟島は現在、過疎化・高齢化から生じる民宿経営者の後継者不足に直面しています。
今回私が実行したいことはそんな粟島で亡き母が大切にしてきた民宿「ますや」を再開することです。築45年ほどの古い建物なので、壁、床、手洗い場など、補修が必要な箇所がいくつかあります。そこを修繕して、今年の5月に明るく気持ちの良い民宿としてお客様をお迎えしたいと考えています。



立ち上げの背景『再開したら教えてください!!』
「民宿「ますや」を再開したら教えてください。」
母が亡くなった直後からお客様に何度も言われました。4年経った今もなお、母を偲んで家を訪ねてくださるお客様もいらっしゃいます。母の笑顔と自慢の料理で繋がった人たちと縁ができ、私たち家族は何度も助けていただきました。そこで、そのような人たちに恩返しがしたく、再開を決意しました。
高校の親友である上村肇に運営をお願いしたところ、現在の仕事を辞めて粟島移住を決めてくれたことで、このプロジェクトを立ち上げることができました。
現在の準備状況
・運営に直接携わる上村肇は、2月に現在の仕事を辞めて3月から移住する準備をしています。
・使わなくなった荷物や道具を処分し、大工さんと今の時代にあった間取りと修繕箇所を検討しています。
・令和6年8月からInstagram(awashima_masuya)にて進捗状況を伝えています。
リターンについて
50,000円 (応援協力金)
30,000円 1グループ15名様まで(土日祝日は除く)貸切 1泊素泊まり
10,000円 3名様 1泊宿泊素泊まり
5,000円 1名様 1泊宿泊素泊まり
※島内にはレストラン、食堂、カフェ、居酒屋があります。
スケジュール
2月下旬 クラウドファンディング告知 ・大工さんとの打ち合わせ
3月中旬 上村肇粟島移住
4月上旬 修繕着工(SNSで進捗報告)クラウドファンディング終了
4月下旬 修繕終了(SNSで進捗報告)宿泊予約開始
5月中旬 民宿「ますや」新装オープン
資金の使い道
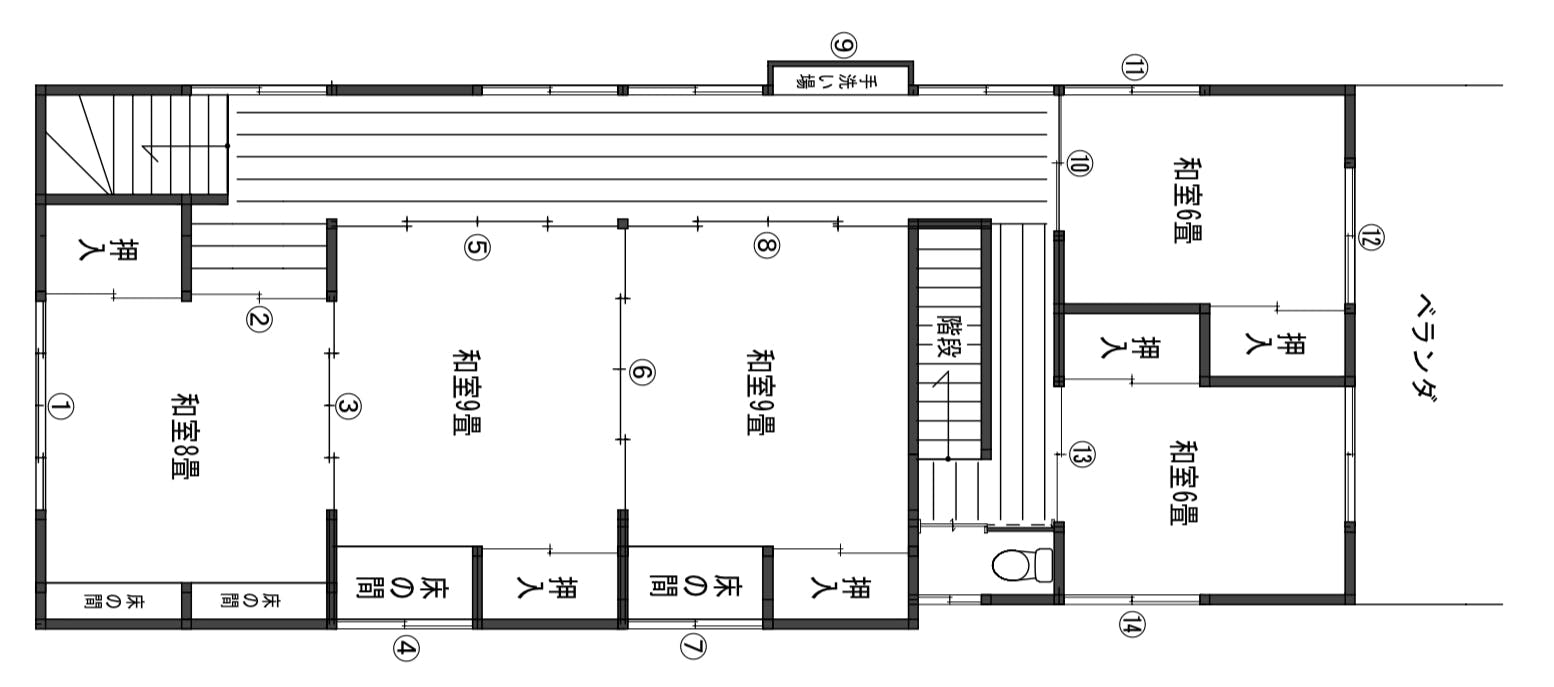
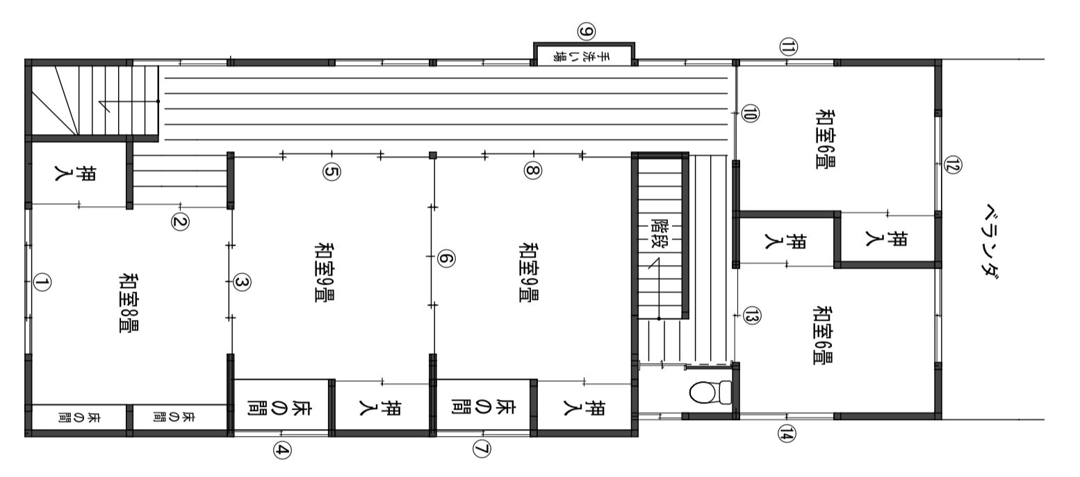
内訳】
2F インプラスサッシガラス374,000円(5部屋分)
2F 仕切り壁の設置・ドア設置・壁紙張り423,000円(5部屋分)
2F 手洗い場工事 28,000円
資材運搬代 75,000円
※目標金額を超えた際は1Fのインプその他の修繕箇所に充てさせていただきます。
目標金額を超えた場合、まずは1Fの畳の食事スペースを、より快適なカフェ&食事スペースとして改修することを最優先に取り組みます。さらに追加のご支援をいただけた場合には、以下の用途にも活用させていただきたいと考えております。
・インプラスサッシガラス設置:断熱効果を高め、快適性を向上させます。
・1F手洗い場の修繕:利便性を高め、衛生的な環境を整えます。
・1Fと2Fの床の張り替え:清潔感と快適性を向上させます。
・壁の補修:清潔感と快適性を向上させます。
・寝具と食器の新調:清潔感と快適性を向上させます。
・台所のキッチン用品を新調:清潔感と便利性を向上させます。
・民宿ますや専用自動車の購入:お客様の荷物を宿まで運搬します。
最後に
母が遺した民宿「ますや」。今までご利用いただいた方や新規の方にも、粟島の自然を満喫し、島民の人柄にふれて温もりを感じていただけるように心を込めて運営いたします。
今後はSNSでも発信しますので、応援をよろしくお願いします。
住所 新潟県岩船郡粟島浦村112番地(内浦)
民宿 ますや
最新の活動報告
もっと見る
粟島民宿ますや活動レポートルーム表札製作編
2025/04/13 21:18木の選別ルームキーのイメージ画素敵なしおりを民宿ますやで販売予定!!WSY FURNITURE * 民宿ますや (予定)夢のコラボ素敵な一輪挿しも民宿ますやで販売予定!!WSY FURNITURE民宿ますや活動報告・ルーム表札製作編ご支援いただいた皆様へ この度はたくさんのご支援とご協力並びに心のこもったメッセージをいただき、心から感謝申し上げます。皆様のおかげで無事クラウドファンディングが終了いたしました。これからはインスタグラムとこの活動報告にて進捗状況をお伝えさせていただきますので引き続きよろしくお願いいたします!! 本日はルーム表札製作の様子をお届けします。部屋の表札とルームキーの製作を長岡市のWSY FURNITUREの山岸さんにお願いしました。 山岸さんと数年前に初めてお会いした時にその誠実で優しい人柄にふれ、いつかこの方と一緒に仕事がしたいと思っていました。そしてこの度、民宿ますや再開のプロジェクトの一員として加わっていただきました。夢がまた実現し、嬉しい気持ちとありがたい気持ちでいっぱいです。 山岸さんからは表札の大きさや木の種類、加工の仕方を提案していただいただけでなく、様々なお話をしていただきました。 山岸さん、お忙しいところ時間を作ってくださり、本当にありがとうございました。とても楽しい時間となりました!!完成が今から楽しみです!! 部屋の名前や実際の表札とルームキーもまた皆様にこれから報告させていただきます。お楽しみに!!この道の先に、皆さんの笑顔と会えますように もっと見る
粟島民宿ますや再開修繕レポート
2025/04/12 09:09活動レポート 修繕編ご支援いただいた皆様へ この度はたくさんのご支援とご協力並びに心のこもったメッセージをいただき、心から感謝申し上げます。皆様のおかげで無事クラウドファンディングが終了いたしました。これからはインスタグラムとこの活動報告にて進捗状況をお伝えさせていただきますので引き続きよろしくお願いいたします!!襖➡︎仕切り壁へ屋根裏に断熱材 ついに4月9日から修繕工事が始まりました。五十嵐建築の五十嵐竜二さんとそのスタッフの方が粟島に到着し、すぐに修繕工事が始まりました。まずはふすまのところに仕切りの壁をつけていただきました。あっという間の作業に私たちもその職人技の凄さに感動です。続いて屋根裏に断熱材。これまたあっという間の作業です。本当にプロってすごいです!!五十嵐建築さんとそのスタッフ方、本当にありがとうございます!! マネージャーの上村肇も大工さんに料理を提供したり、荷物の片付けをしたり奮闘中です!!なんと弟くん渉くんも手伝ってくれています。渉くんもありがとう!! 皆さんからいただいた資金でこうして民宿ますやの修繕を行うことができています。皆様、本当にありがとうございます!!引き続き民宿ますやをお願いいたします!! この道の先に、皆さんの笑顔と会えますように もっと見る
粟島民宿ますやクラファン間もなく終了 民宿ますやエピソード4
2025/04/05 21:31活動報告 クラファン間もなく終了ご支援いただいた皆様へ ついにクラファンも残り1日を切りました。終了に近づいてから、再びたくさんのご支援とご協力をいただきました。本当にありがたすぎて感動しています。間もなくクラファンも終了となりますが、最後まで皆さんと一緒に駆け抜けていきたいと思います。今一度、お力添えをお願いいたします!! 父と母が遺した『民宿ますや』には数々のエピソードがありました。今回はご支援していただいた皆様に民宿ますやを知っていただきたく、エピソード4を紹介いたします。父と母と一緒に民宿ますやで過ごしたあの日々は幸せでした。そんな日々を皆さんにも読んでいただけると嬉しいです。粟島民宿ますやエピソード4『三年寝太郎・サプライズ』 私がいた当時の粟島浦村中学校では文化祭で2年に1度、劇をする。私が中二の時に、「三年寝太郎」の劇を演じた。3年間寝続けた、一見するとただの怠け者の男が突然起き出した末に大きなことを成し遂げる。大きなことを成し遂げるためのアイデアを3年間練っていたという話である。 私は米を取り立てる代官役を演じた。小道具、大道具を自分たちで製作し、先生の指示にしたがい演技をする。このような経験をしたことがあまりなかったので、本当に楽しかった。「衣装はなるべく自分たちで用意してくれ。」 そう先生から言われたので、さっそく帰って母に聞いた。「母ちゃん、今度文化祭の劇でお代官様の役をやるんだけどさ、なんか時代劇みたいな着物あるかなぁ。」「あるよ。山小屋(離れたところにある倉庫)から探しとくよ。」 文化祭前日、立派な衣装が茶の間に置いてあった。「これすごいじゃん。よくこんなのうちにあったね。ありがとう!!」「あいよ。」 と母はニコニコしていた。 劇の当日、緊張しながらも無事代官役を務め、家に帰った。「劇よかったよ!!おもしろかったよ!!」 母は満面の笑みで出迎えてくれた。「ありがとう。」「実はね、あの衣装はお父さんとお母さんの結婚式で、お父さんが着た衣装なんだよ。」「え~!?そんな大事な衣装、オラが着て良かったの!?」「いいの、いいの。」 そう言う母は本当に嬉しそうだった。 きっと母は父と私、結婚式の頃を重ねながらあの劇を観てたのかもしれない。母のサプライズは劇の成功以上の喜びと、温かさを私にもたらしてくれた。この道の先に、皆さんの笑顔と会えますように もっと見る









コメント
もっと見る