--------------------------------------------------------------------------------------
サードゴール80万円を達成いたしました。
これまでご支援いただいた皆様、本当にありがとうございます。
最後までより多くの方に本プロジェクトを届けるため、引き続きご支援・ご協力のほどよろしくお願い申し上げます。
--------------------------------------------------------------------------------------------
--------------------------------------------------------------------------------------
【サードゴール80万円に挑戦します】
残りあと15日で、ネクストゴール60万円を達成することができました。
ありがとうございます。
--------------------------------------------------------------------------------------------
【ネクストゴール60万円に挑戦します】
開始からわずか24時間で、目標30万円を達成することができました。
この古民家に込めた想いに、こんなにも多くの方が共鳴してくださったこと、心から感謝申し上げます。本当にありがとうございます。
私たちは今、この古民家を「次の100年へ」手渡すための再生に挑んでいます。
そして、新たな一歩として60万円に挑戦いたします。
山添村の未来へつながる再生を。
どうか、この物語の続きを、一緒に見届けていただけませんか。
--------------------------------------------------------------------------------------------


里音(さとね)プロジェクトチームのメンバーです。
はじめまして、代表の谷です。
これまで大阪で不動産業を営んできましたが、この度、全く新しい挑戦として、奈良県山添村にて古民家再生プロジェクトを立ち上げました。
山添村にある築約200年の古民家を初めて目にしたとき、「この建物を再生し、後世に残していきたい」そんな強い想いが自然と湧き上がったことを、今でもはっきり覚えています。
不動産という仕事を通じて数多くの建物を見てきましたが、この古民家には、数字や効率では測れない“時間の重み”と“日本らしさ”が確かに残っていました。
山添村の古民家を一棟・一森貸しプライベートヴィラ「里音(さとね)」として2026年5月に再生させます。
昔ながらの日本建築の美しさを残しながら、現代の快適さを追求したこの場所で、都市の喧騒を忘れ、本当の静けさと自然の音に包まれる特別な時間を過ごしていただけます。
大阪で不動産業を営む中で、価値があるにもかかわらず使われなくなった古民家や、都市と地方の距離が広がっている現状に、違和感を覚えるようになりました。
奈良県山添村で出会ったこの古民家は、静かな自然に囲まれ、日本の原風景を今に残す場所でした。
この場所が持つ価値を、一度きりの観光として消費するのではなく、実際に滞在し、時間を過ごす中で感じてもらいたい。
その想いが、この古民家再生プロジェクトを立ち上げた理由です。

「里音(さとね)」という名前は、ふる里を感じる風景と、鳥の鳴き声や、そよ風が木々の間から聞こえてくる音から名付けました。
山添村では、音が少ないからこそ、自然の音が際立ちます。その“音のある静けさ”を、そのまま名前に込めました。

「里音」は、昔ながらの日本建築の美しさを大切に残しながら、一組ずつゆっくりと過ごしていただける一棟貸しのプライベートヴィラです。







横にある森は貸し切りできます。都市の喧騒から離れ、本当の静けさに身を置く時間をお届けします。
デジタルから少し距離を置きたい方、自然を感じたい方、古民家に興味のある方に、心がほどける滞在を体験していただきたいと考えています。


奈良県東北部に位置する山添村は、大阪・名古屋から車で約1〜1.5時間という距離にありながら、今も日本の原風景が残る場所です。

澄んだ空気、四季折々の里山の景色、夜には満天の星空が広がります。人と自然が、無理なくのびのびと共存する暮らし。それが、山添村の日常です。



里音(さとね)が目指すのは、単なる宿泊施設ではありません。都市と地方をつなぐ【懸け橋】として、訪れる人々に日本の原風景の価値を再発見していただき、同時に地域の魅力を全国に発信する拠点となることです。
一組ずつの大切なお客様に、プライベートな空間で心からくつろいでいただける環境。家族や友人との絆を深める特別な時間。そして地域の方々との温かい交流を通じて、新しいつながりが生まれる場所。そんな価値ある体験を提供したいと考えています。
神の山de①ガストロノミーtourism ★出張シェフによる地域の食体験を

出張シェフガストロノミーshow(2時間)
奈良・山添村の静かな里山に佇む古民家を舞台に、シェフが目の前で繰り広げる“食のライブ体験”。地元・奈良の旬食材を中心に、調理の音、香り、火入れの瞬間までも五感で楽しむガストロノミーショー形式の特別な2時間をお届けします。料理が完成していく過程を間近で体感しながら、シェフ自らが食材の背景や調理のこだわり、山添村の風土とのつながりを語ります。古民家ならではの落ち着いた空間と、ここでしか味わえない“出来立ての一皿”が融合する、旅のハイライトとなる贅沢な食体験です。
神の山de②里リートtourism★ヨガ、エステ、サウナde Dデトックス
静寂な森の中で鳥のさえずりや風の音をBGMに!

里リートtourism★ヨガ、エステ、サウナde Dデトックス
奈良・山添村の深い森に抱かれながら、心と身体をゆるやかに整える里リート(悟り+リトリート)ツーリズム。
澄んだ空気の中で行うヨガ、自然のリズムに寄り添うエステ、そして心身を芯から温めるサウナ。
日常の緊張や思考、疲れをそっと手放し、深く、静かに、内側から巡りを取り戻す「D(ディープ)デトックス」を体験いただけます。
寒い日や天候に恵まれない場合は、趣ある古民家の室内で開催。木の温もりに包まれながら、季節を問わず安心してご参加いただけます。
自然 × 癒し × 静寂。ここ山添村だからこそ叶う、自分に還るための特別な時間をお過ごしください。
神の山de③ひと森貸tourism ★静寂な森で鳥や風の音を聞き心を整え自然と一体となる!デジタルデトックス
デジタル波から森の波動へ
イベント(流し素麺、杉玉造)
企業の取締役会、部署の会議等

茅葺職人による藁縄男結びの体験会
ひと森貸tourism ★静寂な森で鳥や風の音を聞き心を整え自然と一体となる!デジタルデトックス
デジタル波から、森の波動へ。ここは奈良・山添村。鳥のさえずり、風が木々を揺らす音、澄んだ水の流れ。スマートフォンを手放した瞬間から、人は本来のリズムを取り戻していきます。「ひと森貸Tourism」は、森そのものを一組限定で貸し切る完全プライベート型リトリート。情報過多の毎日から距離を置き、自然と一体になることで、思考と感覚をリセットする体験です。

![]() |
![]() |
![]() |
![]() |
![]() |
![]() |
![]() |
![]() |
![]() |
![]() |
![]() |
![]() |
![]() |
![]() |
![]() |
![]() |
![]() |
![]() |

| 山添村の古民家を再生されたプライベートヴィラ「里音(さとね)」の完成おめでとうございます。 そして、改修途中から様々なイベントを企画され実行されてこられた谷さんをはじめとするプロジェクトチームの皆さんのアイデアとパワー、本当に素晴らしいです。山添村にまた一つ、村の素晴らしさを紹介できる拠点が出来ました。しかも村外から来られた民間の力で!こんなに嬉しいことはありません。山添村を、そして山添村の古民家を気に入り、再生してくださった谷さんに改めて感謝します。古民家に新たな「生命」を吹き込んでくださったこと、またこの取り組みの中で多くの出会いや繫がりが生まれました。本当にありがとうございます。 是非皆さん、プライベートヴィラ「里音」で、特別な日本体験を! |

「静けさ」は現代においてはとても貴重なものとなり、ノイズキャンセリングのような、強制的な静けさを求めているような時代だと思います。 |

里音のプロジェクトは、単なる宿泊施設ではなく、日本の原風景とこれからの豊かさを丁寧につなぐ挑戦だと感じています。古民家が持つ時間の積層や素材の美しさに、現代の快適さと食の体験を重ねることで、訪れる人の感覚を静かにひらく場所になるはずです。この土地、この建築だからこそ生まれる体験を、心から応援しています。 |

築200年の古民家を再生させたプライベートヴィラ「里音(さとね)」の庭園を担当させて頂きました(株)季節の詩の石坂です。日常の都会の喧騒を忘れ、風の音や鳥の声や大自然の聲に耳を傾け、心からリラックスできる時間を過ごし、リフレッシュできることでしょう!里音(さとね)さん おめでとうございます。訪れる たくさんの方に愛される場所になることを心より願っております。CONGRATULATIONS‼️ |

自然豊かな山添村の森とこの古民家には、日常の喧騒から離れ、心身の疲れを癒して新たなエネルギーを得られる穏やかな空気が漂っています。 |

|
築二百年という長い時を生きてきたこの古民家を、2年という時間をかけて、一つひとつ丁寧に直してきました。 梁や柱には、昔の大工の知恵と技が今も息づいています。それを壊すのではなく、活かし、次の百年へつなぐ。 この家には、手仕事の温もりと、山添村の風土がそのまま残っています。 |

古民家を美しく維持することはけっこう根気と覚悟のいることです。 |

5月のオープンに向けて、現在最終的な内装工事と設備の調整を行っています。
クラウドファンディング期間中にも進捗状況を随時ご報告し、
5月以降、ご支援者様向けの先行宿泊を順次開始予定です。
プライベートヴィラ「里音(さとね)」
住所:〒630-2201奈良県山辺郡山添村峰寺341
地図:
■ お車でお越しの方
・名阪国道「小倉IC」より 約11分・名阪国道「針IC」より 約15分
・大阪市内から約1時間。名古屋市内から約1時間半。
山道はありますが、普通車で問題なく通行可能です。※冬季・雨天時はスタッドレスタイヤまたは運転にご注意ください。
■ 公共交通機関をご利用の場合
最寄り駅は 近鉄「奈良駅」 またはJR奈良駅となります。
駅からは公共交通の便が限られるため、タクシーまたは送迎(要事前相談)のご利用をおすすめします。
・JR奈良駅、近鉄奈良駅 → タクシー 約30分
バスでのご利用の場合「奈良交通 [124] 北野(奈良県)行」乗車
・JR奈良駅→(12分)→近鉄奈良駅 → (49分)→津越バス停→徒歩5分
■ ご来場時のお願い
・山間部のため、ナビ設定は住所検索(山添村峰寺341)をご利用ください
・日没後は暗くなりますので、明るいうちの到着がおすすめです
・詳細なルート案内や集合場所は、ご予約確定後に個別にご案内いたします
Q&A
Q1. 薪ストーブや囲炉裏は自由に使えますか?
A. 火災予防の観点から、薪ストーブや囲炉裏の利用は原則としてスタッフ対応とさせていただいております。 お客様ご自身での火入れや管理はできませんので、利用をご希望の場合は必ず事前にスタッフへお申し付けください。
Q2. 喫煙や屋外での騒音に制限はありますか?
A. はい、当施設は敷地内全面禁煙です。屋内・屋外ともに喫煙は禁止しております。 また、20時以降の屋外での会話・騒音行為は禁止です。テラスや屋外ではお静かにお過ごしください。 近隣との調和を大切にしており、苦情があった場合は警察へ通報することもございます。
Q3. 施設の設備について教えてください
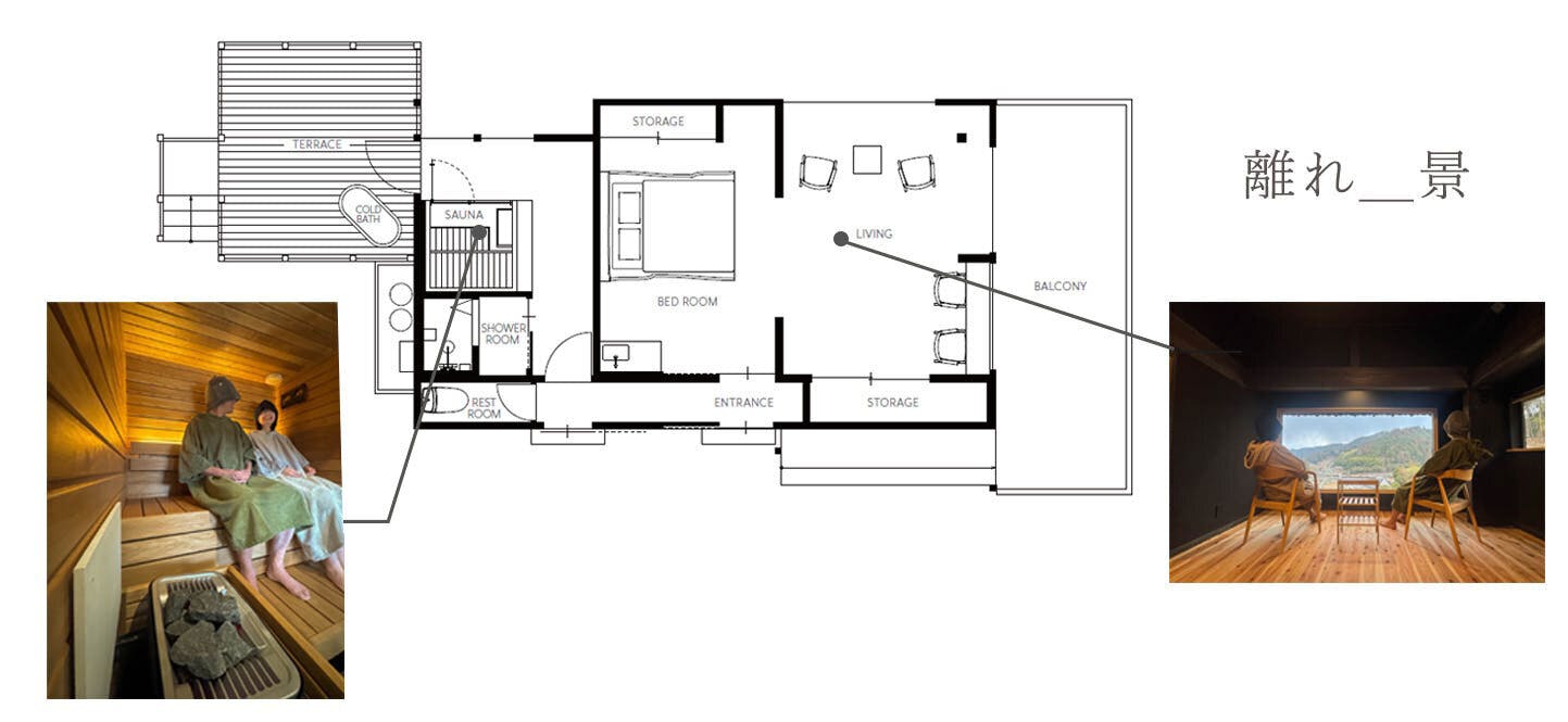
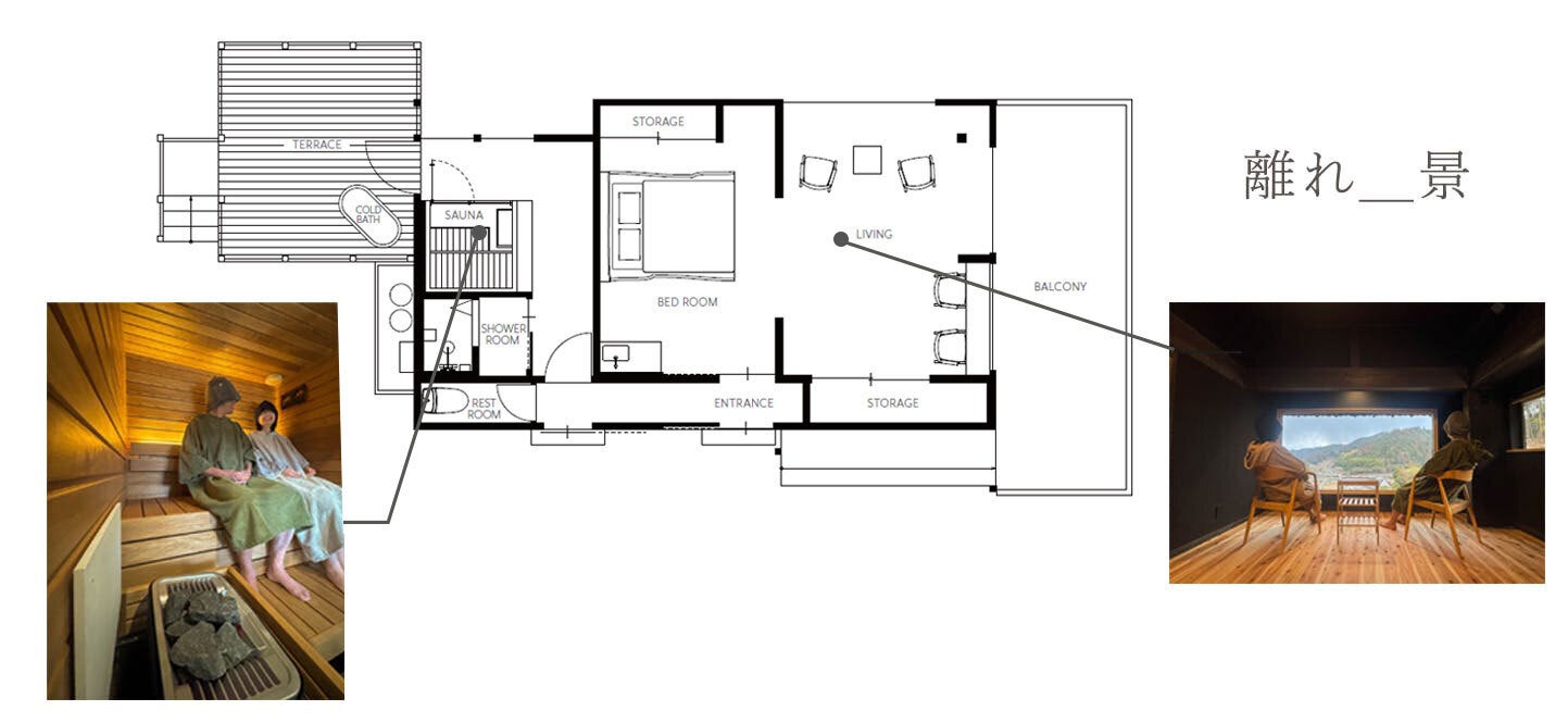
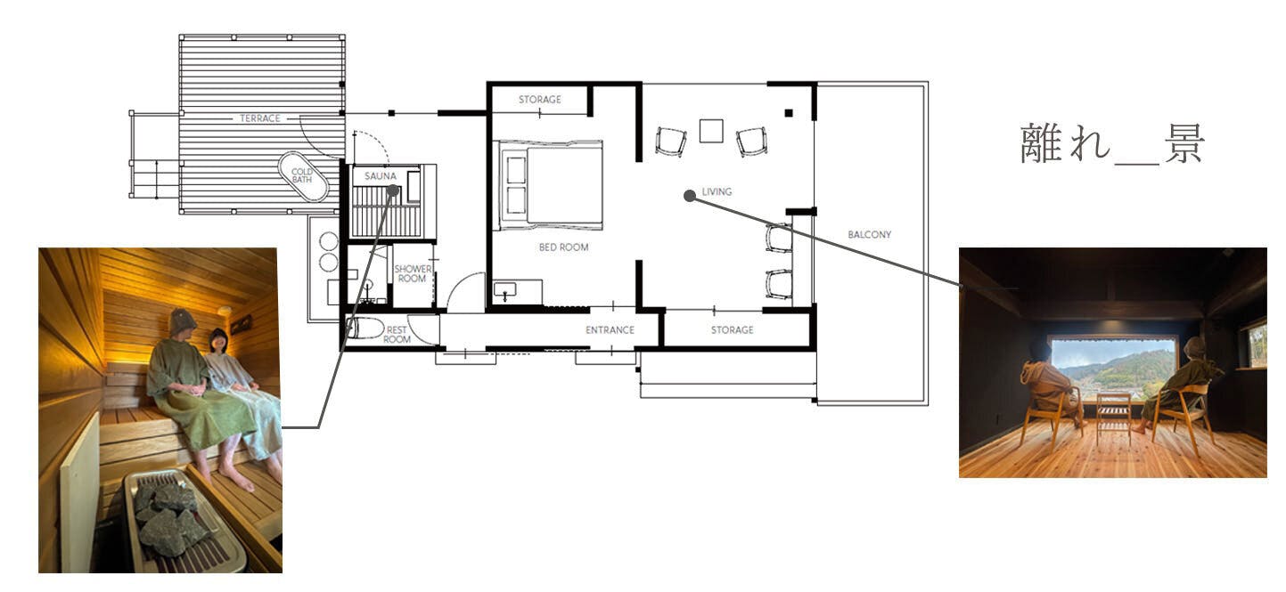
A. 当施設では、快適にお過ごしいただけるよう以下の設備を完備しております。 Wi-Fi(高速インターネット環境)サウナ 茶室 エアコン 冷蔵庫 自然豊かな環境にありながら、ワーケーションや長期滞在にも対応できる設備を整えております。
Q4. サウナはありますか?利用方法を教えてください
A. はい、敷地内の離れ「景」にプライベートサウナをご用意しております。 ご利用の際は必ず水着をご持参ください。 なお、お子様が利用される場合は、必ず大人の方と一緒にご利用ください。 安全管理の観点から、お子様のみでの利用は禁止しております。
※最大定員3名(推奨2名)
※最大使用時間:3時間以内にてご利用ください。
Q5. 野生動物への対策はされていますか?
A. はい、自然環境に配慮し、以下の野生動物対策を行っております。 クマ鈴 センサーライト クマスプレー ただし、自然環境下での完全な安全を保証するものではありません。 夜間の屋外行動や単独行動は極力お控えいただき、安全には十分ご注意ください。
Q6. 宿泊はできますか?
A. 5月以降に宿泊予約をスタートする予定です。公式ラインにてお知らせいたしますので、ご登録いただければと思います。
Q7. ペットを連れて行ってもいいですか?
A. 当施設は築200年の古民家を利用しておりますので、ペットは禁止とさせていただいております。

この古民家が、もう一度人を迎え入れる場所になるまで、多くの時間をかけて向き合ってきました。
古民家再生は、一人の力だけでは完成しません。この場所の価値に共感し、「残していきたい」と思ってくださる方の想いがあってこそ、次の一歩を踏み出すことができます。
プライベートヴィラ「里音(さとね)」は、ただ泊まるための施設ではありません。日常から少し距離を置き、静かな時間の中で、自分自身と向き合うための場所です。
この場所を、未来へつないでいくために。ぜひ、あなたのお力をお貸しください。奈良・山添村でお会いできる日を、心より楽しみにしています。
ページ制作サポート:株式会社パーシヴァル
最新の活動報告
もっと見るご支援ありがとうございました。
2026/03/23 20:00こちらの活動報告は支援者限定の公開です。
小屋裏再生はめちゃ大変でした!!
2026/03/15 18:00この小屋裏を100年先に残したい!!めちゃくちゃ大変でした!!マジで(汗 床には約5センチの土やほこり、藁やかごがいっぱい。2ヶ月かけて真っ黒になりながらボランティアの方々に出していただきました。そして藁葺職人さんに来ていただき村民やボランティア約40名で隣接する森の中で『男むすび』の講習会イベントを開催しました。男むすびで結ぶとほどけないとのこと。でもとっても難しいんです。出来た人から小屋裏にあがり全ての藁縄を交換しました。今ではヨガも出来る素敵な小屋裏に変身しました。100年先にも小屋裏を残せる予感がしてきました。クラウドファンディング締め切りは後5日となりました。この小屋裏を見ていただけるプランもご用意しています。ぜひご支援をよろしくお願いいたします。 もっと見る
里音のエストニア製サウナに入ってみましたぁ!水風呂にも!
2026/03/13 18:00里音のエストニア製サウナに入ってみました。電源を入れて40分後に温度が110度まであがっていました。めちゃくちゃ熱かったです。水風呂サイコ~!気温5度で入るのに躊躇しましたが(汗でもあがってみたらポカポカでした。サウナの後はウッドデッキにあるサウナチェアで整いましたぁ。クラウドファンディングも残すところあと7日です。SAUNAを利用出来るプランもご用意しています。ぜひ『里音』のサウナを体験してみてください。 この景色+サウナ体験は必ず記憶に残ります! もっと見る




























心穏やかに過ごせそう!
とても素敵な古民家で懐かしくも新しい感じで好奇心を駆り立てられました 是非遊びに行きたいです!!
すぐ泊まりに行きます!