【はじめに・ご挨拶】
はじめまして。アイソフト株式会社代表の相川と申します。
私は飲食業界向けのITシステム開発する会社を経営する傍ら、水道橋でNew民家バーという飲食店を運営しています。この度、ご縁あって市ヶ谷駅のすぐ近くの市ヶ谷プラザという商業施設内の1階路面店を借りることになりました。
現在、この店舗をどのような形で運営していくかを考えています。
世の中は次第に“シェアリングエコノミー”という概念で消費が進んできていると言えます。アフターコロナを見据え、ニューノーマルな店舗運営の在り方を模索し、「飲食×シェアリングエコノミー」をコンセプトに店舗運営を立ち上げたいと思っています。
【シェアリングエコノミー型店舗運営のタイムテーブル】
以下のように、営業時間に合わせて区切りを設ける予定です。

※平日の昼間は、軒先でお弁当のテイクアウト販売を行うことも出来ます。
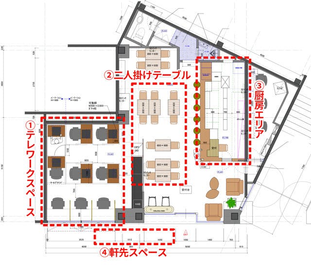
【お店のレイアウト】

①テレワークスペース:周囲を気にせずオンライン会議等が出来るように設計されています。
②2人掛けテーブル:一人で広々と使うも良し、占いや英会話レッスンなど、ちょっとしたミーティング用にも使うことができます。
③厨房エリア:業務用の食洗機や冷蔵庫など、飲食店の営業やパーティを行うには充分な設備が整っています。
④軒先スペース:平日ランチ時間帯は、店頭でテイクアウト商品を販売することが出来ます。
【コワーキングスペースとしての営業】
新型コロナウィルスの流行でテレワークが推奨されるようになりました。
ただ、家庭の事情(例えば、小さなお子様が居るとかスペースが無いなど。)で、
なかなか仕事に集中出来ない方も多くいるかと思います。そんな働くビジネスマンに
コワーキングスペースを提供します。
今のところ、コーヒー等のソフトドリンク飲み放題で1時間あたり600円(税別)を予定しています。
▼個室ブース席:防音仕様でオンライン会議も可

▼2人掛けデーブル席:一般的なカフェよりも大きなテーブルで快適に作業できます

【日替わりマスター制のシェアバーとしての営業】
平日の夜はスポーツバーをイメージした日替わりマスター制のレストランバーを営業する予定です。(私は以前この形式で赤坂で3年間バーを経営していました。)私自身も週1日以上はお店に入りレストラン営業を行う予定です。詳しいコンセプトは説明会でお伝えします。

【パーティ会場のレンタル】
休日は懇親会を行うパーティスペースとして貸し出しを行います。業務用のキッチンスペースを使って、自分の得意料理を披露するも良し、大型モニターを使って上映会を行うことも可能です。
ぜひ、趣味仲間との集まりや、気の合う友人との同窓会などにご利用ください。
【説明会をやります!】
https://form.run/@ai-soft-1614932440
<日程>
□3月19日(金)19:00~20:00
□3月22日(月)14:00~15:00
□3月23日(火)11:00~12:00
□3月25日(木)14:00~15:00
□3月26日(金)19:00~20:00
□3月29日(月)14:00~15:00
□3月29日(月)19:00~20:00
※各回とも終了後に意見交換会あり。( 軽食ドリンク付き)
※上記日程以外にも、時間をお知らせ頂けたら、個別に案内説明可能です。
<場所>
下記の現地で行います。(現地集合)
住所:東京都千代田区九段北4丁目2−15
※JR、都営新宿線、有楽町線「市ヶ谷駅」徒歩1分
<参加費>
無料
<お問い合わせ>
アイソフト株式会社 代表取締役 相川賢一
E-mail:aikawa@ai-soft.co.jp
電話:090-3902-2941
【リターンについて】
◆コワーキングスペース3時間利用チケット:1,000円

※有効期限:2021年5月から2021年8月末まで(平日10:00~18:00、土日祝を除く)
◆コワーキングスペース25時間利用チケット:10,000円

※有効期限:2021年5月から2021年8月末まで(平日10:00~18:00、土日祝を除く)
◆日替わりシェアマスター実施チケット:15,000円

※有効期限:2021年5月から2021年8月末まで(平日18:00~23:30、土日祝を除く)
◆レンタルパーティ会場利用チケット(4時間):20,000円

※有効期限:2021年5月から2021年8月末まで(土日祝のみ利用可能)
◆軒先テイクアウト商品販売1日利用権:5,000円

※有効期限:2021年5月から2021年8月末まで(平日11:00~14:00、土日祝を除く)
【資金の使い道】
ご支援いただいた資金は当面のお店の運転資金(店舗の維持費用)に利用させていただきます。目標金額に達成しなくても計画は実行いたしますのでご安心ください。
【最後に】
新型コロナウイルスの流行により、飲食業界は今までにない苦境に立たされています。飲食店が食べ物を売るというのは当然のビジネスモデルなのですが、アイドルタイムや休日などの場所の提供といった新しい「飲食×シェアリングエコノミー」の実践のカタチとして、この苦境を打破すべく飲食業界にエールを送るつもりでご支援いただけましたら幸いです。
※本プロジェクトはAll-in方式で実施します。目標金額に満たない場合も、計画を実行し、リターンをお届けします。







コメント
もっと見る