2024/05/15 20:47

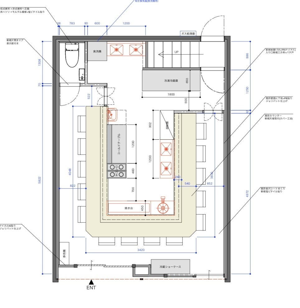
このコの字カウンターに憧れて、移転を決めた所もあるので、最大限このカウンターを生かしながら改装をしていく予定です!
40年間キレイに使っていただいていた、前テナントのやきとり末元さんとご支援していただいた方や検討いただいている方、いろんなところで応援、協力していただいている方達に感謝しながら、準備進めてます!!
すみません。リターンの商品の紹介、説明は、お店の着工、工事がひと段落したところからの紹介になりそうです。





現在の支援総額
1,630,200円
目標金額は1,500,000円
支援者数
75人
募集終了まで残り
終了
このプロジェクトは、2024/04/17に募集を開始し、 75人の支援により 1,630,200円の資金を集め、 2024/06/30に募集を終了しました





現在の支援総額
1,630,200円
108%達成
目標金額1,500,000円
支援者数75人
このプロジェクトは、2024/04/17に募集を開始し、 75人の支援により 1,630,200円の資金を集め、 2024/06/30に募集を終了しました

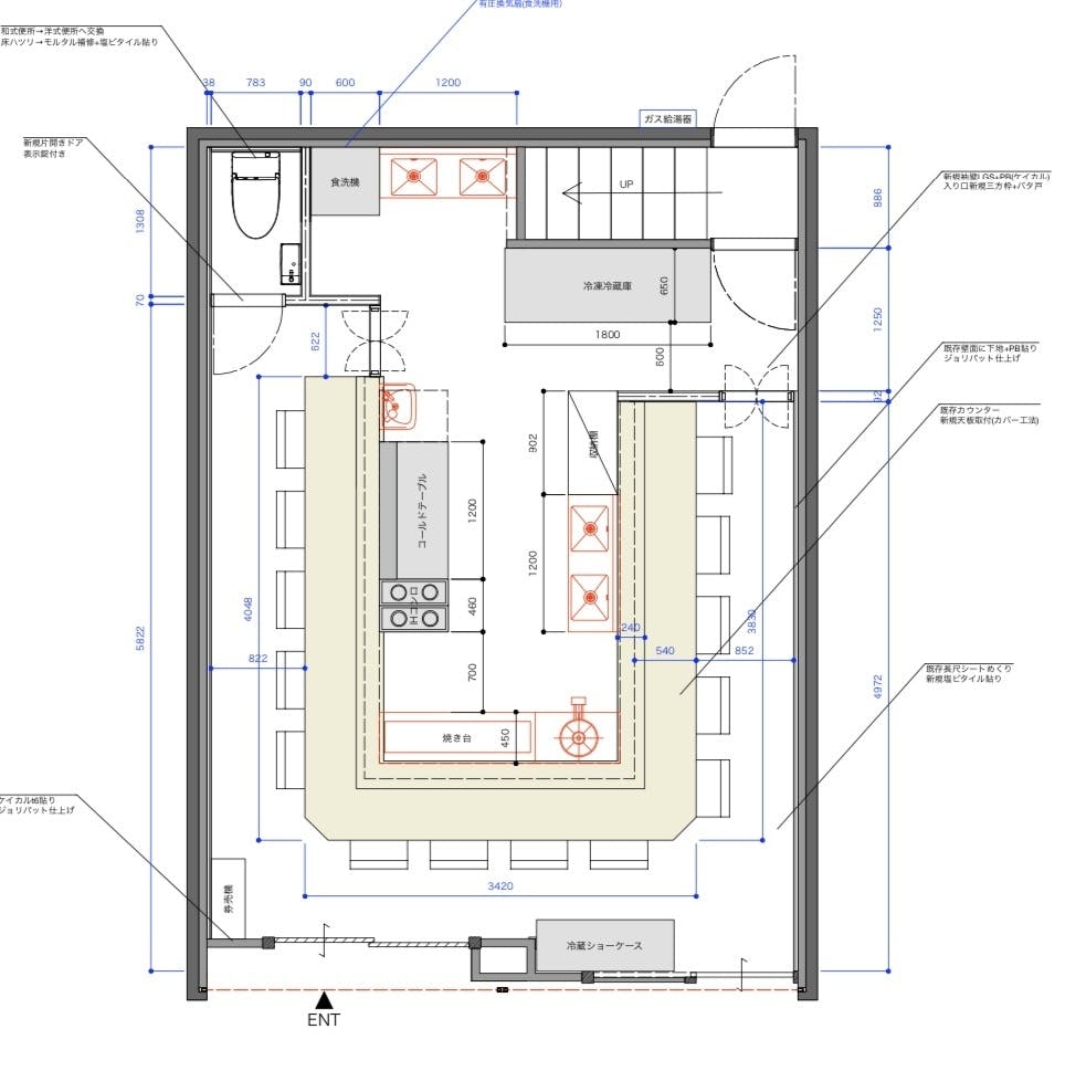
このコの字カウンターに憧れて、移転を決めた所もあるので、最大限このカウンターを生かしながら改装をしていく予定です!
40年間キレイに使っていただいていた、前テナントのやきとり末元さんとご支援していただいた方や検討いただいている方、いろんなところで応援、協力していただいている方達に感謝しながら、準備進めてます!!
すみません。リターンの商品の紹介、説明は、お店の着工、工事がひと段落したところからの紹介になりそうです。